Affordable newly renovated two-bedroom close to trains and shops.
Share of freehold included with the apartment
Private paved garden — low maintenance outdoor space
Newly renovated kitchen, bathroom and open-plan living
Ground-floor flat; own private access to garden
No onward chain — ready for a quick move
Heating by electric room heaters, likely higher running costs
High local crime levels reported; consider security measures
Exterior shows mixed materials and dated paintwork needing maintenance
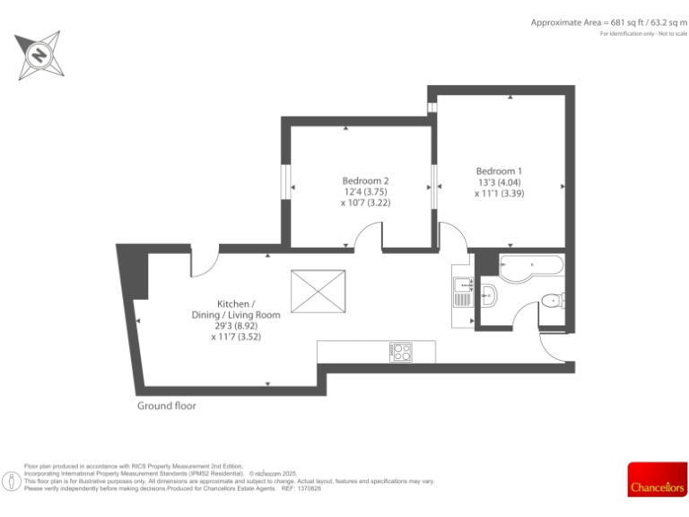
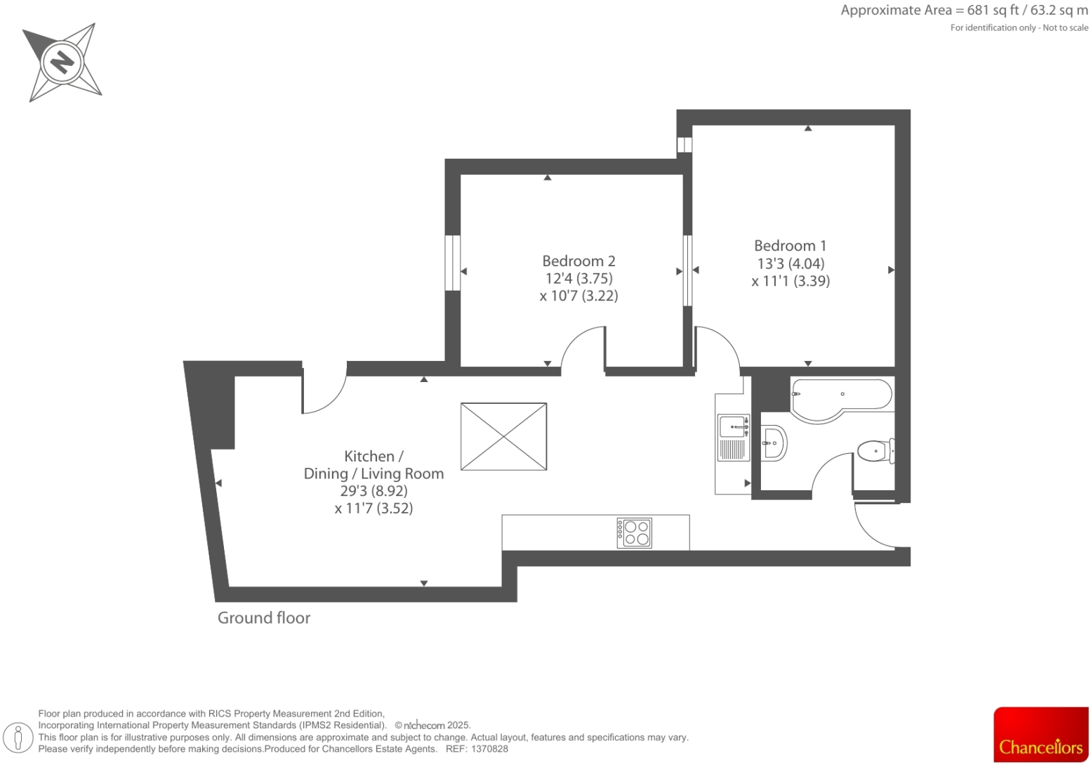
This ground-floor two-bedroom apartment offers an affordable, move-in-ready option in the heart of Newbury. Recently renovated throughout, the flat includes a new open-plan kitchen, new bathroom, and a private paved garden — rare for a town-centre apartment and useful for outdoor space without upkeep.
Practical strengths include a share of freehold, no onward chain and easy walking access to the train station, shops and local amenities. The apartment’s 681 sq ft layout is a comfortable size for first-time buyers or a small household, with low flood risk and a cheap council tax band.
Buyers should note a few material points: the property’s heating is electric room heaters rather than a central gas system, which can raise running costs; the surrounding area reports higher crime levels; and the exterior shows mixed materials and some dated paintwork that may need maintenance. Broadband speeds are average.
Overall this is a competitively priced, newly renovated flat that suits buyers seeking a low-entry purchase close to transport and town amenities. It’s particularly appealing for those prioritising location and a private garden, but worth budgeting for energy running costs and any external upkeep.
2 bedroom flat for sale in Newbury, Berkshire, RG14 — £260,000 • 2 bed • 2 bath • 678 ft²
1 bedroom flat for sale in Newbury, Berkshire, RG14 — £133,000 • 1 bed • 1 bath • 387 ft²
2 bedroom flat for sale in Newbury, Berkshire, RG14 — £210,000 • 2 bed • 2 bath • 624 ft²
2 bedroom flat for sale in Chestnut Court, Victoria Gardens, Newbury, RG14 1EY, RG14 — £199,995 • 2 bed • 1 bath • 552 ft²
2 bedroom flat for sale in Becket House, Oddfellows Road, Newbury, RG14 — £217,500 • 2 bed • 1 bath • 549 ft²
2 bedroom flat for sale in Newbury, Berkshire, RG14 — £200,000 • 2 bed • 1 bath • 651 ft²














































































