Low-maintenance ground-floor apartment with private patio and parking near the station.
Share of freehold; 999-year lease from 2015
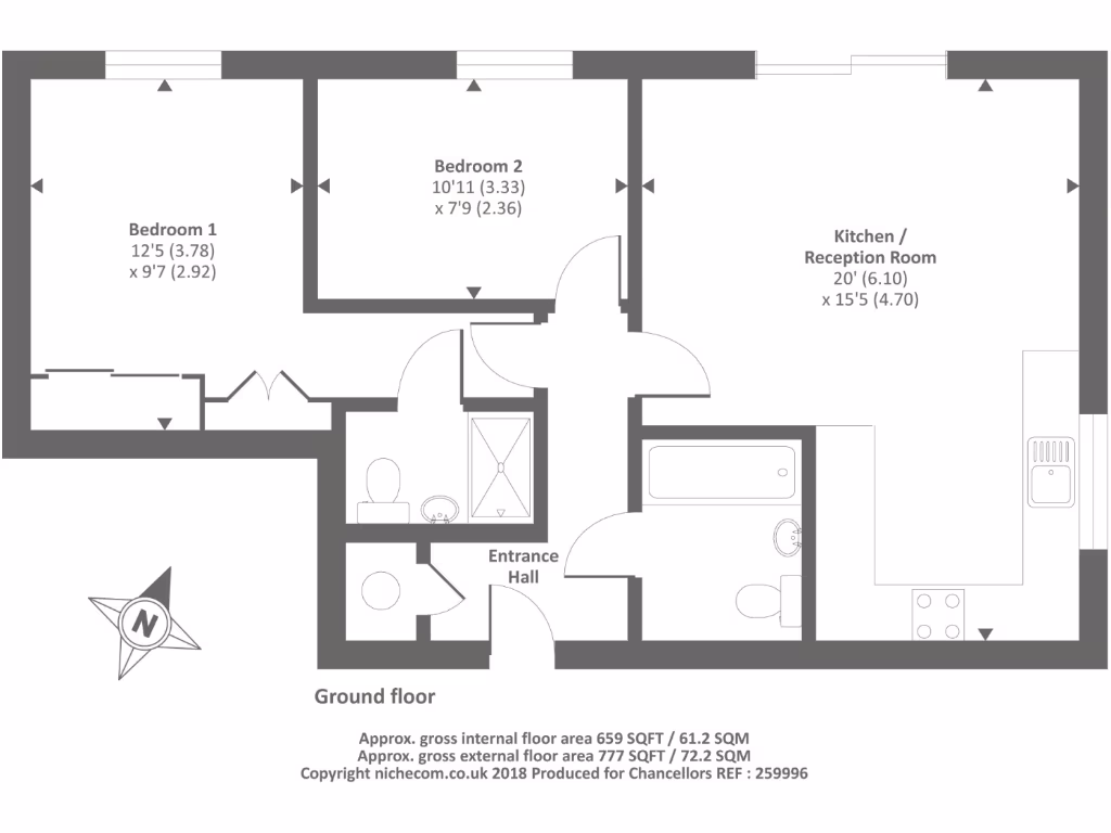
This ground-floor two-bedroom flat offers a practical, low-maintenance base close to Newbury town centre and the train station. The living/dining room opens onto a private patio, adding outdoor space unusual for a town-centre flat. The modern kitchen and ensuite to the master provide everyday convenience, while the allocated off-street parking is a valuable city-centre extra.
Ownership is straightforward: a long 999-year lease from 2015 with a share of freehold and no onward chain, which reduces common long-lease risks and simplifies future sale. The apartment totals about 678 sq ft — an average-sized property that suits a couple or first-time buyer wanting easy access to transport and local amenities.
Buyers should note the area indicators: local classifications point to a cosmopolitan, student-heavy neighbourhood and wider migrant-family population. Crime levels are reported as high in the immediate area, and broadband speeds are average. The flat’s main heating is electric (boiler and underfloor heating), which may mean higher running costs compared with mains gas in some seasons. There are no known flood risks.
Overall this is a practical, well-presented city-centre flat with good transport links, private outdoor space and secure parking. It will suit buyers prioritising location, low upkeep and long lease security, but those sensitive to neighbourhood safety or seeking faster broadband or gas heating should factor these into their decision.
1 bedroom flat for sale in Newbury, Berkshire, RG14 — £133,000 • 1 bed • 1 bath • 387 ft²
2 bedroom apartment for sale in Bartholomew Street, Newbury, Berkshire, RG14 — £160,000 • 2 bed • 1 bath • 477 ft²
1 bedroom flat for sale in Newbury, Berkshire, RG14 — £125,000 • 1 bed • 1 bath • 462 ft²
1 bedroom flat for sale in Newbury, Berkshire, RG14 — £160,000 • 1 bed • 1 bath • 346 ft²
2 bedroom flat for sale in Newbury, Berkshire, RG14 — £225,000 • 2 bed • 2 bath • 764 ft²
2 bedroom flat for sale in Newbury, Berkshire, RG14 — £225,000 • 2 bed • 2 bath • 710 ft²










































