RG14 5LG - 2 bed ground floor retirement flat in Russell Road, RG14 5LG

View on Property Piper

2 bedroom flat for sale in Newbury, Berkshire, RG14

Summary - RUSSELL COURT, 65 FLAT 2 RUSSELL ROAD NEWBURY RG14 5LG

2 bed 1 bath Flat

Refreshed two-bedroom flat with private garden and allocated parking, close to Newbury station.
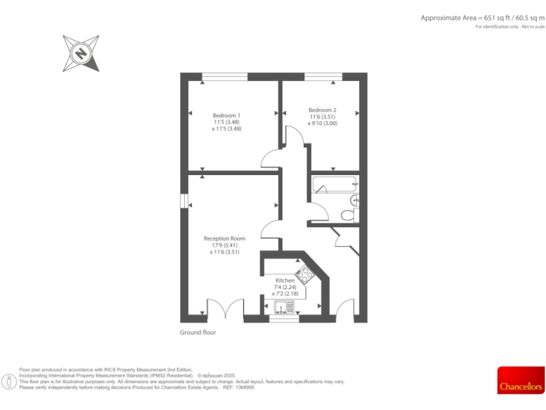
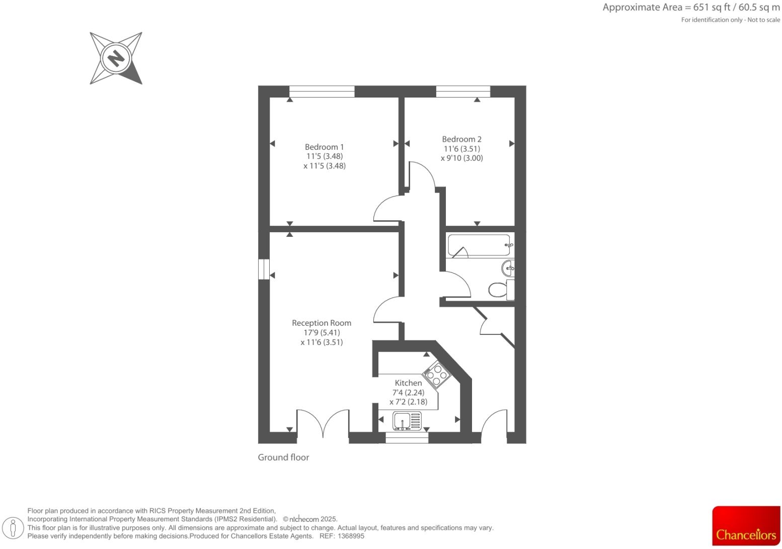
Two double bedrooms, comfortable 651 sq ft ground-floor layout
A well-presented, ground-floor two-bedroom flat aimed at over-55 buyers who want low-maintenance, practical accommodation close to Newbury town centre. The apartment has been recently redecorated with new carpets and benefits from a private garden and allocated off-street parking, making day-to-day life straightforward. Living room doors open directly onto the garden, and the separate kitchen and modern bathroom add to comfortable, easy-living layout.

The property sits in the popular Russell Road area, about 0.7 miles from Newbury station and the town centre, with fast broadband and excellent mobile signal. Tenure is a share of freehold with around 101–104 years remaining on the lease and the sale is offered chain-free — useful for a quick move. Construction from the early 2000s, double glazing and gas central heating help keep running costs moderate.

Practical considerations: the apartment is an average-sized 651 sq ft ground-floor home, so it suits buyers prioritising convenience over expansive space. It is designated for retirement (over 55), and while well maintained and newly refreshed, it is not a new-build and offers limited scope for major extension. Council tax is described as affordable and there is no flood risk recorded.

Property Details

Image Descriptions

Floorplan Description

Rooms

Textual Property Features

Target Audience

AI Tags

Detected Visual Features

EPC Details

Nearby Schools

Nearest Bars And Restaurants

,,,,}

Nearest General Shops

,,}

Nearest Grocery shops

,,}

Nearest Supermarkets

,,}

Nearest Religious buildings

,,}

Nearest Medical buildings

,,,}

Nearest Leisure Facilities

,,,,}

Nearest Tourist attractions

,,}

Nearest Train stations

,,,,}

Nearest Bus stations and stops

,,,,}

Nearest Hotels

,,}

Tags

Local Market Stats

AirBnB Data

Similar Properties

Meta

High Res Images

Compatible Images

Low res Images

Thumbnails

Raw Images

High Res Floorplan Images

Compatible Floorplan Images

Low res Floorplan Images

FloorplanImages Thumbnail

Raw Floorplan Images