Spacious family home with rare redevelopment potential on an expansive private plot.
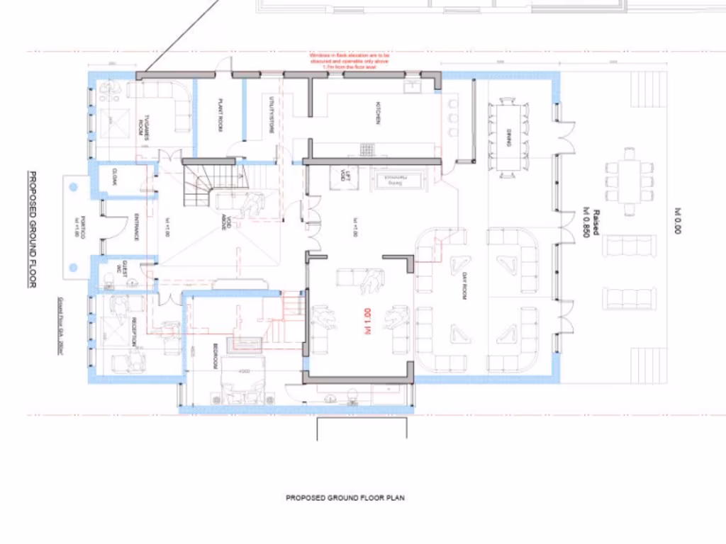
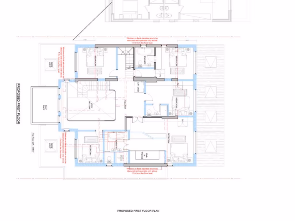
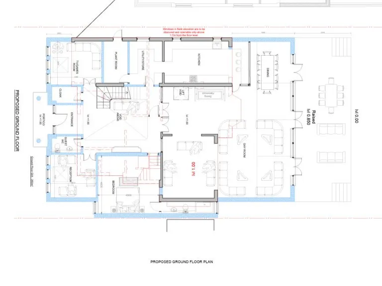
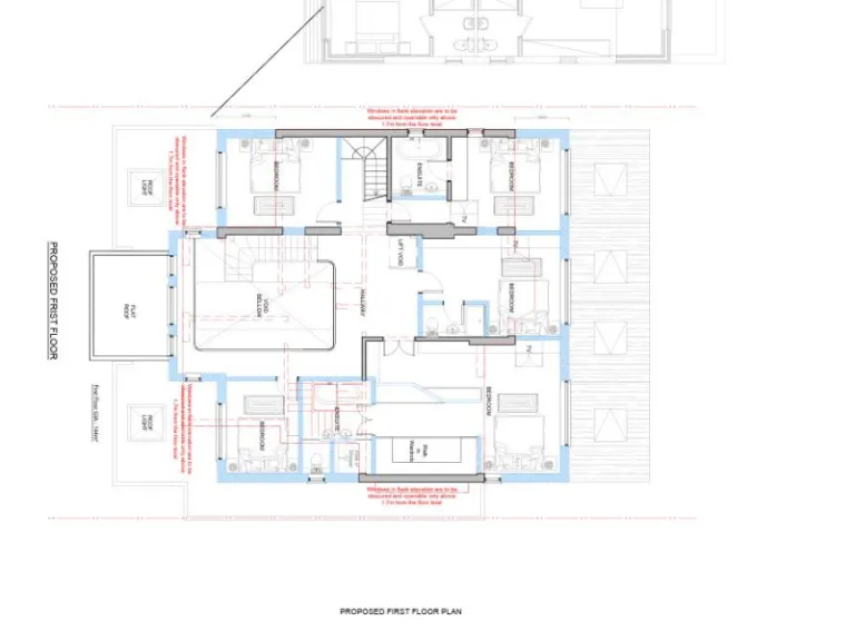
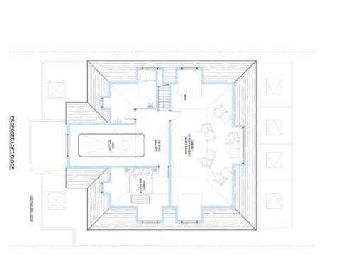
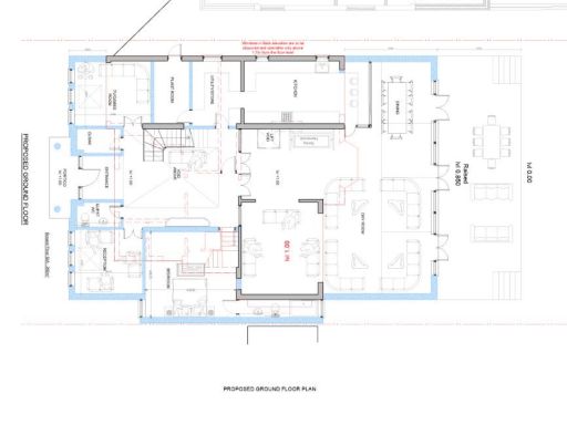
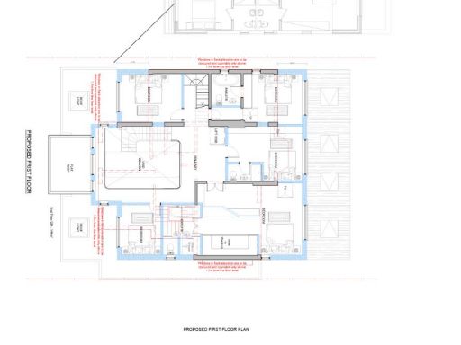
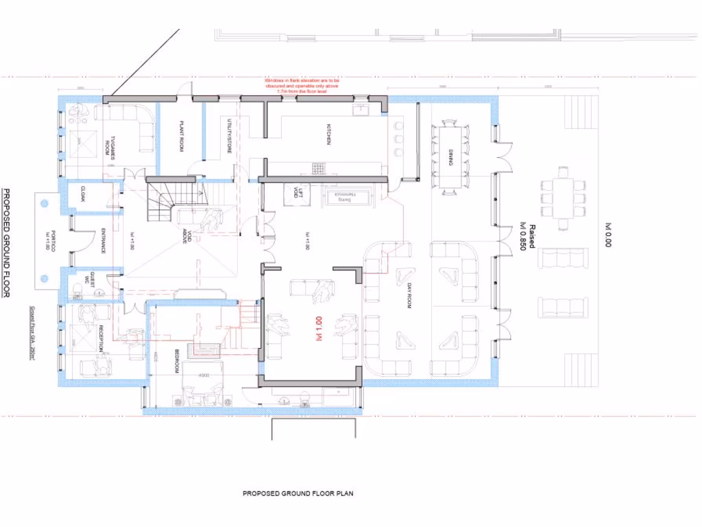
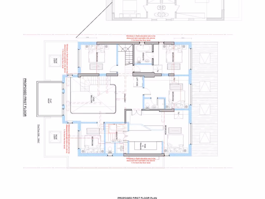
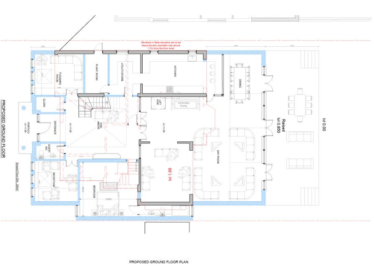
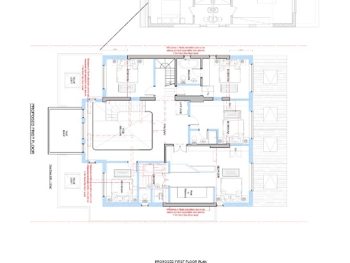
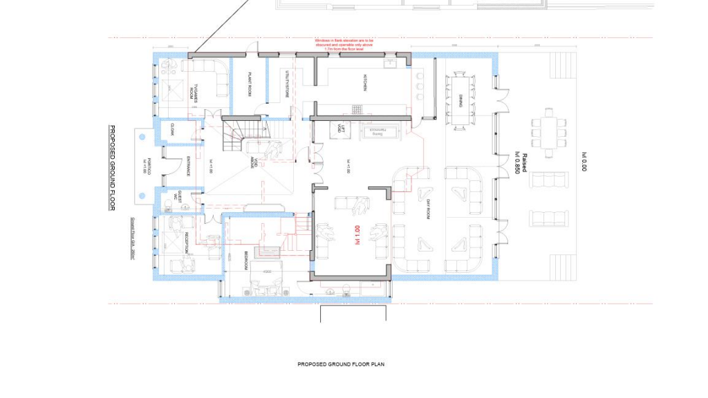
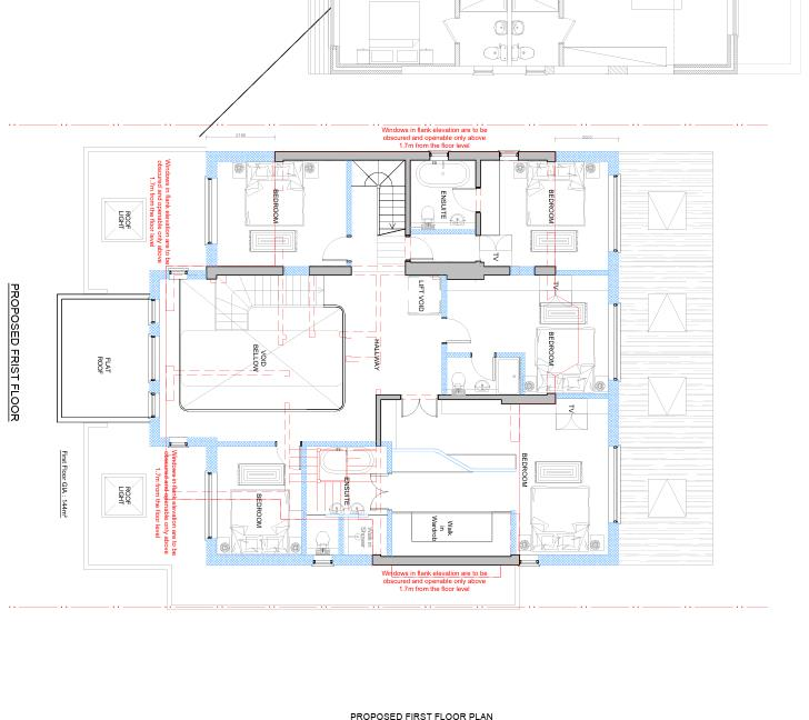
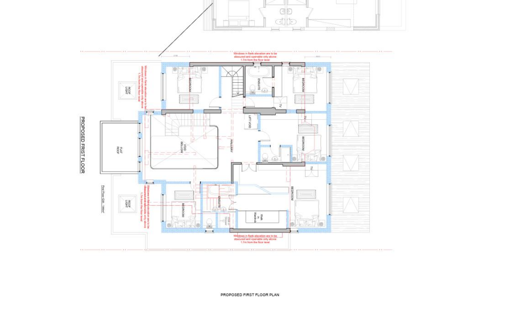
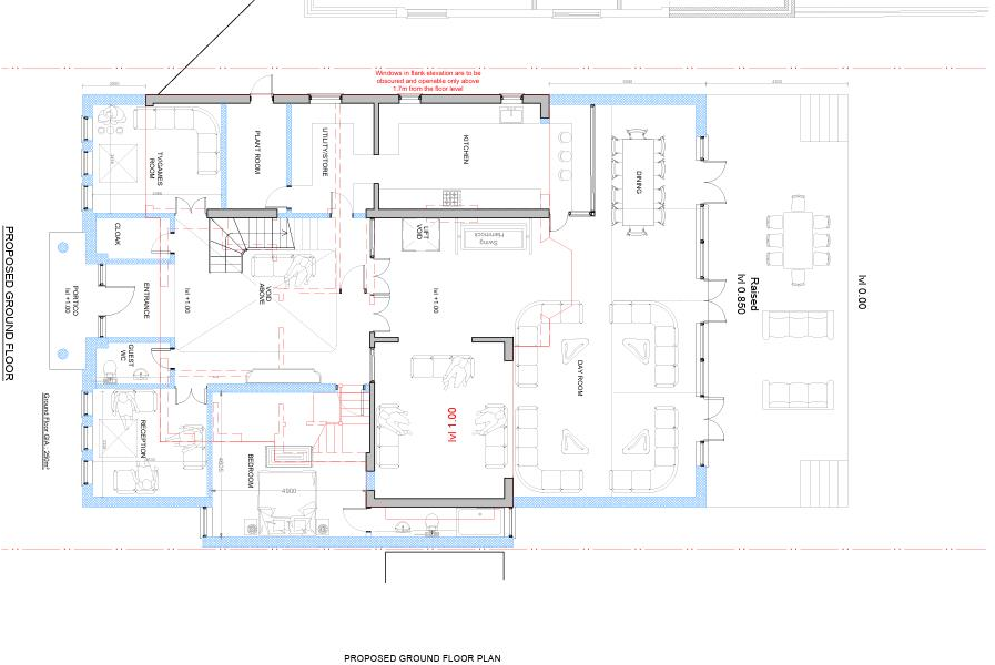
Planning permission granted for c.6,500 sq ft new-build
Set on a very large plot in exclusive Arkley, this substantial detached house offers immediate family living with a rare redevelopment upside. The existing five-bedroom home (about 2,379 sq ft) provides generous rooms, high ceilings and large windows, while planning permission is already granted for a new c.6,500 sq ft replacement — appealing to buyers seeking either a roomy family home or a development project.
The house dates from the 1930s and presents traditional brick elevations and formal proportions. Interior heating is electric with room heaters; walls are solid brick and assumed to have no built-in insulation. There are two bathrooms for five bedrooms and council tax is described as very expensive, so some modernisation and insulating works would be practical improvements.
Location is a key strength: Arkley is very affluent, well served for excellent schools (including two outstanding secondaries nearby) and offers easy road access to the M1/M25 and local stations. Broadband and mobile signal are acceptable for everyday needs. The large, landscaped garden and gated forecourt deliver strong outdoor amenity and parking for multiple cars.
This property suits a family wanting long-term, flexible living in a leafy North London setting or a buyer/developer who wishes to capitalise on the granted planning permission. Be aware of likely refurbishment, insulation and heating upgrades if retaining the existing house.
5 bedroom detached house for sale in Barnet Road, Barnet, EN5 — £1,600,000 • 5 bed • 2 bath • 6500 ft²
Land for sale in Quinta Drive, Barnet, EN5 — £1,500,000 • 1 bed • 1 bath • 5468 ft²
Plot for sale in Quinta Drive, Arkley, Hertfordshire, EN5 — £1,495,000 • 1 bed • 1 bath
6 bedroom detached house for sale in Partingdale Lane, Mill Hill Village, NW7 — £3,450,000 • 6 bed • 6 bath • 7500 ft²
4 bedroom detached house for sale in Barnet Gate Lane, Arkley, EN5 — £1,250,000 • 4 bed • 2 bath • 1923 ft²
4 bedroom detached house for sale in Arkley Drive, Arkley, Hertfordshire, EN5 — £2,000,000 • 4 bed • 2 bath • 2426 ft²










































