Income-producing freehold with HMO potential near Clapham Common station.
Freehold mixed-use on Clapham High Street, strong footfall
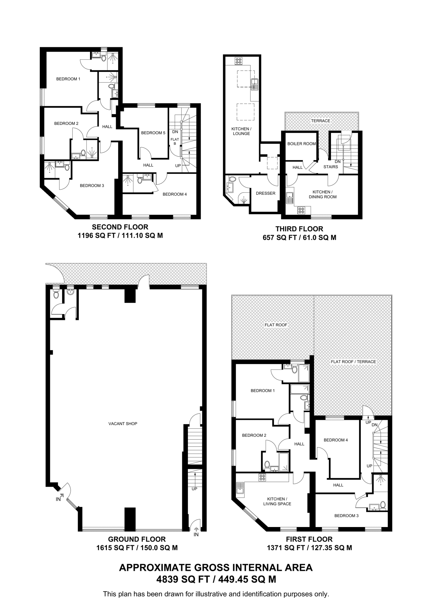
A rare mixed-use freehold on Clapham High Street, this income-producing building combines a long-standing ground-floor commercial tenancy with upper-floor residential flats. The ground floor (Use Class E) is let to a well-known high-street food brand and the property currently produces £271,600 per annum. The freehold and central location give clear rental upside and strong footfall from Clapham Common and local transport links.
The upper floors are arranged as two residential flats across multiple stories, providing ten bedrooms in total; HMO licences can be provided on request. The building is solid-brick and largely retains period fabric (constructed before 1900), with modern kitchen fittings visible in the internal accommodation. The total floor area is approximately 3,573 sq ft.
Important purchaser information: the commercial lease has 15 years remaining. This limited unexpired term is a material issue — many mortgage lenders are likely to refuse lending against this property, which will impact the buyer pool and financing options. There is only one bathroom recorded for the residential accommodation, so reconfiguration or investment may be required to optimise returns.
This opportunity suits a cash buyer or specialist investor comfortable with central-London leases and management of multi-let residential stock. The prime High Street location, strong immediate income and HMO potential make this attractive for experienced investors prepared to manage lender restrictions and any refurbishment to increase residential yield.
10 bedroom mixed use property for sale in Clapham High Street, London, SW4 — £4,100,000 • 10 bed • 10 bath • 5000 ft²
4 bedroom mixed use property for sale in Nelsons Row, Clapham, London, SW4 — £1,150,000 • 4 bed • 3 bath • 1283 ft²
High street retail property for sale in 12 + 12A Clapham Park Road, London, SW4 — £750,000 • 2 bed • 1 bath • 900 ft²
4 bedroom mixed use property for sale in Wandsworth High Street, London, SW18 — £825,000 • 4 bed • 1 bath • 2000 ft²
4 bedroom mixed use property for sale in The Boulevard, London, SW17 — £1,100,000 • 4 bed • 1 bath • 1848 ft²
Property for sale in Wandsworth High Street,
Wandsworth Park, SW18 — £550,000 • 1 bed • 1 bath • 1041 ft²


















































