**Standout Features:**
- Freehold commercial property on Curtain Road, London, EC2A
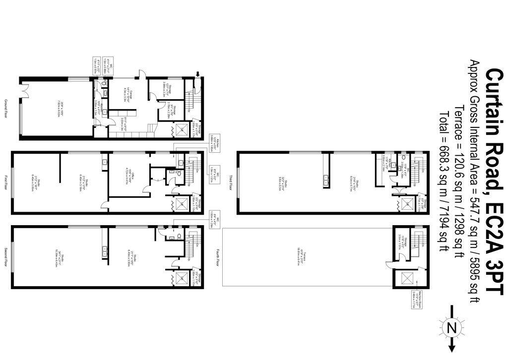
- Expansive size of 5,895 sq. ft. over four stories, currently used as a retail gallery and offices
- Excellent transport links within minutes to Liverpool Street, Old Street, and Moorgate stations
- Vibrant local area with proximity to popular bars and restaurants, including the Virgin Hotel
- Lift access to all floors and a prime corner location
**Notable Concerns:**
- Built before 1900; potential need for renovation or updates
- Currently zoned for commercial use, which may limit residential development unless permitted
Discover an exceptional investment opportunity in the heart of Shoreditch with this spacious freehold property on Curtain Road. This impressive 5,895 sq. ft. building combines industrial charm with functionality, featuring a gallery space on the ground floor and offices above—all serviced by a lift. The lively environment is amplified by the area's renowned cafés, bars, and restaurants, making it a hotspot for both visitors and locals alike.
With its strategic location just outside the Shoreditch Triangle, you’ll benefit from excellent transport links, putting you minutes away from major stations. Although the property is steeped in character, some may find potential renovation needs due to its age. Embrace the possibility to transform this substantial space into a thriving commercial hub or explore future residential conversion opportunities. Don't miss out on this rare gem in one of London’s most dynamic neighborhoods—secure it while it lasts!
 Commercial property for sale in Curtain Road, London, EC2A — £3,250,000 • 1 bed • 1 bath • 5895 ft²
 Commercial property for sale in Curtain Road, London, EC2A — £3,250,000 • 1 bed • 1 bath • 5895 ft² Office for sale in Curtain Road, London, EC2A — £3,250,000 • 1 bed • 1 bath • 5895 ft²
 Office for sale in Curtain Road, London, EC2A — £3,250,000 • 1 bed • 1 bath • 5895 ft² Office for sale in Basement, Ground & First Floors, 96a Curtain Road, London, EC2A 3AA, EC2A — £1,200,000 • 1 bed • 1 bath • 2152 ft²
 Office for sale in Basement, Ground & First Floors, 96a Curtain Road, London, EC2A 3AA, EC2A — £1,200,000 • 1 bed • 1 bath • 2152 ft² High street retail property for sale in 32 Charlotte Road, Shoreditch, EC2A 3PB, EC2A — £1,695,000 • 1 bed • 1 bath • 2000 ft²
 High street retail property for sale in 32 Charlotte Road, Shoreditch, EC2A 3PB, EC2A — £1,695,000 • 1 bed • 1 bath • 2000 ft² Office for sale in 193-195 City Road, EC1V — £3,800,000 • 1 bed • 1 bath • 5253 ft²
 Office for sale in 193-195 City Road, EC1V — £3,800,000 • 1 bed • 1 bath • 5253 ft² 3 bedroom maisonette for sale in 193-195 City Road, EC1V — £3,800,000 • 3 bed • 2 bath • 5253 ft²
 3 bedroom maisonette for sale in 193-195 City Road, EC1V — £3,800,000 • 3 bed • 2 bath • 5253 ft²


















































