**Standout Features:**
- Freehold commercial property in Shoreditch
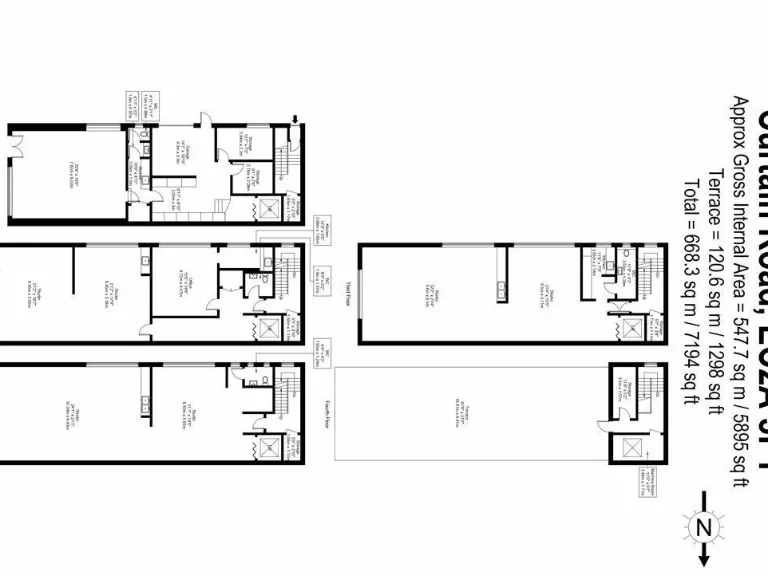
- 4-story building with a substantial 5,895 sq. ft. area
- Currently operating as a retail gallery with workshop and office space
- Convenient lift access to all floors
- Prominent location near vibrant bars, restaurants, and creative hubs
- Close proximity to Old Street, Liverpool Street, and Moorgate stations
- Double-glazed windows with significant natural light
**Summary:**
Discover a rare opportunity to own a freehold commercial property in the heart of Shoreditch, London, just outside the vibrant Shoreditch Triangle. This expansive 4-story brick building, featuring an industrial aesthetic, spans 5,895 sq. ft. and is currently utilized as a retail gallery on the ground floor, with associated workshop and office spaces above. The incorporation of a lift ensures convenient access to all floors, catering perfectly to diverse business needs.
Located on the bustling junction of Curtain Road and Luke Street, your future venture will benefit from a prime position surrounded by a multitude of trendy bars, restaurants, and creative industries. With Old Street station just a short walk away and major transport hubs like Liverpool Street and Moorgate within a five-minute reach, visibility and accessibility are at your doorstep.
While the property presents an exciting commercial venture, potential investors should note that it was constructed before 1900, which may pose maintenance considerations in the future. Embrace the endless possibilities this unique property offers, whether for immediate use, renovations, or potential extensions. More than just a property, it is a gateway to a thriving business locale that values creativity and connectivity—seize this exceptional opportunity today!
Office for sale in Curtain Road, London, EC2A — £3,250,000 • 1 bed • 1 bath • 5895 ft²
Land for sale in Curtain Road, London, EC2A — £3,250,000 • 1 bed • 1 bath • 5895 ft²
High street retail property for sale in 32 Charlotte Road, Shoreditch, EC2A 3PB, EC2A — £1,695,000 • 1 bed • 1 bath • 2000 ft²
Office for sale in Basement, Ground & First Floors, 96a Curtain Road, London, EC2A 3AA, EC2A — £1,200,000 • 1 bed • 1 bath • 2152 ft²
Office for sale in 82 Kingsland Road, London, E2 8DP, E2 — £2,250,000 • 1 bed • 1 bath • 3856 ft²
Office for sale in 7 Bath Place, London, EC2A 3DR, EC2A — £2,000,000 • 1 bed • 1 bath • 3454 ft²


















































