Large character home with outbuildings and panoramic rear views for growing families.
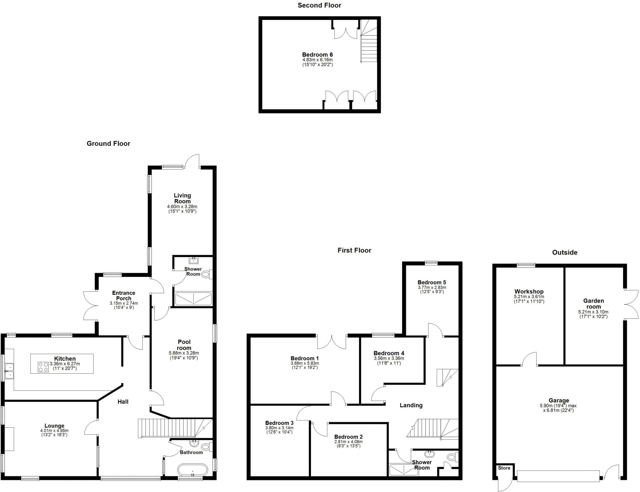
- Around 4,889 sq ft of versatile living space across multiple floors
- Five bedrooms plus attic/loft space and about 25 total rooms
- Solar panels installed; good broadband and excellent mobile signal
- Detached garage, workshop, garden room and gated off-street parking
- Secluded landscaped garden with rear panoramic views
- Chain-free sale; no flood risk
- Located in a very deprived area with a high local crime rate
- Small plot relative to house size; likely ongoing maintenance costs
This converted stone barn delivers exceptional internal space (about 4,889 sq ft) laid out across multiple floors — ideal for a large family or multigenerational household. Original features such as exposed beams, stonework and solid wood doors combine with modern touches including solar panels and generous reception rooms. The property is chain-free and offers practical outbuildings: a sizeable garage, workshop and a detached garden room.
Externally the house benefits from a secluded, landscaped garden, patio and gated off-street parking with attractive rear views. There is immediate scope for flexible use of rooms — home offices, playrooms or guest suites — across roughly 25 rooms in total. Flooding is not a concern and mobile signal and broadband speeds are strong.
Buyers should note material context: the local area is classified as very deprived with a high crime rate, which may affect day-to-day living and long-term resale. The plot is relatively small for the property’s footprint, and upkeep of a large, older building will be ongoing. While many original features remain, parts of the house may require updating or targeted renovation to suit modern tastes and efficiency expectations.
Overall this is a rare, spacious converted barn offering character, outbuildings and clear scope for reconfiguration — a compelling option for families seeking generous accommodation who accept higher area risk and maintenance responsibilities.
4 bedroom house for sale in The Barn, Lee House Farm, Halifax, HX3 — £469,950 • 4 bed • 2 bath • 1708 ft²
6 bedroom detached house for sale in 10 Blake Hill End Farm, Shibden, HX3 7SZ, HX3 — £995,000 • 6 bed • 2 bath • 2928 ft²
4 bedroom barn conversion for sale in Erringden, Hebden Bridge, HX7 — £895,000 • 4 bed • 2 bath • 1800 ft²
4 bedroom barn conversion for sale in Banks Farm, Raw Lane, Hebden Bridge, HX7 — £750,000 • 4 bed • 3 bath • 2850 ft²
6 bedroom detached house for sale in High House Lane, Midgley, Luddendenfoot, Halifax, HX2 — £2,000,000 • 6 bed • 3 bath • 2853 ft²
5 bedroom semi-detached house for sale in Whiteshaw Barn, Long Causeway, Denholme, BD13 4NE, BD13 — £895,000 • 5 bed • 5 bath • 3195 ft²






























































































































































































































































