**Standout Features:**
- No onward chain—move in effortlessly!
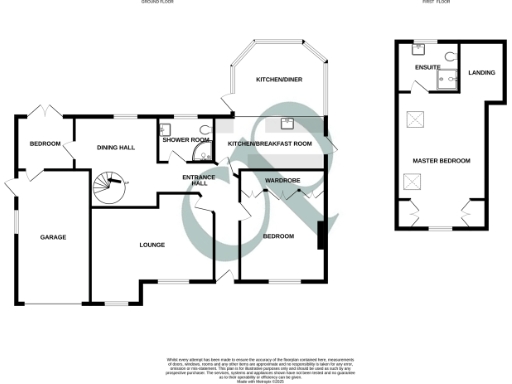
- Master bedroom on the first floor with ensuite shower room
- Extended kitchen/dining area—perfect for entertaining
- Ground floor includes two bedrooms and shower room
- South-facing front and rear gardens—ideal for sunny days
- Garage and off-road parking offer convenience
- Located in a peaceful, affluent area with low crime rates
Discover this captivating 3-bedroom chalet-style bungalow, beautifully designed to blend comfort with modern living. With an extended kitchen/dining area, this home is perfect for family gatherings and entertaining friends. The master bedroom, conveniently located on the first floor, boasts a private ensuite, while two additional bedrooms on the ground floor provide ample space for family or guests.
The expansive south-facing gardens offer a lovely outdoor retreat, ideal for enjoying sunny afternoons or gardening. With no onward chain, you can settle in quickly and enjoy the tranquil life in this prosperous countryside location. The attached garage and off-road parking ensure your vehicles are safe and secure.
Although the property is in excellent condition, potential buyers should be aware of typical maintenance needs that come with homeownership. This property showcases an inviting blend of exclusivity and warmth, providing a perfect setting for families or first-time buyers looking for a peaceful abode with renovation potential. Don’t miss out on the chance to call this lovely chalet home!
3 bedroom bungalow for sale in High Street, Clophill, Bedfordshire, MK45 — £650,000 • 3 bed • 2 bath
4 bedroom bungalow for sale in Ivy Lane, Stewkley, Leighton Buzzard, Buckinghamshire, LU7 — £775,000 • 4 bed • 3 bath • 1447 ft²
3 bedroom bungalow for sale in Willow Way, Flitwick, MK45 — £450,000 • 3 bed • 1 bath • 845 ft²
4 bedroom bungalow for sale in The Close, Great Barford, Bedfordshire, MK44 — £525,000 • 4 bed • 1 bath • 1522 ft²
3 bedroom detached bungalow for sale in Luton Road, Dunstable, LU5 — £450,000 • 3 bed • 1 bath • 1497 ft²
3 bedroom semi-detached bungalow for sale in Portfields Road, Newport Pagnell, MK16 — £335,000 • 3 bed • 2 bath • 883 ft²






















































































