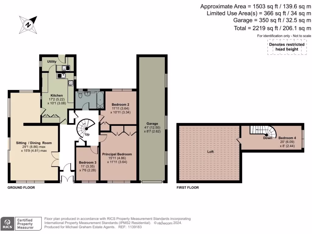
**Standout Features:**
- Modern four-bedroom detached chalet bungalow
- Fully refurbished with a refitted kitchen and bathroom
- Spacious 1,522 sq. ft. of living space
- Generous 41 ft. garage with power
- Driveway parking with additional shared access
- Wrap-around garden, ideal for outdoor entertaining
- Potential for extension, subject to planning permission
- No upper chain, making for a seamless buying process
**Summary:**
Discover this beautifully renovated four-bedroom detached chalet bungalow nestled in a tranquil corner plot in a charming suburban neighborhood. Spanning 1,522 sq. ft., this home boasts a spacious open-plan sitting and dining room, which opens through sliding doors to the wrap-around garden, perfect for families and gatherings. The modern kitchen, complete with a utility room, enhances the home's functionality, while the master bedroom and two additional well-sized bedrooms accommodate family living beautifully. Notably, a versatile first-floor bedroom can serve as an office or guest space, adding extra flexibility.
The property offers significant potential for future expansion, allowing you to personalize it further (subject to planning permission). Enjoy the convenience of a large garage and ample driveway parking in a peaceful, no-through road setting. While the area enjoys average crime rates and average broadband speeds, it boasts excellent mobile coverage and access to reputable primary schools, making it ideal for families. With the added benefit of being chain-free, this home is a remarkable opportunity that won’t last long. Don’t miss out on the chance to make it your own!
3 bedroom detached bungalow for sale in Silver Street, Great Barford, MK44 — £575,000 • 3 bed • 2 bath • 1530 ft²
3 bedroom bungalow for sale in Willow Way, Flitwick, MK45 — £450,000 • 3 bed • 1 bath • 845 ft²
4 bedroom chalet for sale in Green End Road, Great Barford, MK44 — £650,000 • 4 bed • 3 bath • 725 ft²
3 bedroom bungalow for sale in Day's Lane, Biddenham, Bedfordshire, MK40 — £700,000 • 3 bed • 2 bath • 2064 ft²
3 bedroom bungalow for sale in Gold Lane, Biddenham, Bedfordshire, MK40 — £750,000 • 3 bed • 1 bath • 1499 ft²
3 bedroom chalet for sale in West End Road, Silsoe, Bedfordshire, MK45 — £600,000 • 3 bed • 2 bath


















































































































