Single-level living with low-maintenance garden, new boiler and ready to move in.
Chain free freehold bungalow, freshly redecorated July 2025
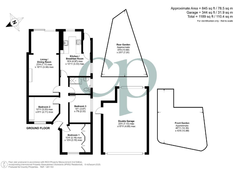
Open-plan living/dining room with patio doors to rear garden
Fitted kitchen with breakfast area and integrated appliances
Three bedrooms; potential home office or separate sitting room
Detached double garage plus block-paved driveway for parking
Low-maintenance paved rear garden, generous front lawn and borders
EPC D; double glazing installed before 2002 may need upgrading
Modest overall size (~845 sq ft); one family bathroom only
This neat three-bedroom single-storey home offers comfortable, low-maintenance living in a quiet corner position on Willow Way. Recent improvements (July 2025) include a new boiler, new carpets where stated and fresh decoration throughout, so it’s ready to occupy with minimal immediate work.
The layout centres on a spacious open-plan living/dining room with patio doors onto the paved rear garden, plus a fitted kitchen/breakfast area. Three bedrooms provide flexibility for a guest room or home office; the single family bathroom serves the accommodation. Off-street parking is generous thanks to a block-paved driveway and a detached double garage.
Practical points to note: the property measures about 845 sq ft so is modest in scale, and the EPC rating is D. Double glazing was fitted before 2002, so windows and insulation may fall short of modern standards. Overall, this freehold, chain-free bungalow will suit someone seeking convenient single-level living, a low-maintenance garden and scope to modestly modernise for energy efficiency.
2 bedroom bungalow for sale in Willow Way, Flitwick, MK45 — £400,000 • 2 bed • 1 bath • 1381 ft²
2 bedroom bungalow for sale in Willow Way, Flitwick, Bedfordshire, MK45 — £390,000 • 2 bed • 1 bath • 799 ft²
2 bedroom semi-detached bungalow for sale in Gravel Pit Road, Flitwick, MK45 — £375,000 • 2 bed • 1 bath • 732 ft²
3 bedroom detached bungalow for sale in Home Road, Kempston, Bedford, MK43 — £470,000 • 3 bed • 1 bath • 1098 ft²
2 bedroom bungalow for sale in Brambles, Wilstead, Bedfordshire, MK45 — £500,000 • 2 bed • 1 bath • 872 ft²
2 bedroom semi-detached bungalow for sale in Station Road, Flitwick, MK45 — £400,000 • 2 bed • 1 bath • 803 ft²


















































































