Secluded loch‑facing plot with cottage, huge grounds and redevelopment potential..
- Approximately 7.9 acres with direct elevated Loch Ness views
- Single‑storey cottage with sun lounge taking full advantage of views
- Requires renovation; likely roof/structural and cosmetic work needed
- Double glazing and gas central heating present
- Majority of plot woodland; immediate garden small to medium
- Steep driveway access; additional A82 parking space included
- Very slow broadband and only average mobile signal
- Purchaser must erect stock fence if land to be stocked
Rosella Cottage is a rare loch‑facing holding on approximately 7.9 acres, set above Loch Ness with outstanding, uninterrupted water and woodland views. The single‑storey cottage offers immediate occupation but requires renovation; the elevated site and large plot are the principal value drivers for buyers seeking privacy, scenery or development potential (subject to planning).
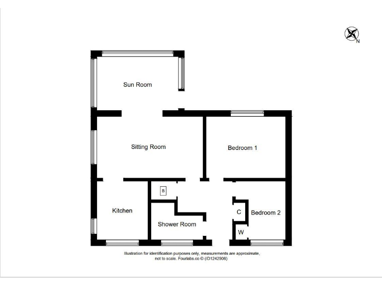
Internally the bungalow currently provides compact accommodation including a lounge with living‑flame gas fire, sun lounge facing the loch, kitchen, two bedrooms and a wet room. The house benefits from double glazing and gas central heating but needs cosmetic upgrading and likely some structural and roof attention; windows are mixed and some garden areas are overgrown.
Externally the grounds include a small patio and greenhouse adjacent to the house, with the majority of the land laid to woodland and natural scrub. Vehicular access is via a fairly steep driveway to a parking/turning area; an additional parking space on the A82 belongs to the property. Purchaser responsibility: erect stock fence along the diagonal boundary if stocking the land.
This property suits buyers wanting a secluded loch‑side base, developers seeking redevelopment potential (planning required), or investors targeting holiday accommodation in a high‑tourism area. Note practical constraints: very slow broadband, average mobile signal and the site lies in a very deprived rural area with limited immediate services — Inverness is about 17 miles away for wider amenities.
2 bedroom cottage for sale in Inverness, Highland, IV3 — £135,000 • 2 bed • 1 bath • 586 ft²
1 bedroom detached house for sale in Inverness, Highland, IV3 — £250,000 • 1 bed • 1 bath • 508 ft²
2 bedroom cottage for sale in Inverness, Highland, IV3 — £135,000 • 2 bed • 1 bath • 814 ft²
5 bedroom detached house for sale in Drumnadrochit, Inverness, Highland, IV63 — £480,000 • 5 bed • 4 bath • 3048 ft²
3 bedroom detached house for sale in East Balchraggan Cottage- Lot 2, Drumnadrochit, Inverness, Highland, IV63 — £275,000 • 3 bed • 2 bath • 1568 ft²
2 bedroom detached bungalow for sale in Invermoriston, Inverness, IV63 — £135,000 • 2 bed • 1 bath • 576 ft²






















































































