**Standout Features:**
- Two-bedroom cottage with stunning Loch Ness views
- Freehold tenure with off-street parking
- Elevated position with ample outdoor space
- Close proximity to Inverness and local amenities
- Short distance to outdoor recreation and tourist attractions
- Ideal for renovation with potential for holiday let or full-time residence
**Concerns:**
- Requires significant renovation
- Slow broadband speeds
- Electric supply needs to be established by the new owner
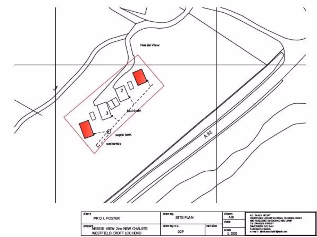
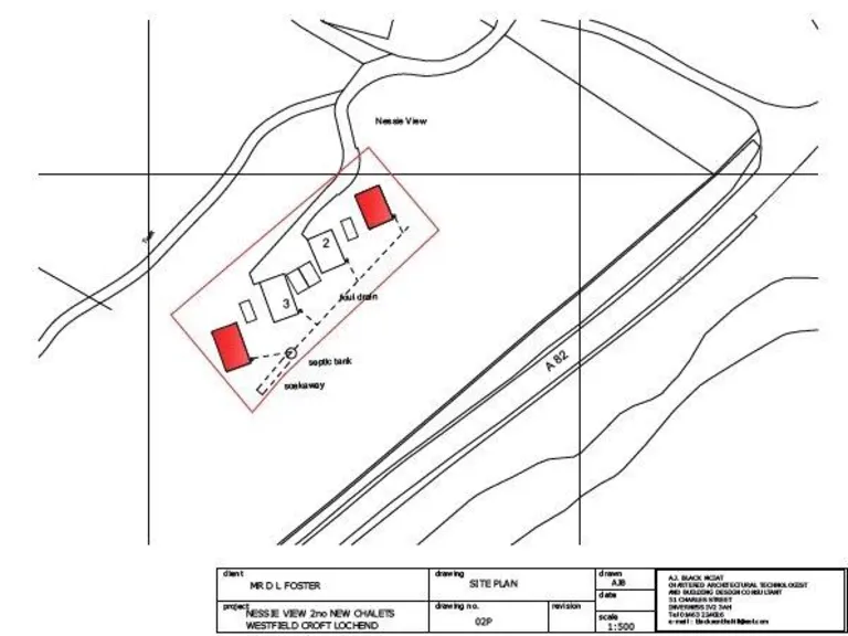
Discover a rare opportunity to own a quaint two-bedroom chalet at Lochend, just six miles from Inverness, positioned perfectly for breathtaking Loch Ness views. This cozy cottage, requiring renovation, offers a fantastic canvas for those looking to create their dream retreat or capitalize on its rental potential. Enjoy an elevated garden of approximately 0.1 hectares, perfect for relaxation and outdoor activities, complemented by excellent off-street parking.
While the chalet currently lacks its own electric supply and features double glazing, its rustic charm and invaluable location amidst stunning landscapes and nearby community essentials lend themselves to future renovations. Embrace the chance to invest in this tranquil and scenic area, known for hillwalking, golf, and water sports, with immediate access to local conveniences. Don't miss your chance to make this idyllic property your own—early viewings are highly recommended before this gem is off the market!
2 bedroom cottage for sale in Inverness, Highland, IV3 — £135,000 • 2 bed • 1 bath • 814 ft²
1 bedroom detached house for sale in Inverness, Highland, IV3 — £250,000 • 1 bed • 1 bath • 508 ft²
2 bedroom semi-detached house for sale in County Houses, Lochend, IV3 — £175,000 • 2 bed • 1 bath • 743 ft²
3 bedroom detached house for sale in East Balchraggan Cottage- Lot 2, Drumnadrochit, Inverness, Highland, IV63 — £275,000 • 3 bed • 2 bath • 1568 ft²
5 bedroom detached house for sale in Drumnadrochit, Inverness, Highland, IV63 — £480,000 • 5 bed • 4 bath • 3048 ft²
3 bedroom semi-detached house for sale in 5 Hillhead, Inverness, IV2 6XS, IV2 — £230,000 • 3 bed • 2 bath • 652 ft²










































































































