### Key Features:
- Breathtaking views of Loch Ness
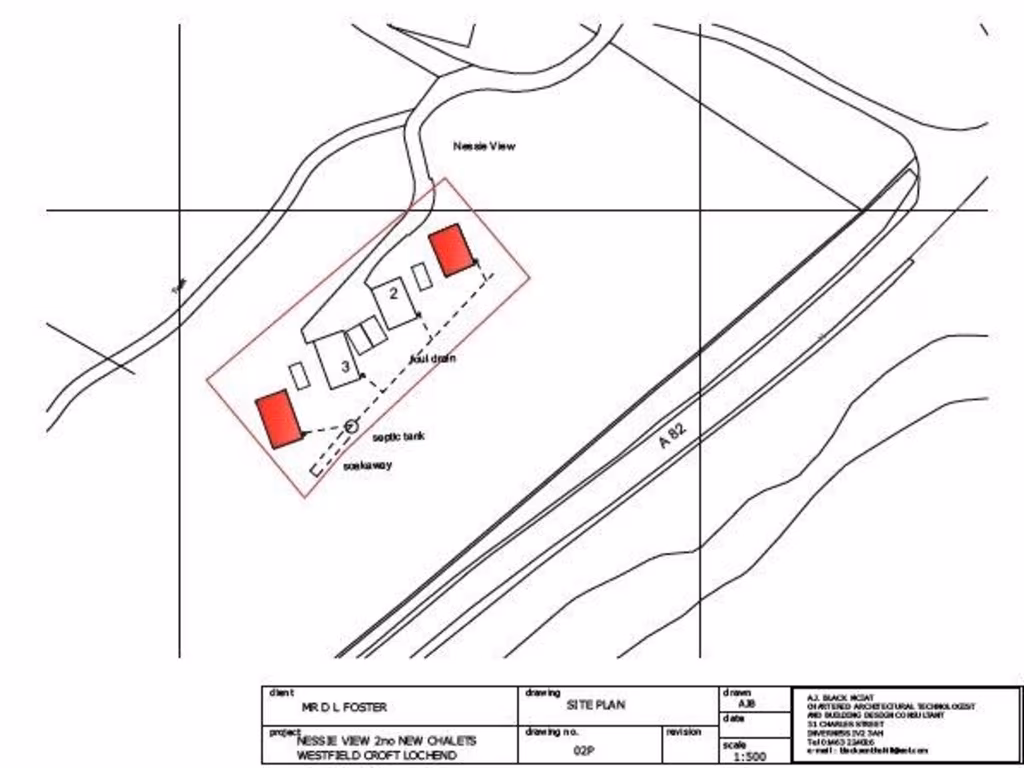
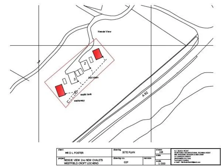
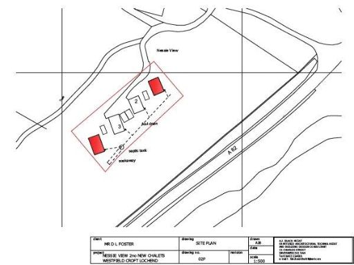
- Two-bedroom chalet on a spacious 0.11 ha plot
- Needs renovation; potential for customization
- Off-street parking available
- Excellent mobile signal; average broadband speeds
- Very affordable council tax
This charming two-bedroom chalet presents a unique opportunity for those looking to embrace rural living just outside the picturesque village of Lochend, Inverness. The property, set on a generous plot, boasts stunning elevated views of Loch Ness, making it a perfect getaway or potential holiday rental. With a rustic charm, the interior requires some renovation but features a cozy layout, including an open-plan kitchen, lounge, and dining area filled with natural light. The two bedrooms, while compact, provide comfortable retreats.
The surrounding landscape offers a tranquil escape into nature, perfect for outdoor enthusiasts, while the proximity to Inverness ensures access to all essential amenities. This chalet not only offers a chance for peaceful living but also potential for expansion or development with proper planning permissions. Given its unique setting and possibilities, early viewing is highly recommended before this impressive property slips away. Embrace the opportunity to create your dream retreat in the stunning Scottish Highlands!
2 bedroom cottage for sale in Inverness, Highland, IV3 — £135,000 • 2 bed • 1 bath • 586 ft²
1 bedroom detached house for sale in Inverness, Highland, IV3 — £250,000 • 1 bed • 1 bath • 508 ft²
2 bedroom semi-detached house for sale in County Houses, Lochend, IV3 — £175,000 • 2 bed • 1 bath • 743 ft²
5 bedroom detached house for sale in Drumnadrochit, Inverness, Highland, IV63 — £480,000 • 5 bed • 4 bath • 3048 ft²
3 bedroom semi-detached house for sale in 5 Hillhead, Inverness, IV2 6XS, IV2 — £230,000 • 3 bed • 2 bath • 652 ft²
3 bedroom detached house for sale in East Balchraggan Cottage- Lot 2, Drumnadrochit, Inverness, Highland, IV63 — £275,000 • 3 bed • 2 bath • 1568 ft²


























































































