LE13 0GX - Commercial property for sale in Welby Road, Melton Mowbray,…

View on Property Piper

Commercial property for sale in Welby Road, Melton Mowbray, LE13

Summary - DEFENCE ANIMAL TRAINING REGIMENT HEADQUARTERS, REMOUNT BARRACKS, ASFORDBY ROAD LE13 0GX

1 bed 1 bath Commercial Property

**Standout Features:**
- Expansive 6,000 sq ft workshop and office space
- Situated on a large one-acre site with serene forest views
- Well-designed office area promoting efficiency
- Strategic location with excellent road links to major routes
- Ample parking for staff and visitors
- Secured premises for added safety
- Equipped with essential utilities
- Flexible lease options available

This impressive commercial property offers a spacious 6,000 sq ft workshop/office setup, making it ideal for manufacturing, distribution, or warehousing needs. Located on a generous one-acre plot, it provides an aesthetically pleasing environment with tranquil forest views. The modern office area is purposefully designed to enhance productivity, creating a perfect blend of workspace and functionality.

Accessibility is a significant advantage, as the property enjoys convenient access to major transport routes, ensuring efficient connectivity for logistics and operations. With plenty of parking for both employees and visitors, security is prioritized to safeguard your investments. Whether you are seeking to expand your business or establish a new presence, this versatile property is tailored to meet diverse operational requirements.

While the broadband speeds in the area are noted to be slow, the overall condition of the property and its modern industrial features present substantial potential. Priced competitively at £995,000, this is an opportunity not to be missed—especially for those ready to capitalize on its promising future potential. Don't wait too long as properties of this caliber, complemented by flexibility in lease terms, are rare in this thriving suburb.

Property Details

Brochure Descriptions

Image Descriptions

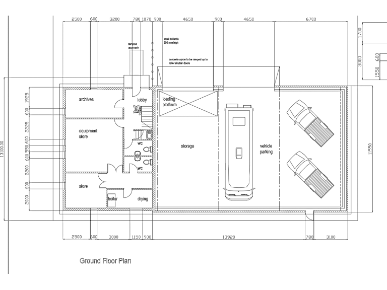
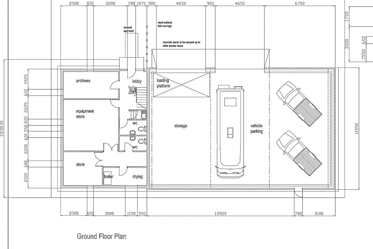
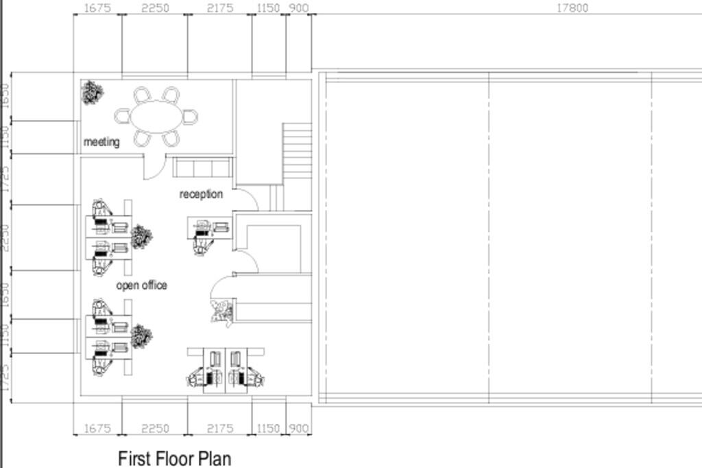
Floorplan Description

Rooms

Textual Property Features

Detected Visual Features

Nearby Schools

Nearest Bars And Restaurants

,,,,}

Nearest General Shops

,,}

Nearest Grocery shops

,,}

Nearest Supermarkets

,,}

Nearest Religious buildings

,,}

Nearest Medical buildings

,,,}

Nearest Airports

}

Nearest Leisure Facilities

,,,,}

Nearest Tourist attractions

,,}

Nearest Train stations

,,,,}

Nearest Bus stations and stops

,,,,}

Nearest Hotels

,,}

Tags

Local Market Stats

Similar Properties

Meta

High Res Images

Compatible Images

Low res Images

Thumbnails

Raw Images

High Res Floorplan Images

Compatible Floorplan Images

Low res Floorplan Images

FloorplanImages Thumbnail

Raw Floorplan Images