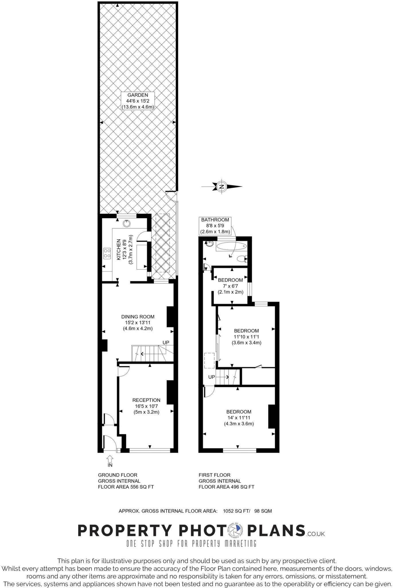
**Standout Features:**
- End of terrace home with three bedrooms
- Spacious living with two reception rooms
- Large loft with conversion potential (subject to planning permission)
- Private low-maintenance garden
- Excellent location near schools and transport
- Freehold tenure with off-street parking
**Summary:**
Discover this charming three-bedroom end-of-terrace home, perfectly tailored for families or first-time buyers looking for a blend of comfort and potential. Spanning 1,052 square feet, this property boasts two generous reception rooms that bask in natural light, a well-equipped kitchen, and a modern family bathroom positioned on the first floor alongside two double bedrooms and a single.
The outdoor space features a private garden, ideal for relaxation and play, while the large loft offers the opportunity for extension and personalization (subject to planning approval). Located on Benhill Road, the home enjoys proximity to 19 local schools rated 'Good' by Ofsted, making it a fantastic choice for families dedicated to education. With Sutton train station just 0.7 miles away, enjoy swift access to central London in under 30 minutes.
Although the property has solid brick walls without insulation and a double-glazed window installation that may need reviewing, the benefits far outweigh these considerations. Light and airy interiors, excellent mobile signal and fast broadband add to the overall appeal, giving you a comfortable place to call home, while the bustling Sutton High Street nearby offers a wealth of shopping and dining options. Don’t miss out on this unique opportunity; schedule your viewing today!
3 bedroom semi-detached house for sale in Lower Road, Sutton, SM1 — £475,000 • 3 bed • 1 bath • 843 ft²
3 bedroom semi-detached house for sale in Carshalton Road, Sutton, SM1 — £625,000 • 3 bed • 1 bath • 1283 ft²
3 bedroom semi-detached house for sale in Gander Green Lane, Sutton, SM1 — £750,000 • 3 bed • 1 bath • 1389 ft²
3 bedroom semi-detached house for sale in Benhill Road, Sutton, SM1 — £570,000 • 3 bed • 1 bath • 991 ft²
3 bedroom terraced house for sale in Fairlands Avenue, Sutton, SM1 — £600,000 • 3 bed • 1 bath • 1105 ft²
3 bedroom end of terrace house for sale in Morland Road, Sutton, SM1 — £625,000 • 3 bed • 2 bath • 1332 ft²






















































