Spacious four-bedroom house with large dining kitchen and off-street parking.
Extended layout with flexible ground-floor bedroom potential
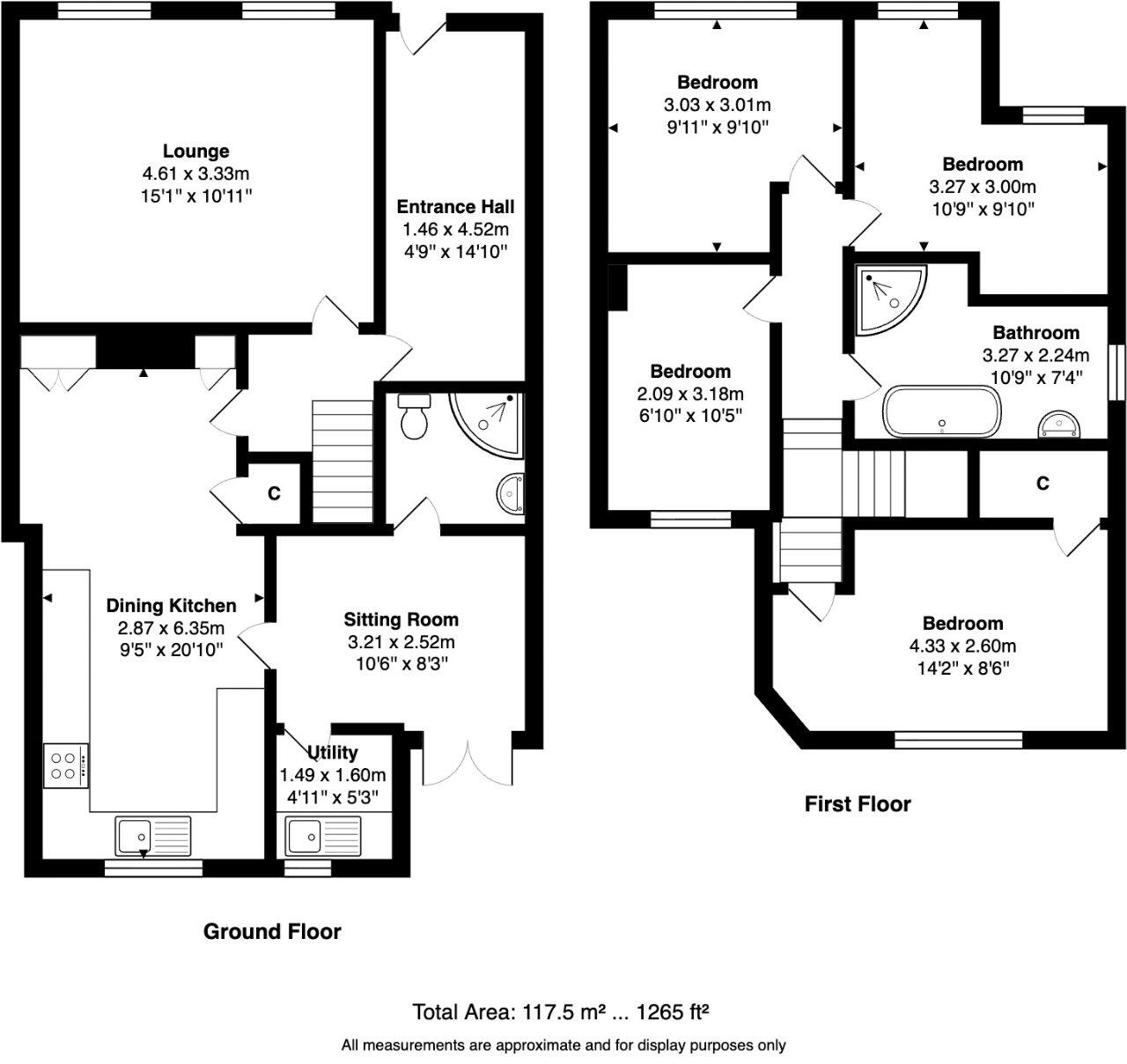
This extended four-bedroom home sits at the end of a cul-de-sac and is configured for flexible family living across two floors. Ground floor layout includes a bright lounge, large dining kitchen, separate sitting room, utility/wash area and a practical ground-floor shower room — the ground-floor room could be used as a bedroom if required. The first floor hosts four bedrooms and a four-piece family bathroom. The finish is modern throughout with double glazing and gas central heating.
Outside offers useful off-street parking to the front and a modest, pleasant rear garden. The plot and room sizes are typical for a suburban semi; parking is generous while the rear garden is small-to-average. Practical details: freehold tenure, low council tax band, no flooding risk, and fast broadband with excellent mobile signal. Low Moor train station and several Good-rated primary schools are nearby.
Material considerations: the property sits in an area with higher deprivation indicators and average local crime levels, which may concern some buyers. The house dates from the 1930s–1940s, so potential buyers should note the age of the structure despite modern fittings. Overall this is a well-presented, versatile family home offering immediate occupation or straightforward improvement for future value.
4 bedroom semi-detached house for sale in Cleckheaton Road, Low Moor, Bradford, BD12 — £240,000 • 4 bed • 2 bath • 969 ft²
5 bedroom semi-detached house for sale in Buttershaw Lane, Wibsey, Bradford, BD6 — £375,000 • 5 bed • 1 bath • 1819 ft²
4 bedroom semi-detached house for sale in Lindley Drive, Off Poplar Grove, Bradford, BD7 — £267,000 • 4 bed • 2 bath • 1292 ft²
4 bedroom detached house for sale in Puffin Close, Bradford, BD6 — £389,950 • 4 bed • 2 bath • 1030 ft²
3 bedroom semi-detached house for sale in Hollybank Gardens, Horton Bank Top, Bradford, BD7 — £239,950 • 3 bed • 1 bath • 1177 ft²
4 bedroom detached house for sale in Thorndene Way, Westgate Hill, Bradford, West Yorkshire, BD4 — £375,000 • 4 bed • 2 bath • 1367 ft²






























































































































