Spacious family living with gardens and parking in well‑served location.
Recently completed side and rear extension with dormer conversions
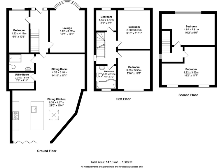
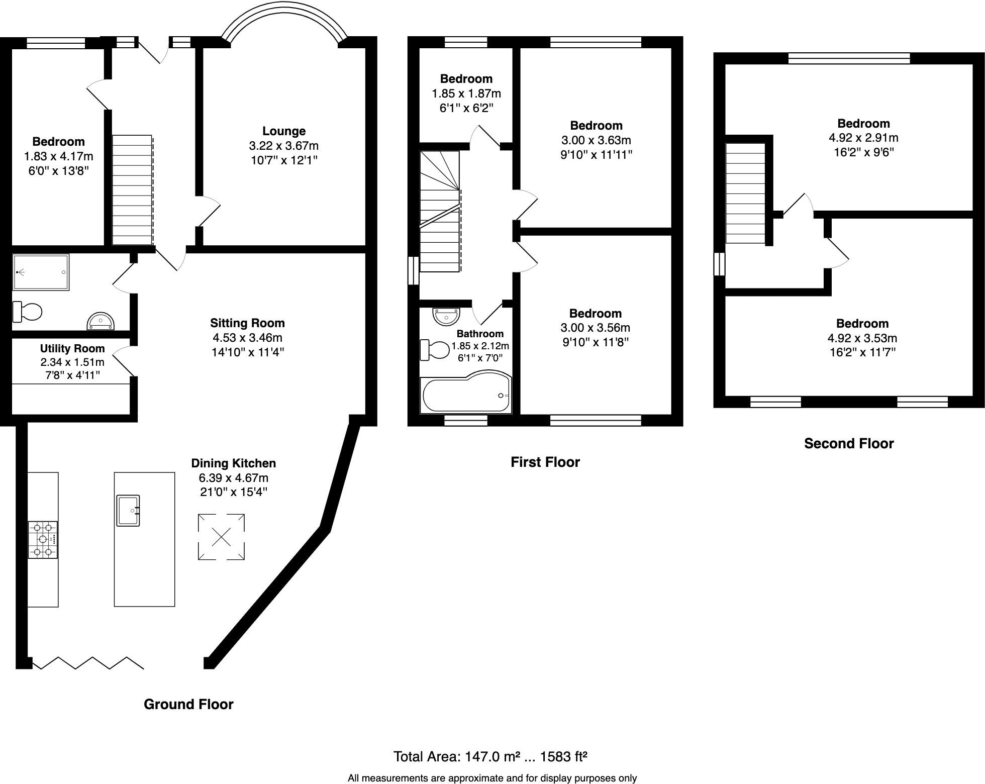
Five/six flexible bedrooms across three floors
Stunning family/dining kitchen, utility room and ground-floor shower
Large front and rear gardens with gated driveway parking
Gas central heating and double glazing throughout (install date unknown)
Freehold with affordable council tax
Situated near amenities and commuter routes to Bradford/Halifax
Area records higher crime; two secondary schools rated Inadequate
This substantial semi‑detached house has been extensively refurbished and extended to create flexible family accommodation across three floors. The recently completed side and rear extension and dormer conversions provide generous living space, a superb family/dining kitchen, utility and shower room, plus a ground‑floor bedroom/office — ideal for growing families or those needing home working space.
Externally the property offers sizeable front and rear gardens and a gated driveway with off‑street parking. Gas central heating and double glazing are fitted throughout; the home is presented to a high standard and ready to move into. Its location just off Halifax Road gives easy access to local shops, services and commuter routes into Bradford and Halifax.
Important considerations: the home sits in an area with higher recorded crime levels, and two nearby secondary schools are rated Inadequate by Ofsted. The property was constructed in the 1930s–1940s and, while newly renovated, details such as the double glazing install date are unknown — buyers may wish to check guarantees, services and any construction warranties. Council tax is described as affordable and tenure is freehold.
6 bedroom semi-detached house for sale in Bartle Close, Great Horton, Bradford, BD7 — £320,000 • 6 bed • 3 bath • 1421 ft²
5 bedroom semi-detached house for sale in Walden Drive, BRADFORD, BD9 — £235,000 • 5 bed • 2 bath • 679 ft²
4 bedroom semi-detached house for sale in Beech Road, Odsal, Bradford, BD6 — £280,000 • 4 bed • 2 bath • 1173 ft²
4 bedroom semi-detached house for sale in Lindley Drive, Off Poplar Grove, Bradford, BD7 — £267,000 • 4 bed • 2 bath • 1292 ft²
4 bedroom semi-detached house for sale in Reevy Avenue, Wibsey, Bradford, BD6 — £395,000 • 4 bed • 2 bath • 1324 ft²
4 bedroom detached house for sale in Puffin Close, Bradford, BD6 — £389,950 • 4 bed • 2 bath • 1030 ft²






































































































































































