**Standout Features:**
- Guide Price: £350,000 - £375,000
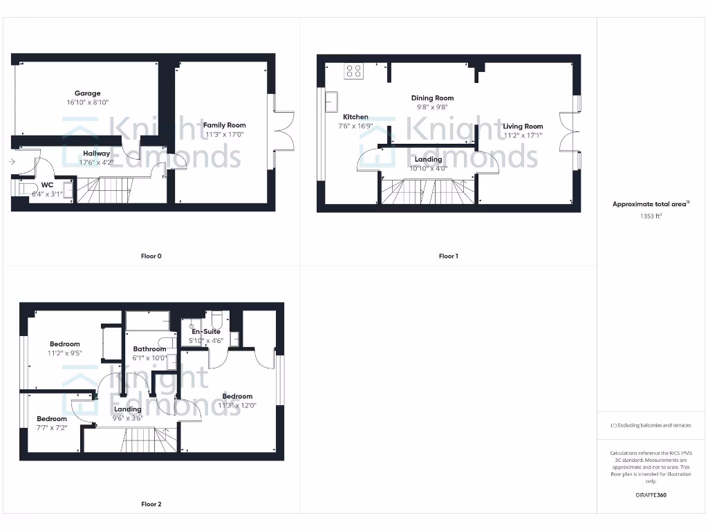
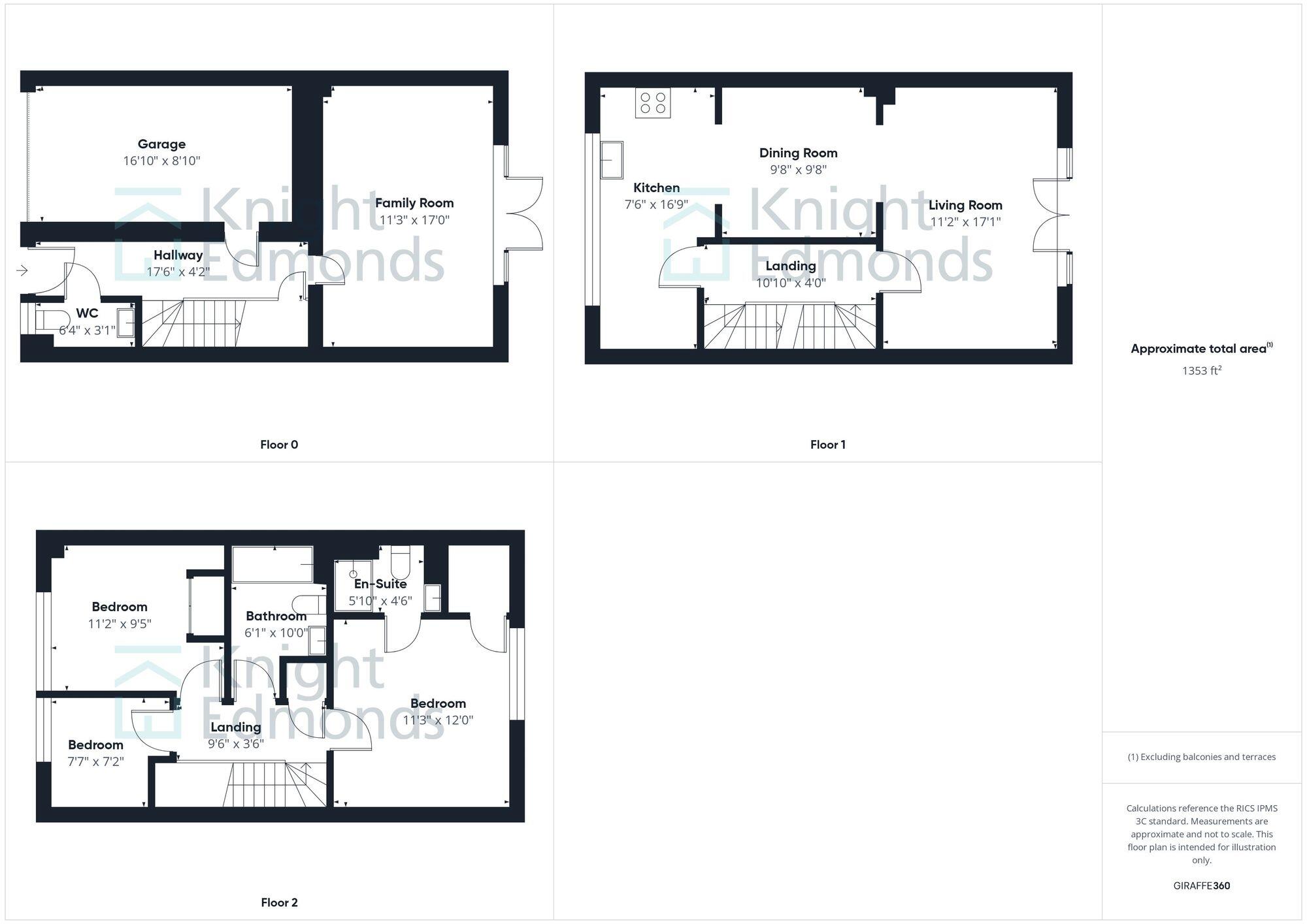
- Spacious three-level townhouse with 1497 sq ft
- Integral garage plus additional front parking
- Open-plan living spaces ideal for family gatherings
- Located near essential amenities and excellent transport links
- Close to good-rated primary and secondary schools
- Peaceful garden accessible from the reception room
**Potential Downsides:**
- Average crime rate in the area
- Property size on a smaller plot
This modern townhouse, perfectly nestled in a friendly community, boasts a thoughtfully designed three-level layout that caters to family needs. The ground floor features a convenient downstairs w.c., an integral garage, and a bright reception room that flows seamlessly into a serene garden—a perfect retreat for relaxation. The first floor is the heart of the home, showcasing an inviting lounge, a modern dining area, and a contemporary kitchen, ideal for entertaining family and friends.
Three generously-sized bedrooms await on the top floor, including a master suite with fitted storage and an ensuite shower, plus a stylish family bathroom for added convenience. With good-rated schools within walking distance and a variety of local amenities nearby, this property is a fantastic opportunity for families and first-time buyers alike. Tailored for modern living, the house offers not just comfort and exclusivity but the potential for further renovations. Don't miss out on this inviting home that combines practicality with a welcoming ambiance—schedule a viewing today!
3 bedroom semi-detached house for sale in Church Street, Tovil, ME15 — £325,000 • 3 bed • 2 bath • 893 ft²
4 bedroom town house for sale in Redstart Avenue, Maidstone, ME15 — £400,000 • 4 bed • 2 bath • 1157 ft²
3 bedroom terraced house for sale in Marigold Way, Maidstone, Kent, ME16 — £375,000 • 3 bed • 4 bath • 1402 ft²
4 bedroom town house for sale in Becksbourne Close, Maidstone, ME14 — £400,000 • 4 bed • 1 bath • 1433 ft²
3 bedroom end of terrace house for sale in Sutton Road, Maidstone, Kent, ME15 — £350,000 • 3 bed • 2 bath • 1045 ft²
3 bedroom terraced house for sale in New Hythe Lane, Larkfield, Aylesford, Kent, ME20 — £350,000 • 3 bed • 3 bath • 1182 ft²














































































