GU14 9RP - 4 bed spacious family home farnborough in The Birches, GU14…

View on Property Piper

4 bedroom detached house for sale in The Birches, Farnborough, Hampshire, GU14

Summary - 26 THE BIRCHES FARNBOROUGH GU14 9RP

4 bed 1 bath Detached

Corner-plot garden with extension potential and modern interiors.
Deceptively spacious four-bedroom detached family home
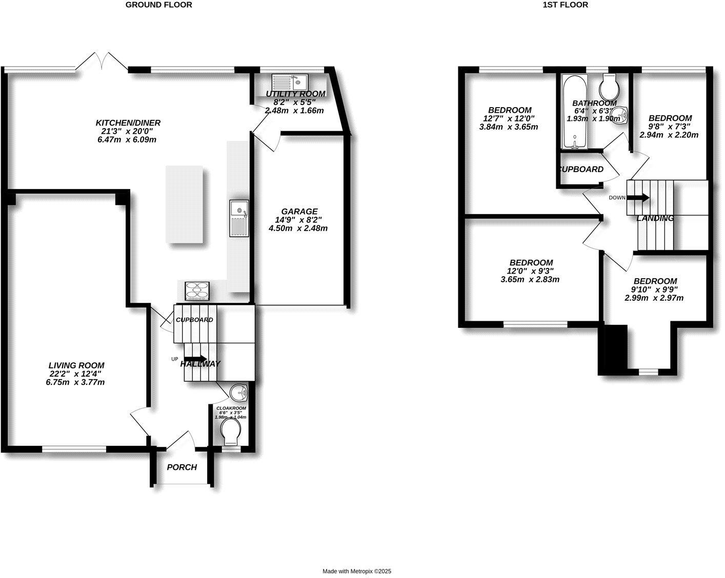
Tucked into a quiet cul-de-sac, this four-bedroom detached home feels larger than it appears thanks to a full-width rear extension and well-planned layout. The living spaces are bright and modern, complemented by a recently refitted kitchen, utility room and good decorative order throughout. An integral garage and off-street parking add practical convenience for families.

The corner-plot garden wraps around the property with a full-width patio and lawn, offering room for children to play and scope to extend further (previous planning permission was granted; details not specified). The house benefits from double glazing, mains gas heating and an EPC rating of C (73), making it efficient for its age.

Buyers should note there is a single family bathroom serving four bedrooms, and council tax sits at band E (above average). Although the property is newly renovated, any purchaser seeking to enlarge the home further will need to confirm planning details and budgets. Overall, the layout and size suit growing families wanting a ready-to-move-in house with sensible potential to adapt in future.

Local schools and transport links are within easy reach, and the peaceful street setting backs onto green space, providing a suburban feel while remaining close to town amenities. Viewings are recommended for those prioritising usable family space and extension potential.

Property Details

Brochure Descriptions

Image Descriptions

Floorplan Description

Rooms

Textual Property Features

Target Audience

AI Tags

Detected Visual Features

EPC Details

Nearby Schools

Nearest Bars And Restaurants

,,,,}

Nearest General Shops

,,}

Nearest Grocery shops

,,}

Nearest Supermarkets

,,}

Nearest Religious buildings

,,}

Nearest Medical buildings

,,,}

Nearest Airports

}

Nearest Leisure Facilities

,,,,}

Nearest Tourist attractions

,,}

Nearest Train stations

,,,,}

Nearest Bus stations and stops

,,,,}

Nearest Hotels

,,}

Tags

Local Market Stats

Similar Properties

Meta

High Res Images

Compatible Images

Low res Images

Thumbnails

Raw Images

High Res Floorplan Images

Compatible Floorplan Images

Low res Floorplan Images

FloorplanImages Thumbnail

Raw Floorplan Images