Plot with PIP for a 3-bed contemporary home, close to schools and Falkirk High station..
- PIP for 3-bed detached house (Planning ref P/23/0285/FUL)
- Three bathrooms planned; two off-street parking spaces included
- Architect-designed concept by Ryan Mar provided
- Excellent mobile signal and fast broadband availability
- No flood risk recorded for the site
- Requires detailed planning, build contract and construction funding
- Tenure currently unspecified — buyer to verify
- Wider area shows signs of deprivation; consider resale context
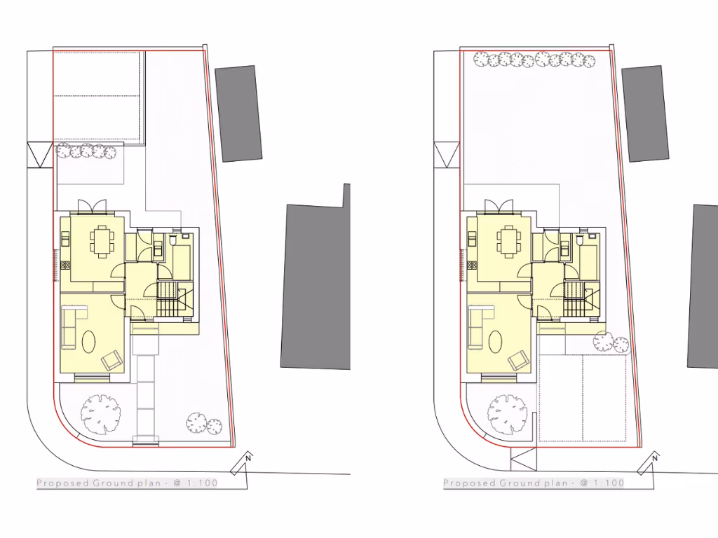
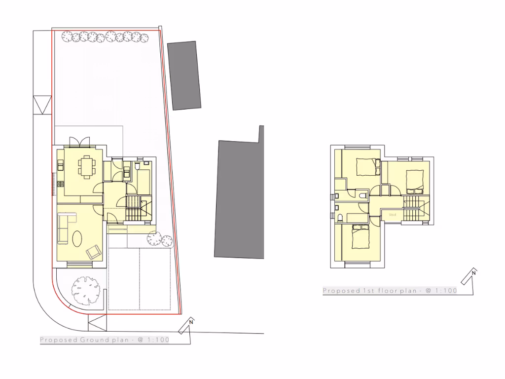
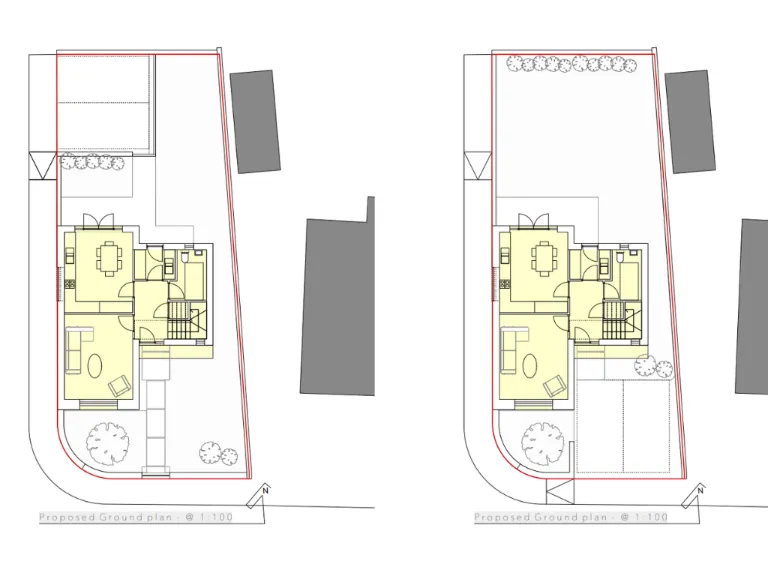
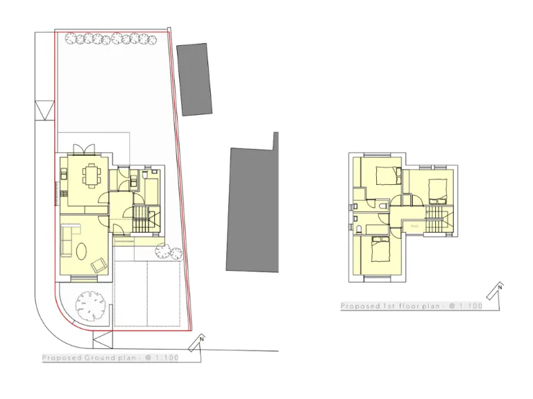
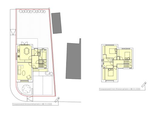
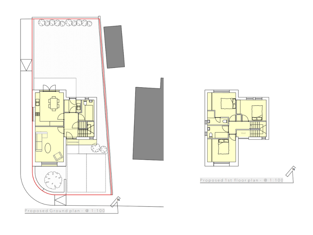
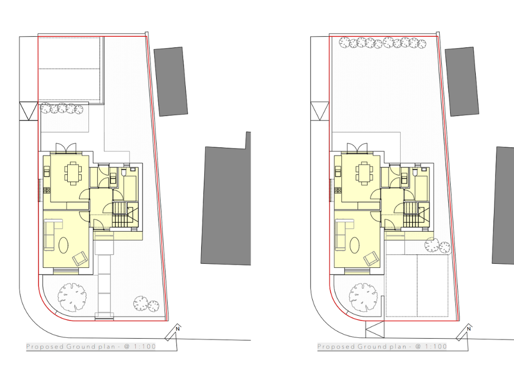
This plot on Gartcows Road offers a rare self-build chance with plans in principle for a contemporary three-bedroom detached house. The approved outline (Planning ref P/23/0285/FUL) covers a three-bed design with three bathrooms and two off-street parking spaces, giving buyers a clear starting point for a bespoke family home.
Located close to local schools, shops and Falkirk High rail links, the site suits commuters and families seeking convenience. The architect (Ryan Mar) has prepared modern drawings reflecting large windows and contemporary finishes; excellent mobile signal and fast broadband support home working and connectivity.
Buyers should note this is a development plot: the PIP requires submission of detailed planning and building works to complete the home. Tenure is unspecified and build costs, contractor appointments and statutory fees will be required. The wider area shows mixed socio-economic indicators (area deprivation noted), so buyers should consider local context and resale expectations.
Overall this is a strong opportunity for a self-builder or investor prepared to manage a new-build project in a well-connected Falkirk location. With planning groundwork in place and no flooding risk, the plot is ready for someone to take it forward and create a modern family property.
Land for sale in The Studio, Burnfoot Lane, Falkirk, FK1 5BH, FK1 — £129,995 • 4 bed • 1 bath
Land for sale in Afton Plots, Candie, FK1 — £160,000 • 1 bed • 1 bath
Land for sale in Pardovan Holdings Building Plot, Linlithgow, EH49 — £225,000 • 1 bed • 1 bath • 1690 ft²
Land for sale in Princes Street, California, FK1 — £46,000 • 3 bed • 2 bath
Plot for sale in Plot 5 Myrehead Steading, Whitecross, EH49 6LQ, EH49 — £127,000 • 1 bed • 1 bath • 4251 ft²
Land for sale in Wallace Brae Grove, Reddingmuirhead, Falkirk, Stirlingshire, FK2 — £5,000 • 1 bed • 1 bath • 427 ft²






























