**Standout Features:**
- Freehold land plot sized at 396 sqm (427 sq ft)
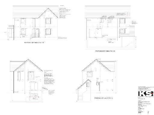
- Planning permission potential for a two-storey detached villa (subject to approval)
- Located in a private residential area by Wimpey Homes
- Excellent mobile signal and fast broadband speeds
- Quiet cul-de-sac location with green space nearby
- Short distance to amenable Brightons village and Polmont railway stations
**Concerns:**
- Area classified as deprived, which may impact long-term value
- Priced for auction with specific purchasing terms and non-refundable fees
---
Discover a rare opportunity to create your dream home on this 396 sqm freehold land plot in a tranquil cul-de-sac in the sought-after Reddingmuirhead area. With potential planning permission for a two-storey detached villa, this parcel of land is ideal for those looking to craft a bespoke residence tailored to their lifestyle needs.
Nestled within comfortable suburbia, it offers the perfect balance of peaceful living while still being close to the vibrant amenities of Falkirk, including leisure facilities and schools. Investors and first-time buyers alike will appreciate the community feel and accessibility to excellent transport links, with Polmont railway station just a short drive away.
The property is being sold via the Modern Method of Auction, requiring a reservation fee and completion within 56 days, presenting a chance for savvy buyers to secure a compliant and development-ready project. Don’t miss this exclusive chance to shape a home in a desirable location—act fast, as this opportunity won’t be available for long!
Land for sale in , 0.5 Acre Site at Waggon Road, Falkirk, FK20EL, FK2 — £5,000 • 1 bed • 1 bath
Land for sale in Firs Street, Falkirk, Stirlingshire, FK2 — £5,000 • 1 bed • 1 bath
Land for sale in Land, Main Street, Falkirk, FK2 — £35,000 • 1 bed • 1 bath
Land for sale in East of Dumyat, Waggon Road, Brightons FK2 0EJ, FK2 — £85,000 • 1 bed • 1 bath
Land for sale in The Studio, Burnfoot Lane, Falkirk, FK1 5BH, FK1 — £129,995 • 4 bed • 1 bath
Land for sale in , Land at Ardgay Road, Bonnybridge, FK42FL, FK4 — £9,000 • 1 bed • 1 bath










