Create a spacious new home with planning approved and panoramic rural views near Linlithgow.
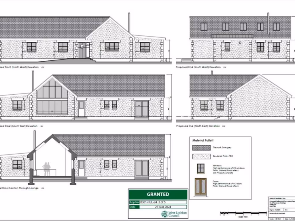
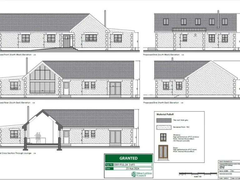
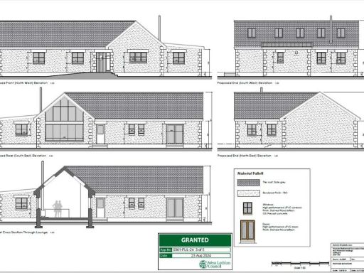
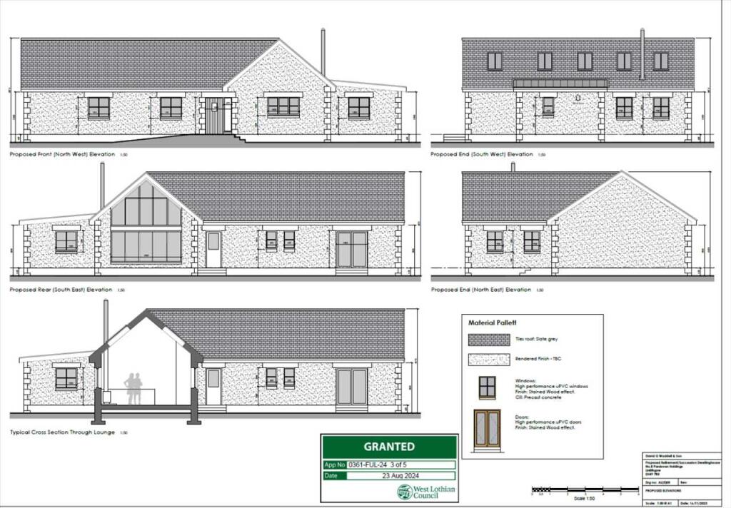
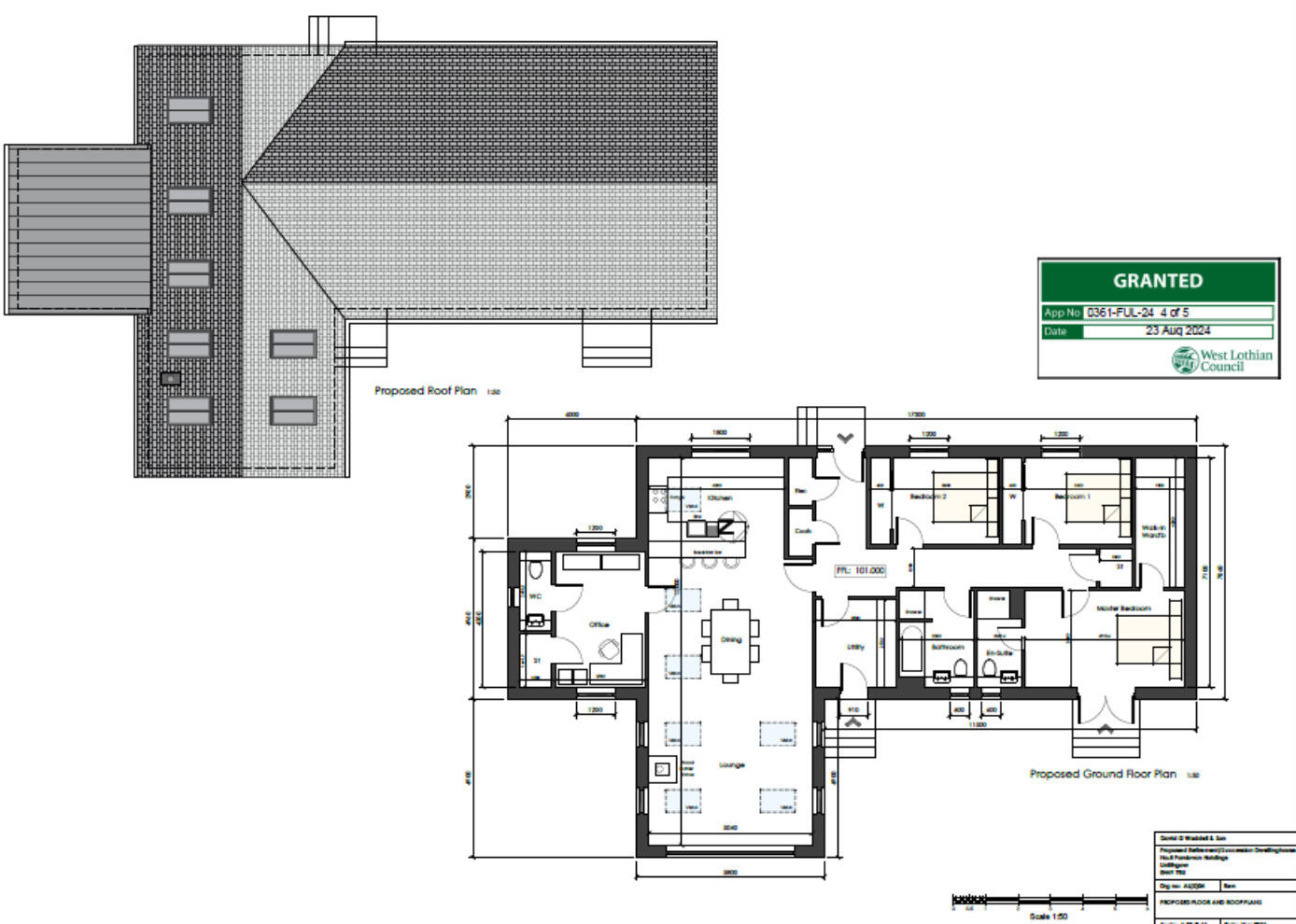
Full planning permission for 158m2 3/4-bed bungalow (ref 0361/FUL/24)
This unserviced self-build plot offers a rare chance to create a spacious detached bungalow with full planning permission in a well-connected semi-rural setting. Permission is granted for a 158m2, 3/4-bedroom bungalow (plus walk-in loft with Velux windows) under planning reference 0361/FUL/24, so you can move straight to detailed build planning and contractor quotes.
The site benefits from long countryside views, private access and excellent mobile signal. Road and rail links are close by — Linlithgow station provides regular services to Edinburgh and Glasgow, the M8/M9 networks are a short drive, and Edinburgh Airport is around nine miles away. There is no flooding risk recorded for the plot.
Buyers should note material facts: the plot is unserviced (mains services not connected) and broadband speeds in the area are slow. Tenure is listed as unknown and the wider area is described as having high levels of deprivation, which may affect local services and perceptions. The listing references a combined plot size c.0.56 acre in one section and c.0.49 acre in another; purchasers should confirm exact legal boundaries and area in the title documentation and during survey.
This opportunity is best suited to someone prepared to commission utilities, site works and undertake a self-build project. For an owner-occupier or investor seeking long-term value in central Scotland, the full planning permission, excellent transport links and striking rural outlook are strong selling points, provided you allow for site connection costs and confirm legal boundaries before exchange.
Land for sale in Building Plot at South Couston, Bathgate, Bathgate, EH48 — £225,000 • 1 bed • 1 bath • 4610 ft²
Land for sale in Afton Plots, Candie, FK1 — £160,000 • 1 bed • 1 bath
Plot for sale in Plot 6, Myrehead Steading, Whitecross, EH49 6LQ, EH49 — £117,000 • 1 bed • 1 bath • 427 ft²
Plot for sale in Plot At 6 Drovers Bank, Linlithgow, West Lothian, EH49 — £180,000 • 1 bed • 1 bath • 1733 ft²
Plot for sale in Plot 4, Myrehead Steading, Whitecross EH49 6LQ, EH49 — £140,000 • 1 bed • 1 bath
Plot for sale in Plot 5 Myrehead Steading, Whitecross, EH49 6LQ, EH49 — £127,000 • 1 bed • 1 bath • 4251 ft²


























