Bright four-bedroom property with large south-west garden and garage.
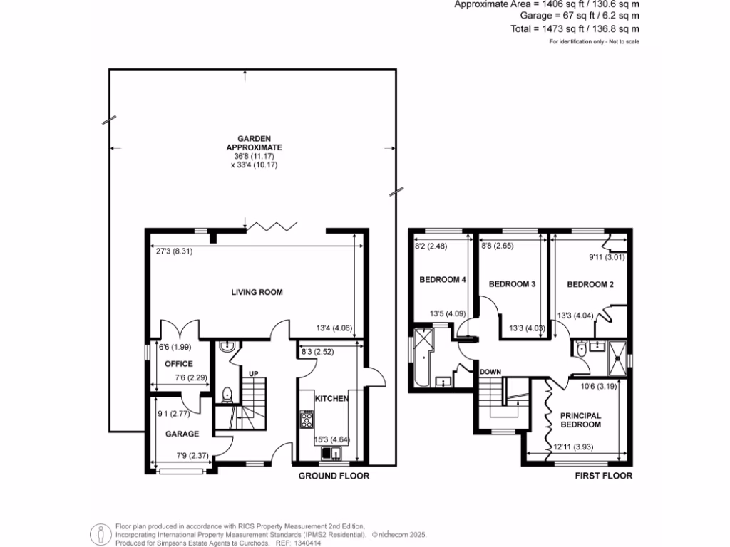
Detached four-bedroom house with 1,473 sq ft of living space
Set in a peaceful cul-de-sac in the heart of Shepperton, this well-presented four-bedroom detached house offers 1,473 sq ft of flexible family accommodation. The ground floor centres on a generous 27ft open-plan living/dining space with patio doors that create a strong indoor–outdoor flow into a south-west facing garden ideal for afternoon sun and entertaining. A dedicated home office provides practical space for remote working.
Upstairs are four generous bedrooms, including a principal with fitted wardrobes, and two bathrooms. Practical features include an integral garage, driveway parking and useful utility/guest cloakroom on the ground floor. The home benefits from excellent mobile reception and fast broadband — helpful for homework and streaming.
The property was built in the late 1960s–1970s and is immaculately presented, though some elements reflect its age. Double glazing was installed before 2002 and the heating is mains gas with a boiler and radiators; buyers should budget for eventual updates to windows, heating or other services typical of homes from this era.
Buyers should note a medium flood risk for the area and that council tax is described as expensive. Overall this is a roomy, comfortable family home in an affluent neighbourhood with good local schools and community amenities, offering solid potential for cosmetic modernisation or extension (subject to planning).
4 bedroom detached house for sale in St. Nicholas Drive, Shepperton, TW17 — £799,950 • 4 bed • 2 bath • 1506 ft²
4 bedroom detached house for sale in Watersplash Road, Shepperton, TW17 — £725,000 • 4 bed • 3 bath • 1522 ft²
3 bedroom detached house for sale in Mulberry Trees, Shepperton, TW17 — £820,000 • 3 bed • 1 bath • 1616 ft²
4 bedroom detached house for sale in The Crofts, Shepperton, TW17 — £900,000 • 4 bed • 3 bath • 2068 ft²
4 bedroom terraced house for sale in Sheep Walk, Shepperton, TW17 — £540,000 • 4 bed • 3 bath • 1239 ft²
4 bedroom detached house for sale in Gaston Way, Shepperton, Middlesex, TW17 — £675,000 • 4 bed • 1 bath • 908 ft²


































































