Bright new-build home with large garden and eco-saving features.
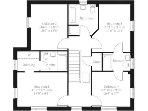
Four bedrooms with flexible layout for family living
This newly built four-bedroom detached house on Sketchley Lane offers a large, flexible layout for family life. The standout open-plan kitchen/dining/snug with an island and bi-fold/French doors leads directly into the sizable garden, creating a bright, sociable ground floor. A separate living room and a study/home office provide practical spaces for everyday living and remote working.
The home is designed with energy efficiency in mind: solar panels, an EV charging point and a 10-year new homes warranty reduce running costs and long-term risk. A single integral garage and driveway parking sit on a generous plot in a comfortable suburban neighbourhood with fast broadband and Good-rated primary and secondary schools nearby.
Buyers should note some important clarifications: the listing text references three bathrooms and a dressing room, but the supplied property data records only one bathroom — confirm exact fittings and room count at viewing. Council tax banding is not yet available post-occupation. Overall, this is a contemporary, low-maintenance family house with strong eco-credentials and room to adapt for changing needs.
4 bedroom detached house for sale in Sketchley Lane,
Burbage,
Leicestershire,
LE10 3HU, LE10 — £659,995 • 4 bed • 1 bath • 1205 ft²
4 bedroom detached house for sale in Sketchley Lane,
Burbage,
Leicestershire,
LE10 3HU, LE10 — £529,995 • 4 bed • 1 bath • 363 ft²
4 bedroom detached house for sale in Sketchley Lane,
Burbage,
Leicestershire,
LE10 3HU, LE10 — £639,995 • 4 bed • 1 bath • 594 ft²
4 bedroom detached house for sale in Sketchley Lane,
Burbage,
Leicestershire,
LE10 3HU, LE10 — £629,995 • 4 bed • 1 bath • 1511 ft²
5 bedroom detached house for sale in Sketchley Lane,
Burbage,
Leicestershire,
LE10 3HU, LE10 — £739,995 • 5 bed • 1 bath • 610 ft²
3 bedroom detached house for sale in Sketchley Lane,
Burbage,
Leicestershire,
LE10 3HU, LE10 — £420,000 • 3 bed • 1 bath • 419 ft²


































































































































































































