Spacious family layout with modern fixtures and large private plot.
Open-plan kitchen/family room with bi-fold doors for outdoor access
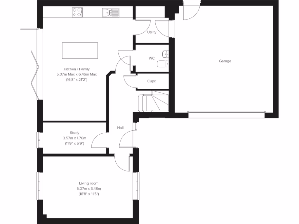
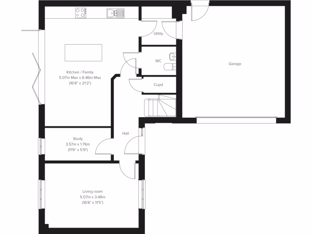
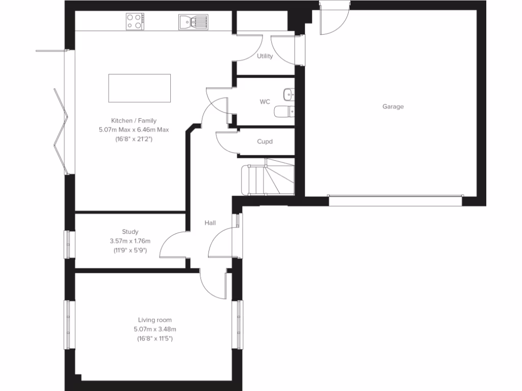
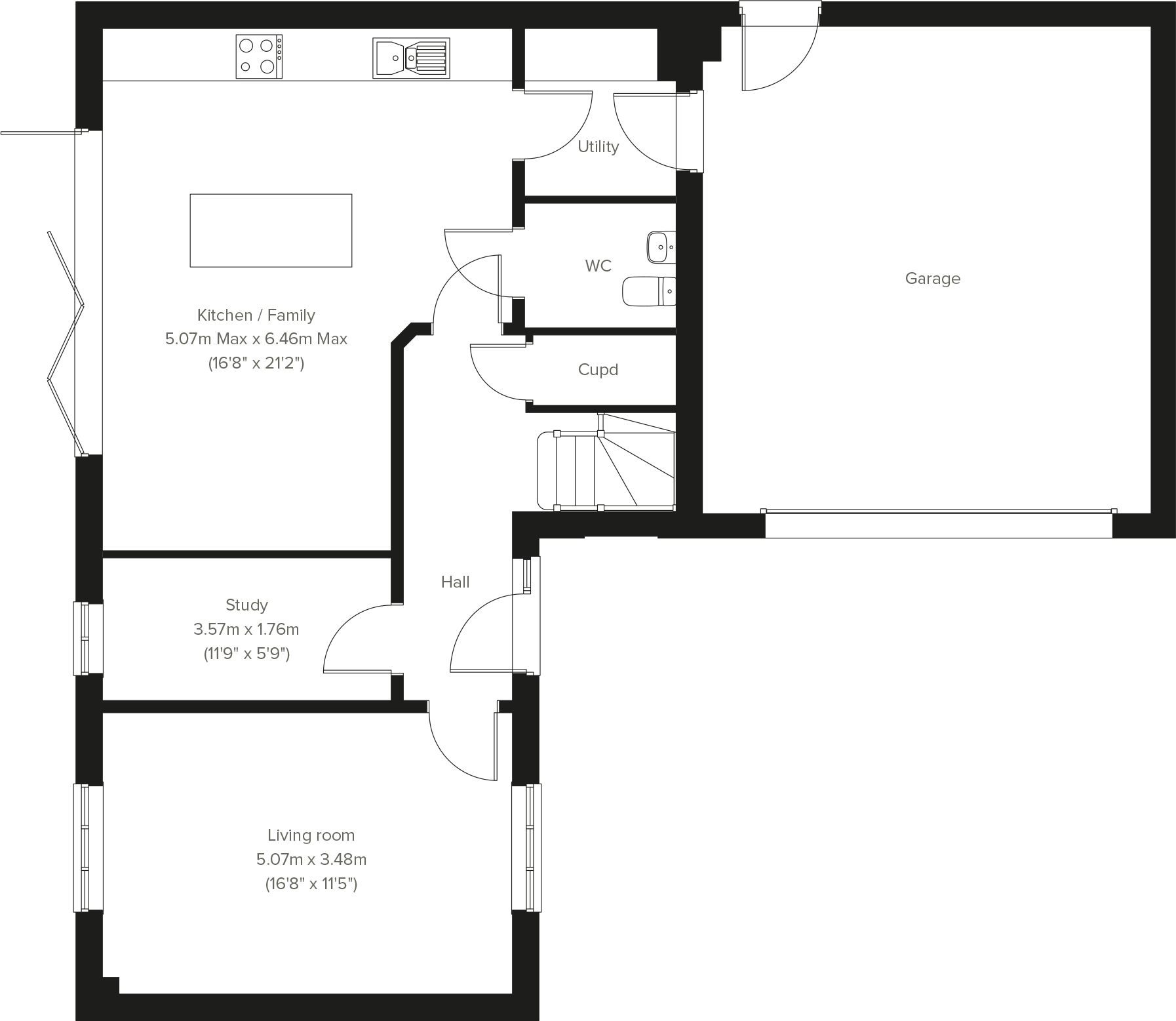
This new-build five-bedroom detached home on Sketchley Lane combines contemporary living with practical family spaces. The open-plan kitchen/family room with bi-fold doors creates a bright inside/outside entertaining area, while a separate lounge, study and utility give everyday flexibility. Two bedrooms include dressing rooms and en suites, with additional bedrooms and a family bathroom for the children or guests.
Practical benefits include an integral double garage, handy storage cupboards and energy-efficient construction designed to lower running costs. The property sits in a comfortable suburban area with fast broadband and large plot size, close to a mix of well-rated primary and secondary schools.
Important factual notes: the listing states a total internal area of 610 sq ft despite five bedrooms—prospective buyers should verify the measurements and room layout. The description also lists multiple en suites and a family bathroom; confirm the exact number of bathrooms and internal floorplan before arranging a viewing. Overall, this house suits families wanting modern, low-energy living with generous outdoor space, provided dimensions meet expectations.
4 bedroom detached house for sale in Sketchley Lane,
Burbage,
Leicestershire,
LE10 3HU, LE10 — £529,995 • 4 bed • 1 bath • 363 ft²
4 bedroom detached house for sale in Sketchley Lane,
Burbage,
Leicestershire,
LE10 3HU, LE10 — £652,995 • 4 bed • 1 bath • 2417 ft²
3 bedroom detached house for sale in Sketchley Lane,
Burbage,
Leicestershire,
LE10 3HU, LE10 — £420,000 • 3 bed • 1 bath • 419 ft²
3 bedroom detached house for sale in Sketchley Lane,
Burbage,
Leicestershire,
LE10 3HU, LE10 — £434,000 • 3 bed • 1 bath • 419 ft²
4 bedroom detached house for sale in Sketchley Lane,
Burbage,
Leicestershire,
LE10 3HU, LE10 — £639,995 • 4 bed • 1 bath • 594 ft²
4 bedroom detached house for sale in Sketchley Lane,
Burbage,
Leicestershire,
LE10 3HU, LE10 — £659,995 • 4 bed • 1 bath • 1205 ft²


















































































































