Spacious garden and modern living ideal for growing families.
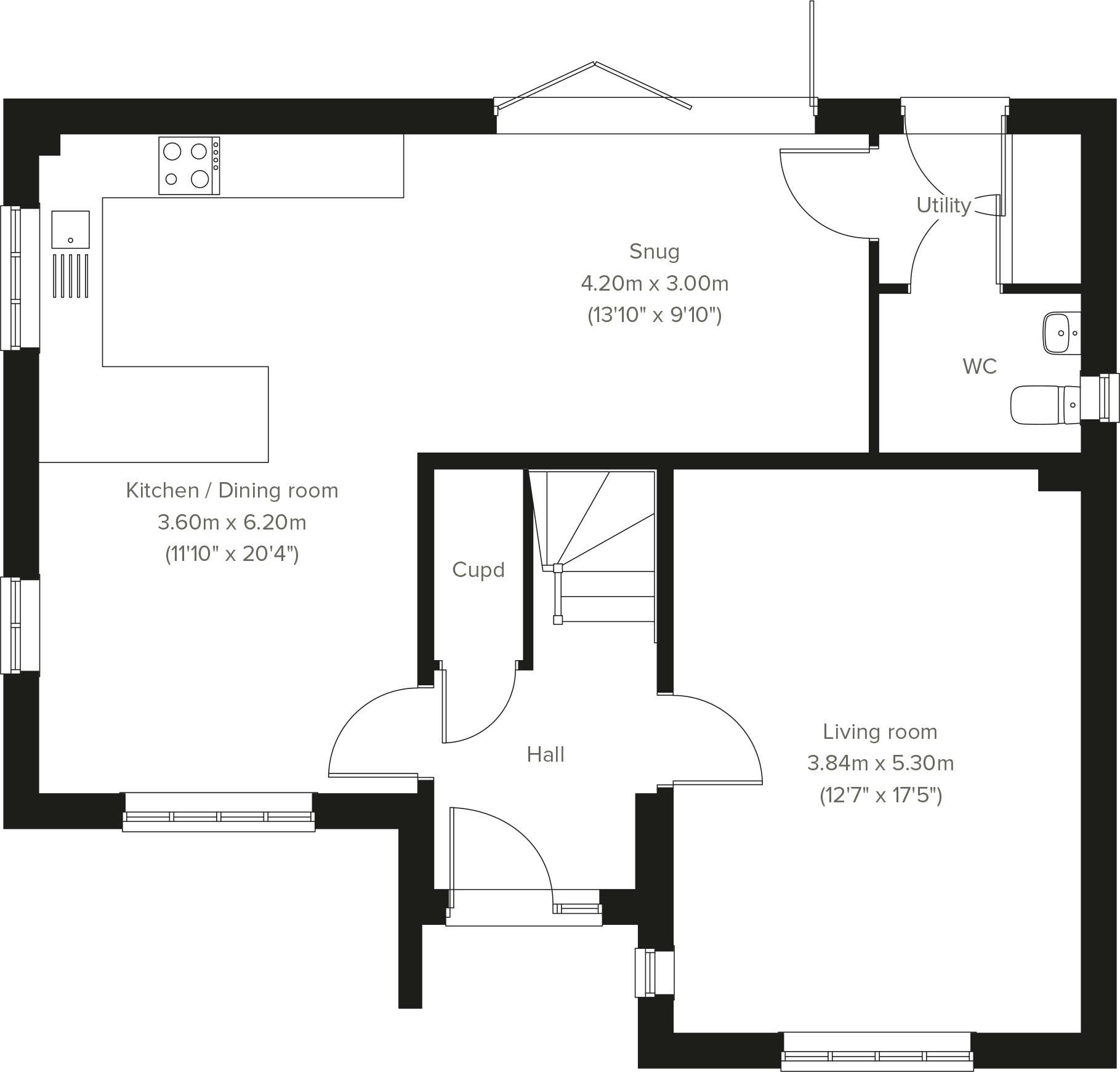
Open-plan kitchen/dining/snug with bi-fold doors to garden
Separate living room for quieter family time
Bedroom one with en-suite; modern family bathroom
Utility room with outside access; single garage parking
New-build, energy-efficient construction
Compact total floor area (~594 sq ft) — small for four bedrooms
Council tax band not yet available; check post-occupation
Located in a comfortable, affluent suburban development
This four-bedroom detached home at Sketchley Lane offers modern family living in a comfortable suburban setting. The open-plan kitchen/dining/snug with bi-fold doors connects the living space to a large enclosed garden, creating a bright social hub for daily family life and entertaining. There is a separate living room for quieter family time.
Bedroom one has an en-suite and there is a modern family bathroom, giving useful flexibility for parents and children. A handy utility room with outside access and a single garage add practical storage and parking. The house is new-build and energy efficient, which should help running costs.
Buyers should note the property’s compact total floor area (approximately 594 sq ft), which is small for a four-bedroom house — bedrooms and circulation space are likely to feel tight. Council tax band is not yet available. The location in Sketchley Park places the home close to good primary and secondary schools and landscaped parkland typical of the development.
Overall, this home suits families seeking contemporary finishes, garden space and energy efficiency in an affluent, suburban neighbourhood, but those needing generous internal space should check room sizes carefully before viewing.
4 bedroom detached house for sale in Sketchley Lane,
Burbage,
Leicestershire,
LE10 3HU, LE10 — £659,995 • 4 bed • 1 bath • 1700 ft²
4 bedroom detached house for sale in Sketchley Lane,
Burbage,
Leicestershire,
LE10 3HU, LE10 — £629,995 • 4 bed • 1 bath • 489 ft²
3 bedroom detached house for sale in Sketchley Lane,
Burbage,
Leicestershire,
LE10 3HU, LE10 — £434,000 • 3 bed • 1 bath • 419 ft²
4 bedroom detached house for sale in Sketchley Lane,
Burbage,
Leicestershire,
LE10 3HU, LE10 — £652,995 • 4 bed • 1 bath • 2417 ft²
4 bedroom detached house for sale in Sketchley Lane,
Burbage,
Leicestershire,
LE10 3HU, LE10 — £529,995 • 4 bed • 1 bath • 363 ft²
3 bedroom detached house for sale in Sketchley Lane,
Burbage,
Leicestershire,
LE10 3HU, LE10 — £420,000 • 3 bed • 1 bath • 419 ft²






















































































































































