Easy, secure living with services and communal facilities nearby.
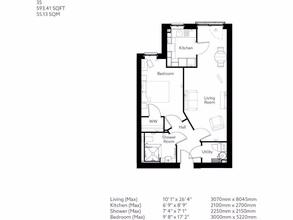
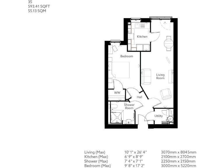
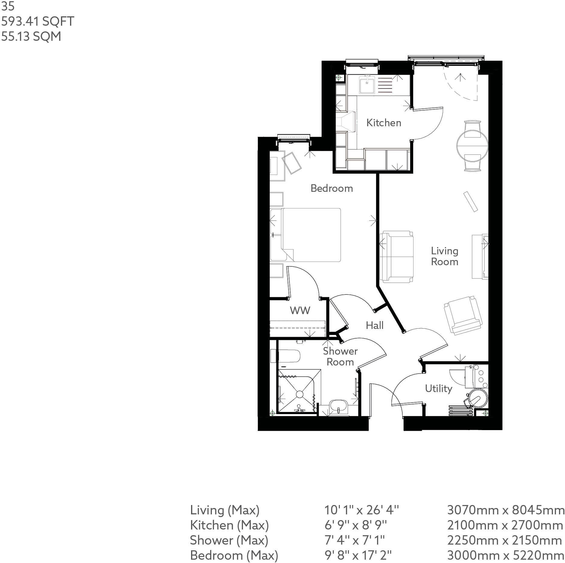
First-floor one-bedroom apartment, 593 sq ft
A purpose-built retirement apartment designed for easy living in a central Southampton location. The one-bedroom, 593 sq ft first-floor flat (built 2022) has a bright living room with a south-east facing Juliet balcony overlooking landscaped gardens, a separate fitted kitchen with integrated appliances, and a generous walk-in wardrobe. On-site communal facilities include a chef-run bistro, wellness suite, landscaped gardens and 24/7 emergency alarm and call systems, giving independence with added security.
Practical running costs and care support are built in: a weekly domestic cleaning hour (or similar) is included in the service charge, and tailored care packages are available if needed. The flat uses electric room heaters and has an SAP rating up to 81, suggesting reasonable energy performance for an all-electric property. The long lease (999 years) provides secure tenure for future resale or inheritance.
Considerations: the development sits in a busy, cosmopolitan student neighbourhood and the area records higher-than-average crime levels, which may affect noise and street activity at certain times. Heating is by electric room heaters rather than central gas, and council tax banding is not specified. The property is leasehold and subject to service charges and communal rules, so buyers should review these costs and any care agreements before committing.
2 bedroom retirement property for sale in Flats 1 - 66,
1 BANISTER ROAD,
Southampton,
SO15 — £308,000 • 2 bed • 1 bath • 789 ft²
1 bedroom property for sale in Banister Road, Southampton, Hampshire, SO15 — £225,000 • 1 bed • 1 bath • 593 ft²
1 bedroom retirement property for sale in Flats 1 - 66,
1 BANISTER ROAD,
Southampton,
SO15 — £275,000 • 1 bed • 1 bath • 593 ft²
1 bedroom retirement property for sale in Flats 1 - 66,
1 BANISTER ROAD,
Southampton,
SO15 — £275,000 • 1 bed • 1 bath • 593 ft²
2 bedroom flat for sale in Banister Road, Southampton, Hampshire, SO15 — £300,000 • 2 bed • 1 bath • 789 ft²
1 bedroom retirement property for sale in The Avenue, Southampton, Hampshire, SO17 — £263,000 • 1 bed • 1 bath • 544 ft²






























































