Secure, social living with onsite care and low-maintenance communal facilities.
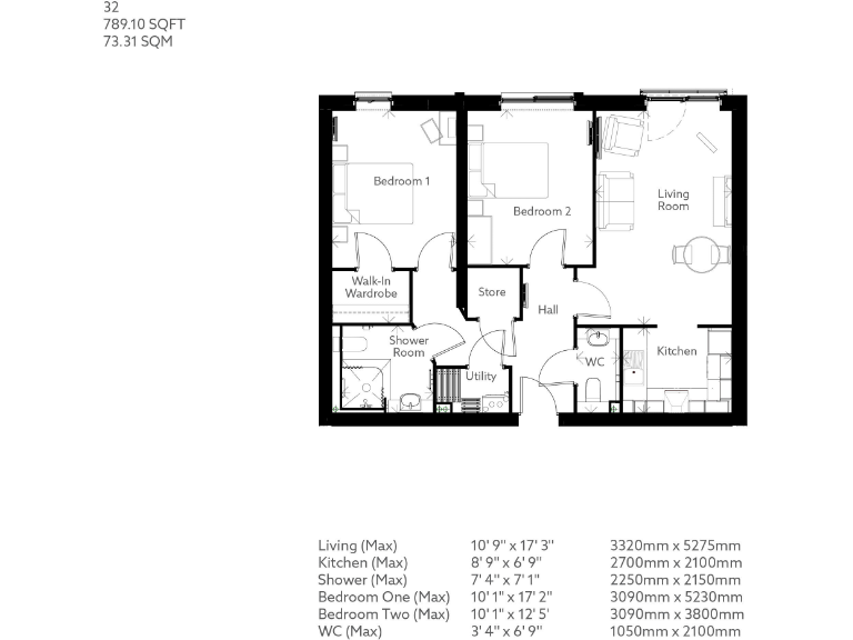
First-floor two-bedroom retirement apartment, built 2022
Low-maintenance living with gardening and one hour weekly cleaning included
24/7 emergency call system, intruder alarms and onsite staff
Bright open-plan living with Juliet balcony overlooking The Avenue
Integrated kitchen appliances and useful utility cupboard storage
Main bedroom with walk-in wardrobe; large walk-in shower room
Electric room heaters — potentially higher running costs
Located in a high-crime, student-focused neighbourhood — possible noise
This first-floor two-bedroom retirement apartment at May Tree Place offers low-maintenance, contemporary living with supportive onsite facilities. Built in 2022, the apartment feels modern and secure, with an emergency 24/7 call system, intruder alarms and friendly staff available. Its position near the lift makes the communal Bistro, Homeowners’ Lounge, Wellbeing Suite and Guest Suite easily accessible.
The layout works for independent living: a bright open-plan living/dining area with a Juliet balcony overlooking The Avenue, a fitted kitchen with integrated appliances, a walk-in wardrobe to the main bedroom and a large walk-in shower room. At roughly 789 sq ft, the apartment provides practical storage including a utility cupboard and a dedicated WC.
Service charges include communal gardening and one hour of weekly domestic help (or similar), reducing everyday chores and supporting an easier lifestyle. The 999-year lease removes typical lease-term anxiety and recent construction means major repairs are unlikely in the short term.
Notable drawbacks are factual and relevant: heating is electric room heaters which can be more expensive than gas central heating; the development sits within a high-crime, cosmopolitan student neighbourhood which may bring occasional noise or activity; council tax banding is not provided; and the property is leasehold with service charges to budget for. Prospective buyers should review service charge details and running costs before committing.
1 bedroom retirement property for sale in Flats 1 - 66,
1 BANISTER ROAD,
Southampton,
SO15 — £250,000 • 1 bed • 1 bath • 593 ft²
2 bedroom flat for sale in Banister Road, Southampton, Hampshire, SO15 — £300,000 • 2 bed • 1 bath • 789 ft²
1 bedroom property for sale in Banister Road, Southampton, Hampshire, SO15 — £225,000 • 1 bed • 1 bath • 593 ft²
1 bedroom retirement property for sale in Flats 1 - 66,
1 BANISTER ROAD,
Southampton,
SO15 — £275,000 • 1 bed • 1 bath • 593 ft²
1 bedroom retirement property for sale in Flats 1 - 66,
1 BANISTER ROAD,
Southampton,
SO15 — £275,000 • 1 bed • 1 bath • 593 ft²
1 bedroom retirement property for sale in The Avenue, Southampton, Hampshire, SO17 — £263,000 • 1 bed • 1 bath • 544 ft²


























































