**Standout Features:**
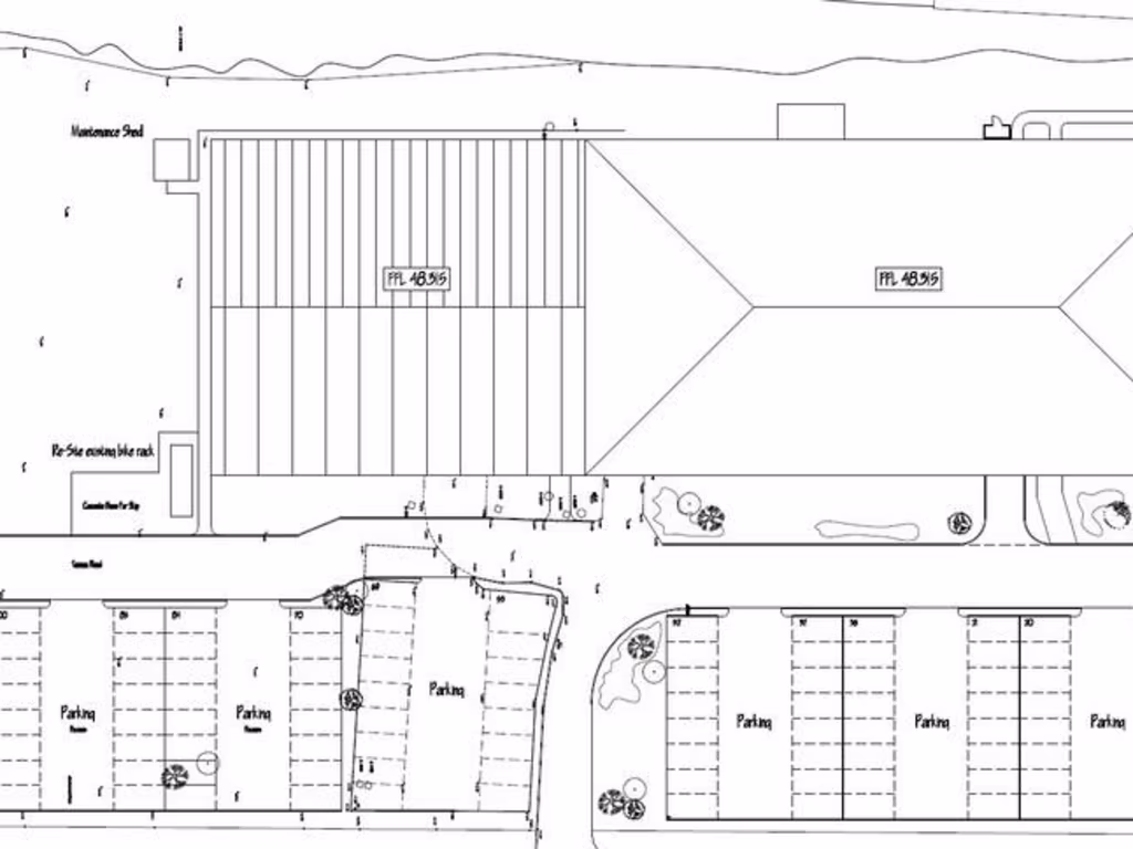
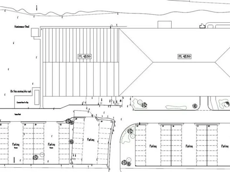
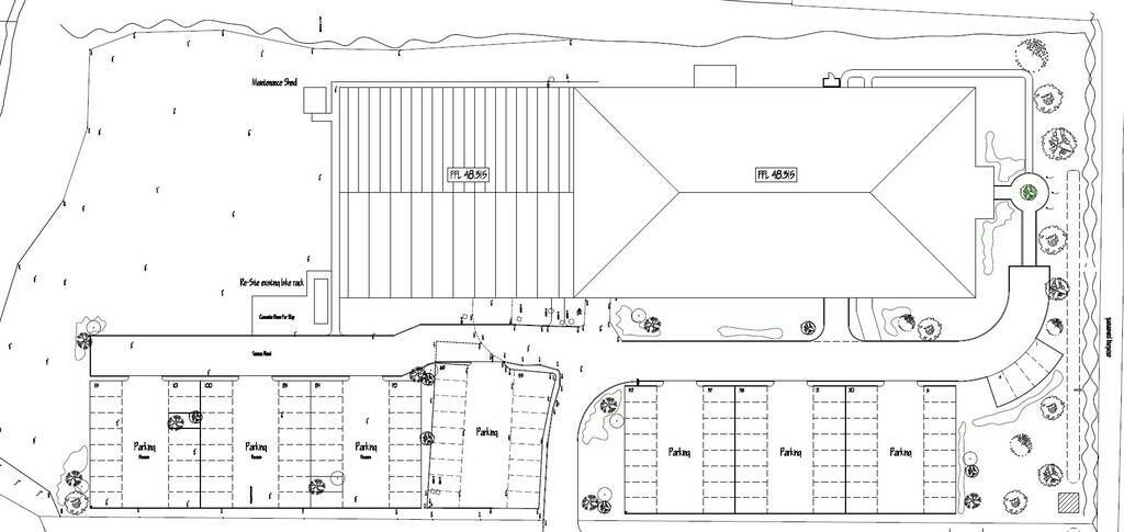
- Large industrial unit with total space of 24,757 sq ft.
- Modern construction with significant updates, built in 2001 and expanded in 2011.
- Versatile space with potential for reconfiguration: 2,300 sq m of storage/production area and additional mezzanine options.
- Two full-height roller shutter doors for efficient loading and unloading.
- Huge parking capacity for approximately 100 vehicles and cycle bays.
- Freehold property with a guide price of £2,400,000.
**Concise Summary:**
Located in the thriving business park of Cothey Way, Ryde, this expansive industrial unit offers incredible versatility for investors or business owners. With a striking total area of 24,757 sq ft, including modern office spaces and significant storage capacity, the property is well-suited for various industrial operations and can be adapted to meet specific needs. The building features a functional office block and essential amenities, such as staff rooms and WC facilities, ensuring comfort and utility for employees.
This property not only boasts a prime location near key transport links to mainland Portsmouth but also benefits from excellent parking facilities. While the property has substantial appeal, prospective buyers should consider the maintenance and renovation opportunities it offers, as well as the average local amenities which may affect operational convenience. In a growing area surrounded by business and leisure facilities, don’t miss the chance to secure this investment—properties of this size and flexibility in Ryde are rare!
Light industrial facility for sale in Unit 1, 4 Solent Road, Havant, PO9 1JH, PO9 — £1,500,000 • 1 bed • 1 bath • 8290 ft²
Distribution warehouse for sale in Forest Road, Newport, PO30 — £795,000 • 1 bed • 1 bath • 8755 ft²
Warehouse for sale in Unit 6 Hardley Industrial Estate, Hardley, Southampton, SO45 3NQ, SO45 — £410,000 • 1 bed • 1 bath • 10123 ft²
Light industrial facility for sale in Unit 7 Winchester Hill Business Park, Winchester Hill, Romsey, SO51 7UT, SO51 — £560,000 • 1 bed • 1 bath • 2239 ft²
Distribution warehouse for sale in Unit 8, Arnside Road, Waterlooville, Hampshire, PO7 — POA • 1 bed • 1 bath • 16324 ft²
Warehouse for sale in 16a Westfield Industrial Estate, Portsmouth Road, Horndean, PO8 9JX, PO8 — £875,000 • 1 bed • 1 bath • 6870 ft²














