Large, flexible warehouse with forecourt and EV charging — change of use pending.
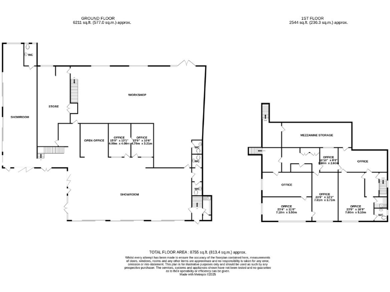
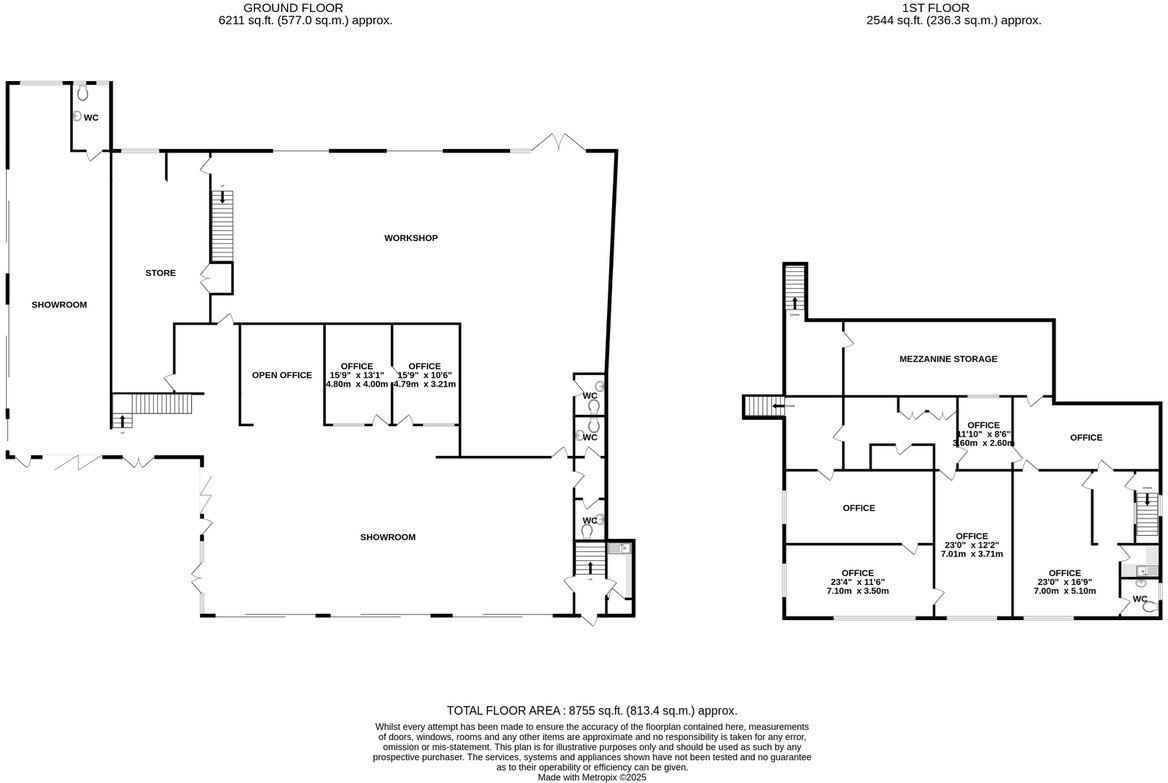
Approximately 8,755 sq ft overall with mezzanine storage
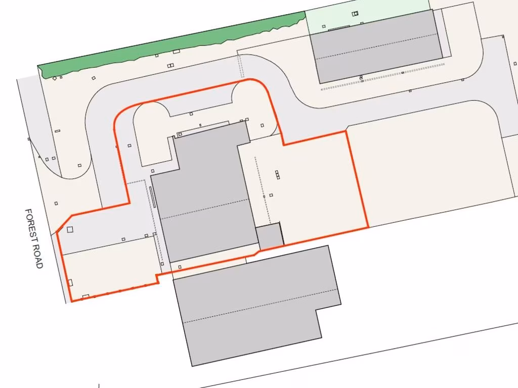
A highly visible, multi-storey distribution warehouse on Forest Road, offered as a long leasehold (999 years) at a guide price of £795,000. The building totals approximately 8,755 sq ft with a large paved forecourt, secure rear yard and on-site EV charging point — well suited to motor trade, light industrial B2/B8 uses or a variety of Class E commercial activities (change of use being submitted).
The property’s metal-frame construction and high-ceiling former hangar layout provide a flexible open-plan ground floor for showroom, workshop or storage, with substantial first-floor office accommodation and mezzanine storage. The unit is easy to access from Newport town centre and nearby ferry links, benefiting from strong roadside exposure and scope for subdivision if required.
Practical considerations: the asset is leasehold (999 years) and currently has planning permission for motor sales; the vendor is submitting applications for B2, B8 and Class E. Broadband is very slow on site and VOA rating is pending. Service charge details and exact parking capacity will be confirmed later.
This property suits an investor or operator seeking a prominent edge-of-town industrial/commercial asset with immediate vehicle display capability and potential for operational conversion or reconfiguration once change-of-use is confirmed.
Out-of-town retail property for sale in Fairlee Road, Newport, PO30 — £75,000 • 1 bed • 1 bath • 1722 ft²
Warehouse for sale in Unit 7 Hardley Industrial Estate, Hardley, Southampton, SO45 3NQ, SO45 — £500,000 • 1 bed • 1 bath • 11530 ft²
Distribution warehouse for sale in Richmond Fareham, Hackett Way, Fareham, Hampshire, PO14 — POA • 1 bed • 1 bath
Business park for sale in Cothey Way, Ryde, PO33 — £2,400,000 • 1 bed • 1 bath • 24757 ft²
Warehouse for sale in Unit 13, Longbridge Industrial Park, Southampton, SO14 3FL, SO14 — £130,000 • 1 bed • 1 bath • 836 ft²
Warehouse for sale in 18 Fairways Business Centre, Airport Service Road, Portsmouth, PO3 5NU, PO3 — £325,000 • 1 bed • 1 bath • 1893 ft²


























