Converted Waterworks Cottage with river views, private parking and contemporary open-plan living..
Riverside location with private, large plot and river views
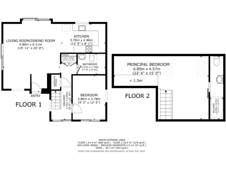
Tucked at the end of a private driveway on the banks of the River Windrush, this converted Waterworks Cottage combines Cotswold character with contemporary living. The standout open-plan kitchen/dining/sitting room is bright and sociable, making daily life and entertaining effortless. Two bedrooms, including a first-floor ensuite, give a comfortable, low-maintenance floorplan suited to full-time living or a weekend retreat.
Outside, the large plot and river views deliver real privacy and a strong sense of place. Private off-street parking and easy access to local villages make daily errands straightforward, while fast broadband and excellent mobile signal support working from home. The property sits in a very low-crime, affluent rural area with good primary and secondary schooling nearby.
Buyers should note a few material points: the house is an older stone conversion (pre-1900) with assumed no cavity insulation in the original walls, heated by an LPG boiler rather than mains gas, and carries an EPC rating of C. Council tax is above average for the area. These features affect running costs and future insulation or fuel upgrades may be advisable.
For downsizers or those seeking a tranquil Cotswold base, this property offers a rare blend of historic charm, private riverside setting and contemporary finish, with clear potential to tailor energy performance and interiors over time.
2 bedroom detached house for sale in Worsham, Witney, OX29 — £450,000 • 2 bed • 2 bath • 1171 ft²
5 bedroom detached house for sale in Shipton Road, Fulbrook, OX18 — £1,625,000 • 5 bed • 3 bath • 3044 ft²
5 bedroom detached house for sale in White Oak Green, Oxfordshire, OX29 — £1,750,000 • 5 bed • 4 bath • 3707 ft²
2 bedroom cottage for sale in Rocky Banks, Brize Norton, Carterton, OX18 3NT, OX18 — £325,000 • 2 bed • 1 bath • 716 ft²
5 bedroom cottage for sale in Marshmouth Lane, Bourton-On-The-Water, GL54 — £895,000 • 5 bed • 4 bath • 2313 ft²
4 bedroom detached house for sale in Little Minster, Minster Lovell, Witney, Oxfordshire, OX29 — £1,250,000 • 4 bed • 2 bath • 4018 ft²


































































































