Auction sale for cash buyers and developers seeking renovation potential.
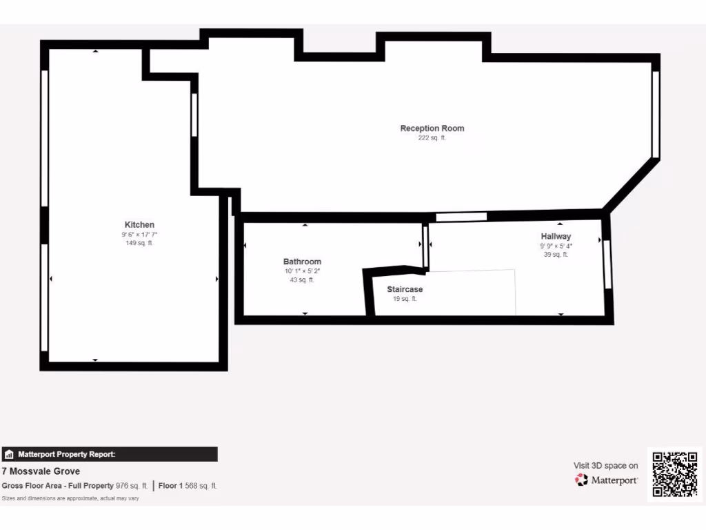
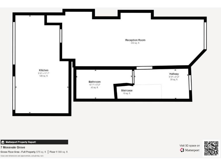
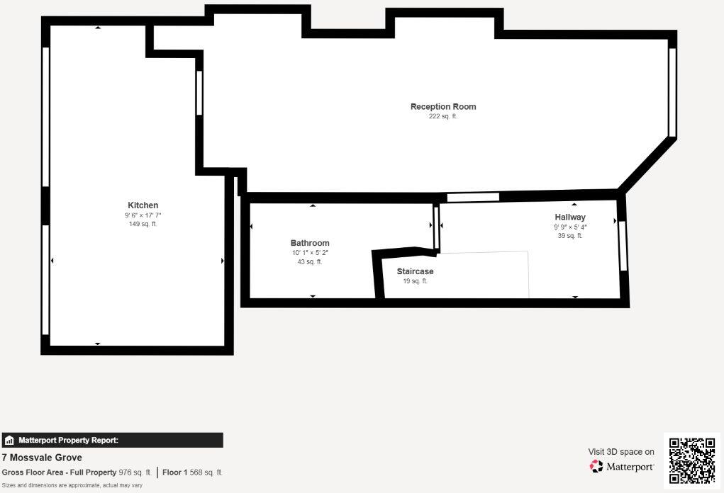
Vacant 2-bed semi-detached circa 1930s, about 976 sq ft
Large plot with front driveway, rear garden, shed and outbuilding
Requires full modernisation; roof and general repairs likely
Leasehold — approx. 10 years unexpired; lenders likely to refuse mortgages
EPC G; solid brick walls assumed without insulation
Sold at public auction — administration fee and unconditional exchange
Fast broadband and excellent mobile signal; good nearby schools
Area classification: very deprived; average local crime
A vacant 1930s semi-detached house offered at public auction, suited to investors or experienced DIY buyers. The property has generous internal space (approx. 976 sq ft), a front driveway, rear garden, outbuildings and period bay windows that retain character. Broadband is fast and mobile signal is excellent, and several Good or Outstanding schools are nearby.
Important constraints are clear and material: the property is leasehold with only about 10 years remaining on a 99-year term from 1937. Mortgage lenders will likely refuse to lend; buyers should expect a cash purchase or specialist financing. The house requires full modernisation — noted roof repairs, probable upgrading of heating and insulation, and an EPC rated G.
Sale is by public auction with an administration fee and unconditional exchange on the fall of the hammer. Viewings are block-based and the legal pack must be read before bidding. The location is in a very deprived ward with average crime; nearby community and amenity provision includes schools, shops, bus routes and halal provisions.
3 bedroom semi-detached house for sale in 27 Woolacombe Lodge Road, Selly Oak, Birmingham, B29 6PZ, B29 — £18,000 • 3 bed • 1 bath • 841 ft²
2 bedroom terraced house for sale in 46 Gough Road, Greet, Birmingham, B11 2NG, B11 — £50,000 • 2 bed • 1 bath • 722 ft²
3 bedroom terraced house for sale in 16 Blounts Road, Erdington, Birmingham, B23 7DH, B23 — £99,000 • 3 bed • 1 bath • 1133 ft²
3 bedroom semi-detached house for sale in 162 Hales Lane, Smethwick, B67 6QY, B67 — £50,000 • 3 bed • 1 bath
3 bedroom semi-detached house for sale in 25 Romilly Avenue, Handsworth Wood, Birmingham, B20 2AT, B20 — £20,000 • 3 bed • 1 bath • 505 ft²
2 bedroom terraced house for sale in 20 William Cook Road, Birmingham, West Midlands B8 2HT, B8 — £100,000 • 2 bed • 1 bath • 711 ft²










































































