Cash buyers or seasoned investors will find clear refurbishment upside.
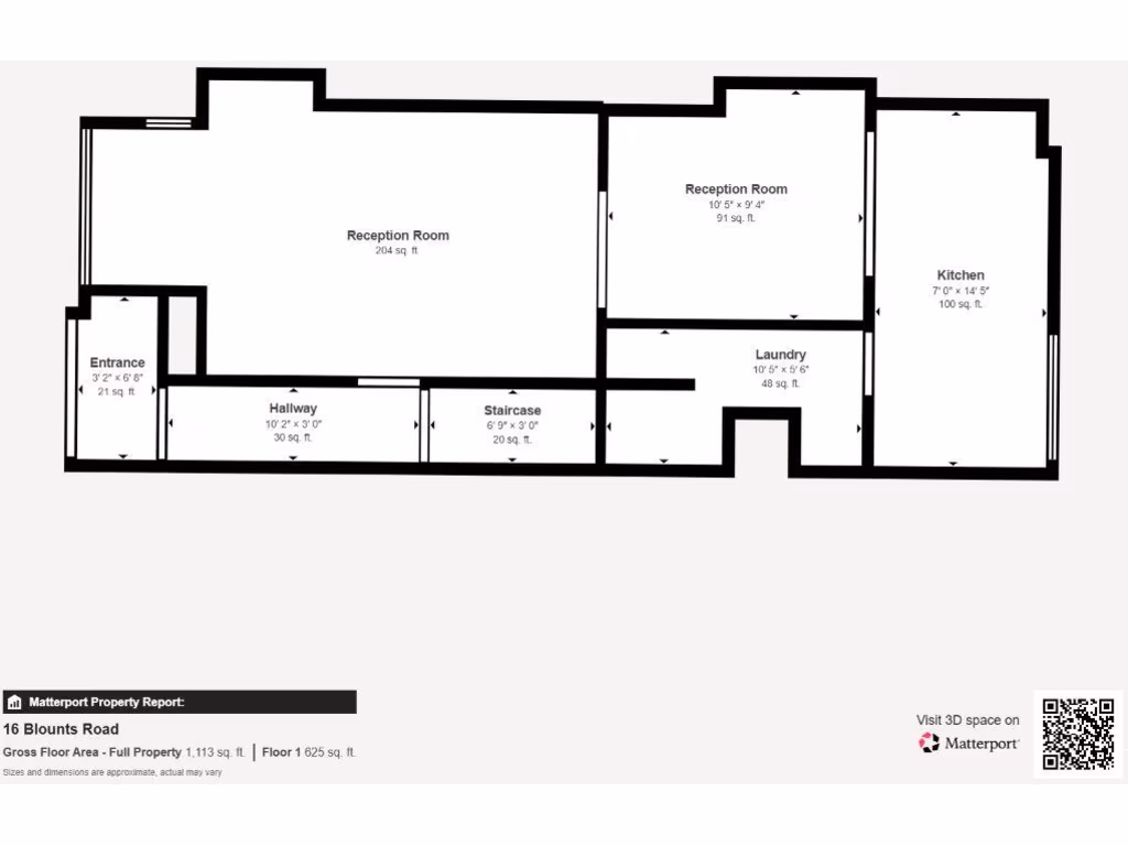
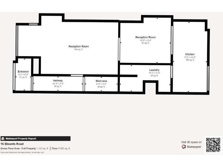
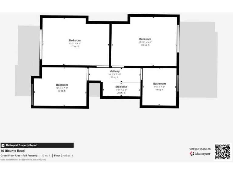
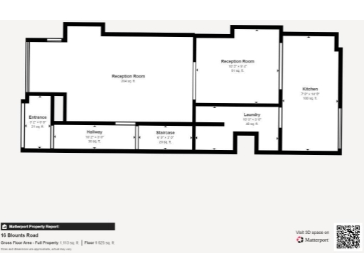
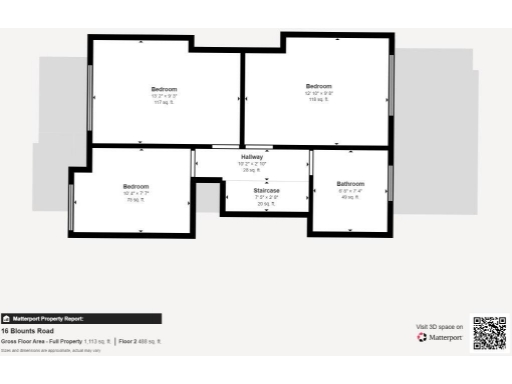
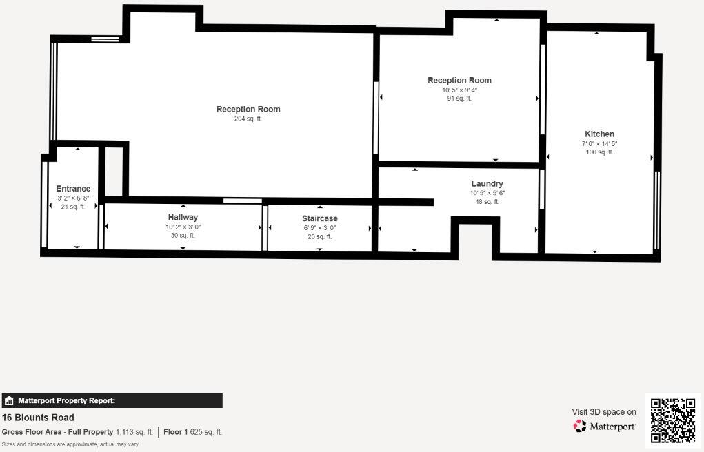
Vacant three-bedroom mid-terrace with driveway and rear garden
A vacant three-bedroom mid-terrace in Erdington offered at public auction—appealing to cash buyers or investors seeking a value purchase and refurbishment opportunity. The house sits behind a foregarden with driveway and rear garden, and benefits from mains gas central heating, double glazing and an EPC rating of D.
The layout of two reception rooms, kitchen, utility and three first-floor bedrooms provides straightforward rental or resale potential once modernised. Broadband speeds are fast and mobile signal is excellent, supporting rental demand; nearby primary and secondary schools are rated Good, which may appeal to family tenants.
Important practical downsides: the property is leasehold with only approximately 44 years remaining, which will likely prevent many mortgage lenders from lending. The sale is by auction with immediate exchange obligations and an administration fee; buyers must study the legal pack for potential additional costs. The area shows high crime levels and significant deprivation, factors investors should weigh when forecasting rental income and repair/security costs.
This lot suits a cash buyer or an experienced investor prepared to manage lease-extension or purchase with no mortgage. Expect scope for cosmetic and energy-efficiency improvements (solid brick walls likely uninsulated) and factor in refurbishment and legal costs before bidding.
1 bedroom maisonette for sale in 14B Lydget Grove, Erdington, Birmingham, B23 5EH, B23 — £69,000 • 1 bed • 1 bath • 622 ft²
3 bedroom semi-detached house for sale in 2 Glendon Road, Birmingham B23 5HG, B23 — £125,000 • 3 bed • 1 bath • 905 ft²
3 bedroom terraced house for sale in 17 Harmer Street, Hockley, Birmingham, B18 7RT, B18 — £39,000 • 3 bed • 1 bath • 379 ft²
3 bedroom terraced house for sale in 57 Holden Crescent, Walsall, WS3 1QQ, WS3 — £110,000 • 3 bed • 1 bath • 804 ft²
3 bedroom semi-detached house for sale in 292 Rocky Lane, Great Barr, Birmingham, B42 1NQ, B42 — £50,000 • 3 bed • 1 bath • 945 ft²
2 bedroom ground floor maisonette for sale in 177 Ivyfield Road, Birmingham B23 7HR, B23 — £55,000 • 2 bed • 1 bath • 444 ft²






































































