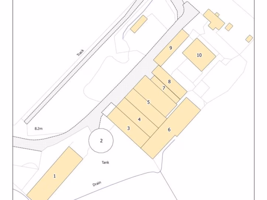
Large steading with immediate agricultural use and renovation potential.
Approximately 19.50 acres of mixed grade agricultural land
Greenmerse Smallholding is an extensive rural holding about 5 miles from New Abbey and 5.5 miles from Dumfries, combining c.19.5 acres with a substantial steading and a traditional farmhouse. The steading has been extended and modernised in parts and contains multiple large steel portal-frame sheds, a lambing shed and useful storage buildings suitable for livestock, equestrian or agricultural enterprises. The farmhouse sits north‑east of the courtyard with a good-sized garden and wide open views; it has been unoccupied for around ten years and requires extensive renovation.
The parcel offers clear development and operational potential: intact modern sheds, field-to-field access, post and ryelock fencing, and direct road access. One traditional barn has a partially collapsed roof and will need repair or rebuild. Two static caravans on site are offered separately and any re-development of the farmhouse or change of use will require enquiries with the local planning authority.
Practical points: the land is mainly Grade 3(2) with a small Grade 6(3) area, rising gently from c.8.0m to 10.3m above sea level. There is no identified flood risk, broadband speeds are reported fast and mobile signal is average. The holding sits within a remoter, rural community and the wider area scores high for deprivation, factors to consider for any residential or commercial planning proposals.
This property will suit purchasers seeking an operational smallholding, livestock base or a renovation project with scope to create a family home set in open countryside. Buyers should factor in renovation costs for the farmhouse, repair to a collapsed barn, and carry out their own due diligence on tenure, services and planning potential prior to purchase.
Land for sale in Greenmerse Farm, Dumfries, Dumfries and Galloway, DG2 — £1,795,000 • 3 bed • 1 bath • 25900 ft²
Land for sale in Land At Greenmerse Farm, Dumfries, Dumfries and Galloway, DG2 — £1,400,000 • 1 bed • 1 bath
4 bedroom farm house for sale in Mid Upper Priestside, Cummertrees, Annan, DG12 5PX, DG12 — £725,000 • 4 bed • 2 bath • 1399 ft²
4 bedroom detached house for sale in South Corbelly Farmhouse, New Abbey, DG2 8DJ, DG2 — £450,000 • 4 bed • 1 bath
Farm land for sale in Nethertown Farm, New Abbey Road, DG2 8ER, DG2 — £1,600,000 • 4 bed • 1 bath
4 bedroom farm house for sale in Cummertrees, Annan, DG12 — £600,000 • 4 bed • 2 bath • 1399 ft²


















































