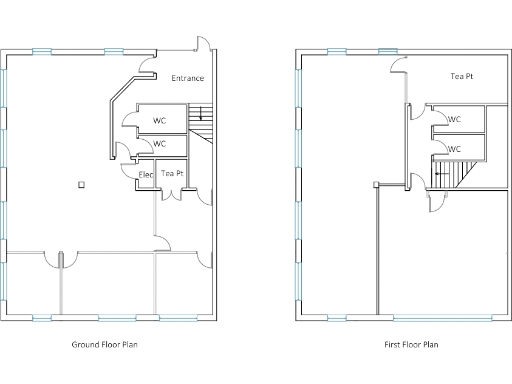
**Key Features:**
- Modern two-storey office building, 2,554 sqft
- Freehold tenure, chain-free sale
- Attractive landscaped location at Stafford Court
- 10 on-site car parking spaces
- Mixture of open-plan and cellular office spaces
- Excellent transport links, 10-min walk to Telford Central Train Station
- Available for sale at £395,000 or to let at £30,000 per annum
- Nearby amenities including nursery and fitness gym
This modern two-storey end-of-terrace office building presents an excellent investment opportunity in a highly sought-after location within Stafford Court, Telford. With approximately 2,554 square feet of well-appointed space, this building accommodates both open-plan and cellular configurations, making it versatile for various commercial uses or even potential conversion to residential, subject to necessary consents.
Conveniently situated just a mile from Telford Town Centre and a brisk 10-minute walk to Telford Central Railway Station, it offers superb accessibility for employees and clients alike. The property boasts 10 on-site car spaces and is surrounded by a landscape that enhances its appeal. Though the surrounding area has reported higher crime rates, families and businesses alike are drawn to the mixture of onsite amenities, including a 24/7 fitness gym and good local schools, offering a balanced work-life environment.
With a competitive asking price of £395,000 and available vacant possession upon completion, this property is an enticing prospect for investors looking to enter the commercial market or expand their portfolio. Don’t miss your chance to secure a prime office location with considerable future potential!
Out-of-town retail property for sale in Rampart Court Retail Park, Rampart Way, Telford, Shropshire, TF3 4AS, TF3 — £2,000,000 • 1 bed • 1 bath • 21256 ft²
Office for sale in Plots D1, D5 & D6, Hadley Park East, Telford, TF1 — £2,100,000 • 1 bed • 1 bath • 19223 ft²
Light industrial facility for sale in Digiland House Unit C, Stafford Park 12, Telford, Shropshire, TF3 3BJ, TF3 — £2,750,000 • 1 bed • 1 bath • 581 ft²
Light industrial facility for sale in Units 5 & 6, Queensway Link Industrial Estate, Telford, TF3 — £1,150,000 • 1 bed • 1 bath • 12000 ft²
Light industrial facility for sale in Unit C4, Stafford Park 4, Telford, Shropshire, TF3 — £615,000 • 1 bed • 1 bath • 6702 ft²
Commercial property for sale in St Andrews Hall Broadway Shifnal TF11 8AZ, TF11 — £500,000 • 10 bed • 2 bath • 3560 ft²


































