BA11 5BU - 4 bedroom detached house for sale in The Robins, Frome, BA11

View on Property Piper

4 bedroom detached house for sale in The Robins, Frome, BA11

Summary - 4 The Robins, FROME BA11 5BU

4 bed 2 bath Detached

**Standout Features:**
- Newly built, modern detached home, largest of four in a select development
- Four spacious bedrooms, including a principal suite with en-suite shower room
- Expansive kitchen/dining/family room with bi-fold doors and contemporary finishes
- Double garage and block-paved driveway accommodating two cars, plus EV charging point
- Private, well-enclosed garden with lawn and paved patio area
- Anticipated completion in April 2025, chain-free with a 10-year structural warranty

**Summary:**
Discover a unique opportunity to own the largest property in a luxurious small development, set to be completed in April 2025. This stunning four-bedroom detached home is perfect for families, boasting an inviting kitchen/dining/family space with stylish olive shaker units, quartz countertops, and bi-fold doors that seamlessly connect to a private rear garden. Enjoy the comfort of underfloor heating on the ground floor and a generous living room bathed in natural light. Additional highlights include a dedicated double garage and a block-paved driveway.

While the property is ideally situated on the outskirts of Frome—within walking distance of local conveniences and rich in amenities—prospective buyers should note that it is located in an area classified as deprived, impacting local perception. Nevertheless, Frome offers historic charm just under 13 miles from Bath, making it an attractive investment opportunity for both families and savvy investors alike. Don’t miss your chance to secure this exceptional property that promises comfortable living and a welcoming community environment.

Property Details

Brochure Descriptions

Image Descriptions

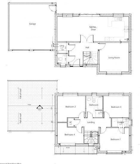
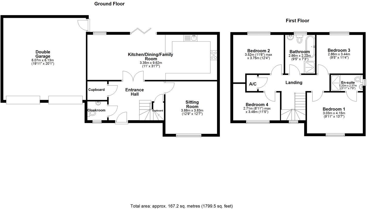
Floorplan Description

Rooms

Textual Property Features

Detected Visual Features

EPC Details

Nearby Schools

Nearest Bars And Restaurants

,,,,}

Nearest General Shops

,,}

Nearest Grocery shops

,,}

Nearest Supermarkets

,,}

Nearest Religious buildings

,,}

Nearest Medical buildings

,,,}

Nearest Airports

}

Nearest Leisure Facilities

,,,,}

Nearest Tourist attractions

,,}

Nearest Train stations

,,,,}

Nearest Bus stations and stops

,,,,}

Nearest Hotels

,,}

Tags

Local Market Stats

AirBnB Data

Similar Properties

Meta

High Res Images

Compatible Images

Low res Images

Thumbnails

Raw Images

High Res Floorplan Images

Compatible Floorplan Images

Low res Floorplan Images

FloorplanImages Thumbnail

Raw Floorplan Images