Turnkey investment with immediate rental income and two parking spaces.
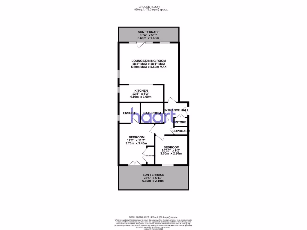
Two double bedrooms with master ensuite
A well-presented, ground-floor two-bedroom apartment offered as a turnkey buy-to-let with tenants in situ. The property produces an annual rental income of £22,800, giving a gross yield of 6.5% on the guide price — a clear income-driven opportunity for an investor seeking immediate returns.
The accommodation includes two double bedrooms, a master ensuite, a separate family bathroom and an open-plan living/dining area with a contemporary kitchen. Two private terraces (front and rear) extend the living space outdoors, and step-free access with lift-served entry leads directly to a secure underground car park with two allocated spaces.
Practical costs and constraints are straightforward: the flat is leasehold with 107 years remaining, an average annual service charge of around £3,500, and a ground rent of approximately £350. There is a medium flood risk in the area — this affects insurance and long-term considerations for some landlords.
Located within walking distance of Shepperton mainline station and local high street amenities, the apartment sits in a very affluent, comfortable suburban area popular with professionals and families. The current tenancy in place makes this an easy addition to a letting portfolio, while the property's condition and modern fittings reduce immediate capital expenditure.
1 bedroom apartment for sale in Fairwater Drive, Shepperton, Surrey, TW17 — £250,000 • 1 bed • 1 bath • 570 ft²
1 bedroom apartment for sale in Fairwater Drive, Shepperton, TW17 — £299,900 • 1 bed • 1 bath • 552 ft²
2 bedroom apartment for sale in Fairwater Drive, Shepperton, Surrey, TW17 — £307,500 • 2 bed • 2 bath • 764 ft²
2 bedroom flat for sale in Fairwater Drive, Shepperton, TW17 — £325,000 • 2 bed • 2 bath • 804 ft²
2 bedroom apartment for sale in Shepperton Court Drive, Shepperton, TW17 — £280,000 • 2 bed • 1 bath • 635 ft²
1 bedroom flat for sale in Shepperton, Surrey, TW17 — £230,000 • 1 bed • 1 bath • 398 ft²






























































