Compact, chain-free one-bed with parking—ideal for first-time buyers or investors..
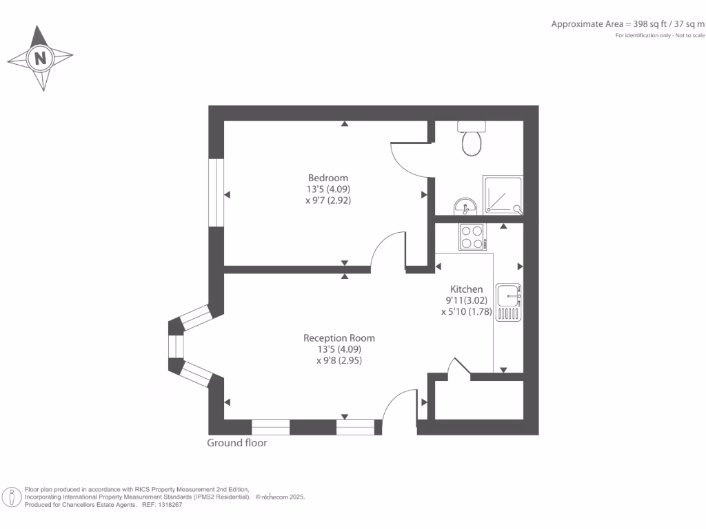
Chain-free one-bedroom apartment, ready to occupy
This chain-free one-bedroom apartment offers an affordable entry into Shepperton with allocated off-street parking and communal garden space. The open-plan living/dining area and bay window give a bright, modern feel; the development dates from 2003–2006 and benefits from double glazing and gas central heating.
At about 398 sq ft the flat is compact and best suited to a single occupant, couple, or buy-to-let investor seeking a low-maintenance property close to commuter links. Broadband and mobile signals are strong, and the area is described as affluent with good local amenities and several well-rated primary and secondary schools nearby.
Buyers should note the property is leasehold with an average ground rent of £400 and a below-average service charge of £400. The size restricts living and storage space, so viewings are recommended to assess suitability. There is no flood risk recorded and council tax levels are described as affordable.
1 bedroom apartment for sale in Fairwater Drive, Shepperton, Surrey, TW17 — £250,000 • 1 bed • 1 bath • 570 ft²
1 bedroom apartment for sale in Fairwater Drive, Shepperton, TW17 — £299,900 • 1 bed • 1 bath • 552 ft²
1 bedroom flat for sale in Village Gate, 47-49 Laleham Road, Shepperton, TW17 — £230,000 • 1 bed • 1 bath • 481 ft²
2 bedroom apartment for sale in Shepperton Court Drive, Shepperton, TW17 — £280,000 • 2 bed • 1 bath • 635 ft²
1 bedroom apartment for sale in Mervyn Road, Shepperton, Surrey, TW17 — £159,950 • 1 bed • 1 bath • 456 ft²
1 bedroom terraced house for sale in Kelly Close, Shepperton, TW17 — £245,000 • 1 bed • 1 bath • 519 ft²






















































































