Chain-free first-floor apartment with secure underground parking and quick station access.
Large double-aspect living room with balcony and panoramic river and golf views
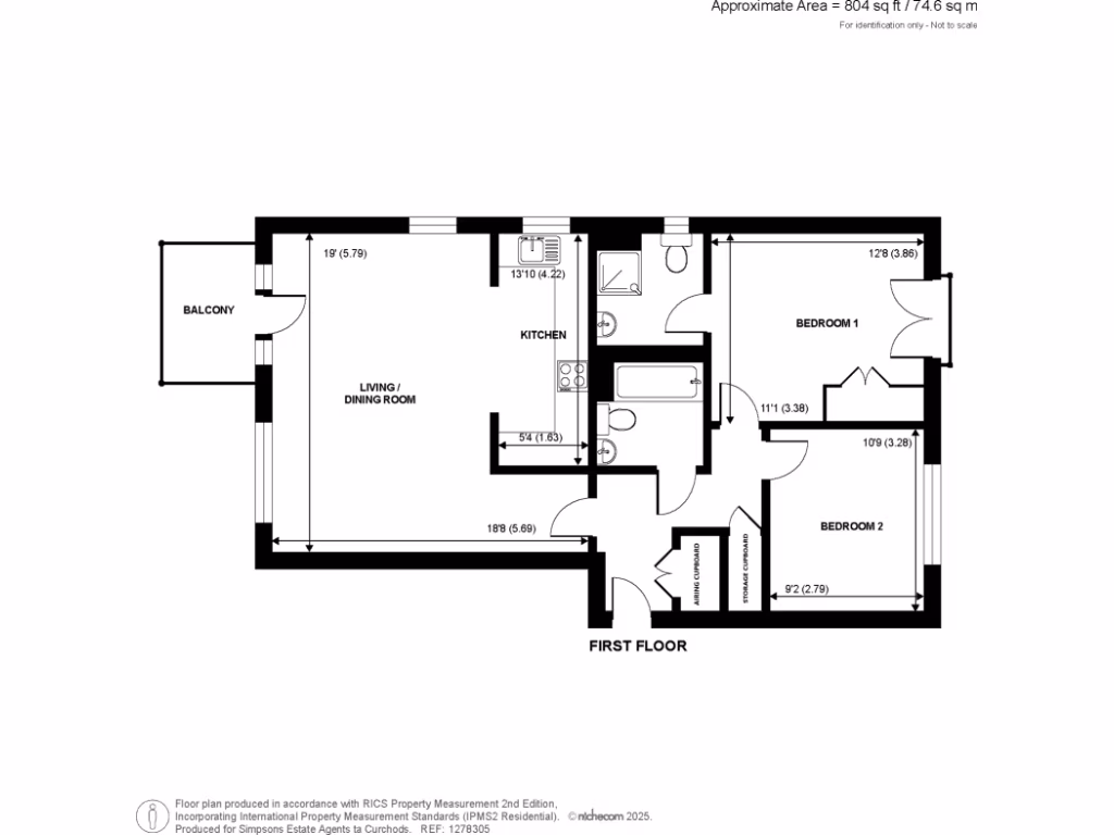
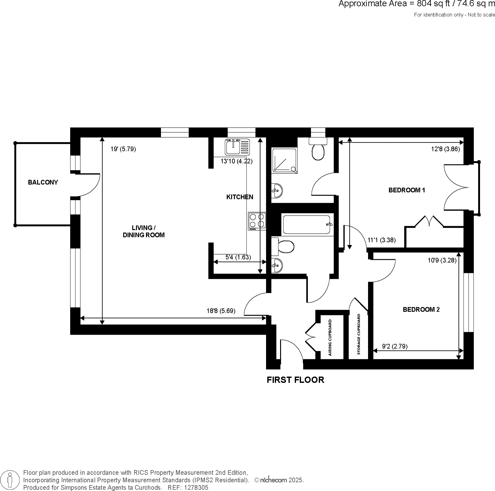
A bright, contemporary two-bedroom apartment in a tucked-away spot with wide views over the River Ash, communal grounds and the adjacent golf course. The first-floor home was built in 2010 and offers a large dual-aspect living room that opens onto a balcony, an attractively fitted kitchen with integrated appliances and a master bedroom with ensuite. Lift access serves all floors and the block includes a secure underground car park with two allocated spaces.
The layout suits a professional couple or small family seeking easy access to Shepperton High Street and the mainline station (around 0.5 miles). The communal grounds slope down to the river and provide pleasant, well-kept outdoor space. The apartment is offered chain-free with early possession possible, so it’s straightforward to move in quickly.
Practical points to note: the property is leasehold with 107 years remaining. Annual service charges are circa £3,196 and ground rent around £350 per year. There is a medium flood risk for the area, which buyers should factor into insurance and any mortgage discussions. Overall size is average at about 804 sq ft — comfortable but not expansive.
This home combines convenience, privacy and attractive views in a sought-after Shepperton location. It will particularly appeal to buyers wanting modern, low-maintenance accommodation with secure parking and quick access to transport links and local schools.
1 bedroom ground floor flat for sale in Shepperton, Surrey, TW17 — £269,000 • 1 bed • 1 bath • 559 ft²
2 bedroom apartment for sale in Fairwater Drive, Shepperton, TW17 — £350,000 • 2 bed • 2 bath • 850 ft²
2 bedroom apartment for sale in Fairwater Drive, Shepperton, Surrey, TW17 — £307,500 • 2 bed • 2 bath • 764 ft²
1 bedroom apartment for sale in Fairwater Drive, Shepperton, TW17 — £269,000 • 1 bed • 1 bath • 570 ft²
1 bedroom apartment for sale in Fairwater Drive, Shepperton, TW17 — £299,900 • 1 bed • 1 bath • 552 ft²
2 bedroom apartment for sale in Chertsey Road, Shepperton, TW17 — £370,000 • 2 bed • 1 bath • 794 ft²














































































