**Standout Features:**
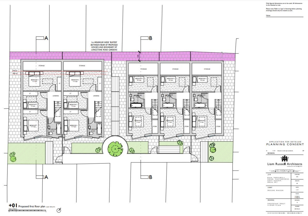
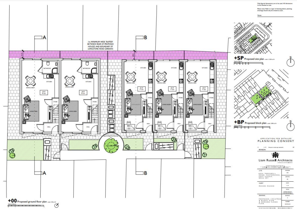
- Development site with planning permission granted for 2 x 3 bed semi-detached and 3 x 2 bed terraced eco-friendly homes.
- Potential for enhanced planning to include 8 x 1 bed flats and 2 x 2 bed flats (STPP).
- Secluded location just steps from The Beacon Shopping Centre and mainline rail services to London Victoria.
- Freehold tenure with no chain, facilitating a smooth transaction.
- Large plot size of approximately 462sqm, allowing for spacious development.
This exceptional property in Eastbourne's vibrant town center offers an attractive development opportunity for investors and builders alike. With approved plans for five eco homes, including a blend of two and three-bedroom residences, this site promises to meet the diverse needs of future residents in a cosmopolitan and student-friendly neighborhood. The modern architecture boasts eco-friendly features such as green roofs and open-concept living spaces that encourage natural light.
Although the initial planning process includes a Community Infrastructure Levy of £15,000, the potential to extend the housing mix further provides an opportunity for significant profit. Located within a thriving area, just moments from shopping, dining, and excellent transport links, this property is poised for rapid growth. Don’t miss your chance to secure this promising development before it’s gone; opportunities like this are few and far between!
Land for sale in Cavendish Place, Eastbourne, BN21 — £235,000 • 1 bed • 1 bath
Land for sale in Tideswell Rd, Eastbourne, BN21 — £350,000 • 6 bed • 6 bath • 495 ft²
Land for sale in Winchelsea Road, Eastbourne, BN22 — £820,000 • 9 bed • 9 bath • 10656 ft²
Residential development for sale in Langney Road, Eastbourne, East Sussex, BN21 — £500,000 • 10 bed • 3 bath • 5920 ft²
Land for sale in Land, Blackwater Road, Meads, Eastbourne, BN21 — £2,000,000 • 17 bed • 17 bath • 18651 ft²
House for sale in East Sussex, BN27 — £2,500,000 • 1 bed • 1 bath






















































