**Standout Features:**
- Prime location in Eastbourne town centre, 500m from the railway station and shopping district
- Grade II listed property with historical Gothic Revival architecture
- Lapsed planning permission for conversion into 10 one-bedroom flats
- Large two-storey structure with expansive basement and high ceilings
- Freehold tenure offering long-term ownership potential
- Excellent mobile and fast broadband signals
**Potential Concerns:**
- Lapsed planning may require new application for reapproval
- Grade II listing could complicate renovation efforts
- High crime rate in the area may detract from some buyers
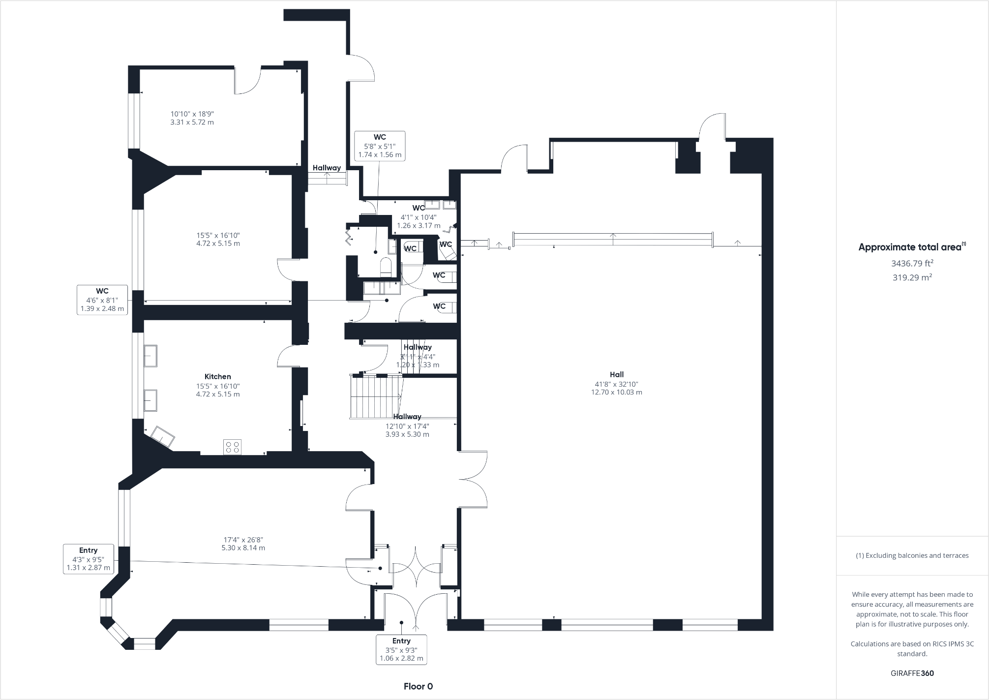
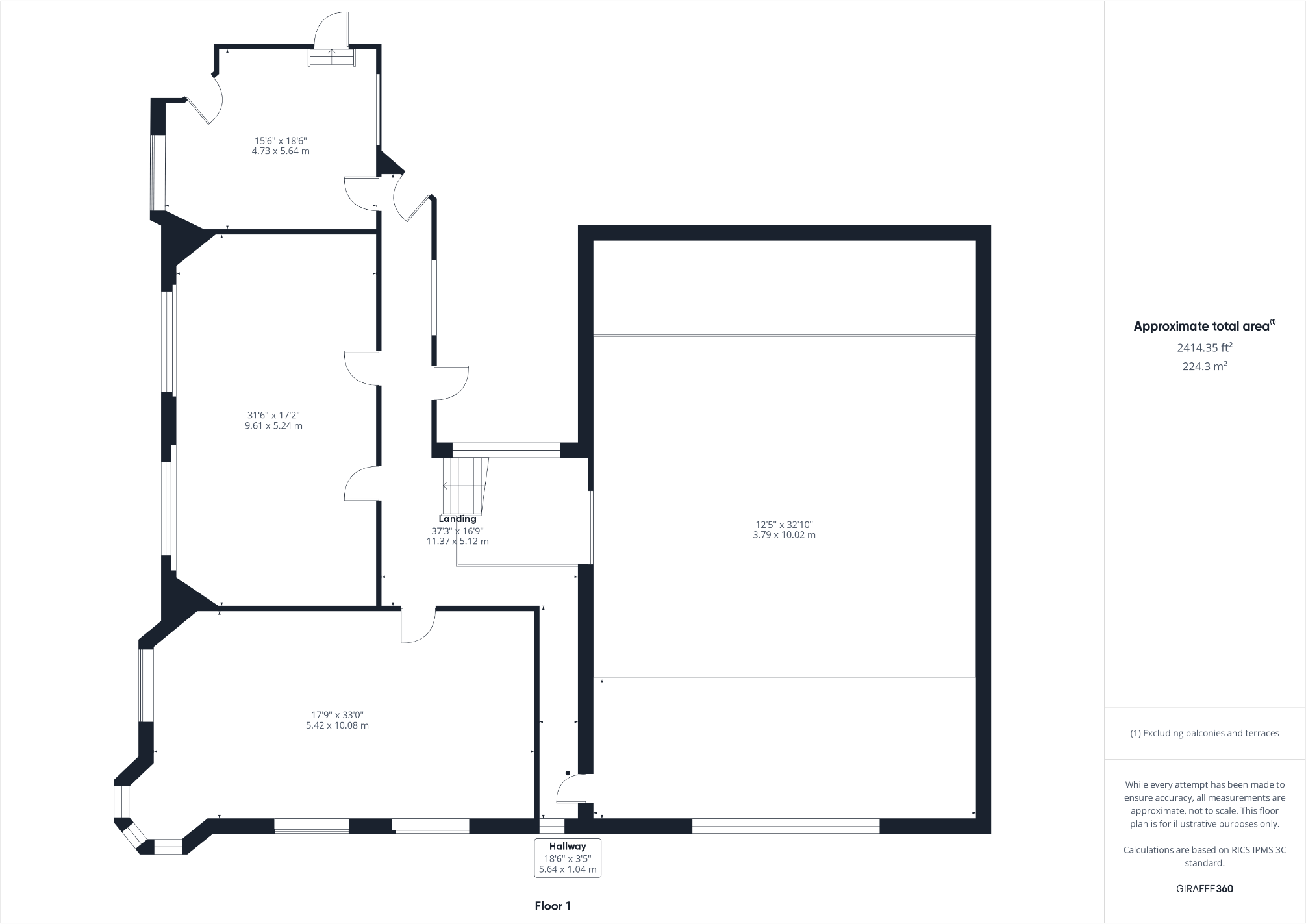
This unique property offers an exceptional opportunity for investors or developers looking to tap into Eastbourne's thriving real estate market. Centrally located, this historic church hall and meeting room space boasts a spacious layout with approximately 5,920 square feet of potential. With a visually striking Gothic Revival design and high ceilings, the property exudes character while providing a solid foundation for development.
Although planning permission for the desired 10 one-bedroom flats has lapsed, this presents a chance to innovate a new approach, taking full advantage of the thriving local community and demographics. The area is bustling with amenities and attractions, making it both a desirable location for potential tenants and a secure spot for future growth. However, buyers should note the complexities associated with a listed property and the area's high crime statistics. With a competitive asking price of £500,000, this remarkable property won’t linger on the market for long—seize this chance to shape Eastbourne’s landscape!
Land for sale in Land, Blackwater Road, Meads, Eastbourne, BN21 — £2,000,000 • 17 bed • 17 bath • 18651 ft²
Land for sale in Cavendish Place, Eastbourne, BN21 — £235,000 • 1 bed • 1 bath
Terraced house for sale in Tideswell Road, Eastbourne, BN21 — £325,000 • 1 bed • 1 bath
3 bedroom detached house for sale in Langney Road, Eastbourne, BN22 — £325,000 • 3 bed • 2 bath • 833 ft²
Residential development for sale in 43 South Street, Eastbourne, East Sussex, BN21 4UT, BN21 — £795,000 • 1 bed • 1 bath • 7323 ft²
Warehouse for sale in 113-115 Seaside Road, Eastbourne, BN21 3PH, BN21 — £350,000 • 1 bed • 1 bath • 5570 ft²














































