Spacious coastal apartment with secure parking and direct beach access.
Breathtaking uninterrupted sea views from lounge, bedrooms and balcony
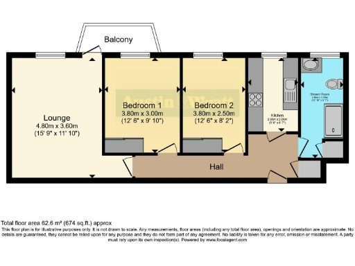
Set on the fourth floor of Elizabeth Court, this two-double-bedroom apartment delivers uninterrupted sea views from the lounge, both bedrooms and the private balcony. The layout is traditional and practical: a generous hallway with built-in storage, a separate kitchen that fits standard appliances, and a modern fully tiled shower room. Secure underground parking (two permits) and well-kept communal gardens add convenience and curb appeal. The long lease (985 years) is a strong tenure advantage for buyers.
This home suits downsizers seeking low-maintenance coastal living without sacrificing space. The balcony and principal rooms frame Bournemouth’s coastline and provide easy access down the famous East Cliff zig-zag paths to the Blue Flag beach. Fast broadband and excellent mobile signal support modern working or streaming needs, while nearby schools and local amenities add everyday convenience.
Buyers should note some material considerations: heating is by electric storage heaters and the building is a system-built block from the late 1960s/early 1970s with assumed no wall insulation, which can affect running costs and comfort. The annual service charge is circa £3,200. The area records a very high crime level; prospective purchasers should satisfy themselves about personal security and local policing measures.
Overall, this apartment offers rare coastal views, secure parking and long lease security—balanced by higher service/energy considerations and local crime statistics. It will suit someone prioritising location and sea-facing aspects who is prepared to manage electric heating and communal costs.
2 bedroom flat for sale in Grove Road, Bournemouth, BH1 — £235,000 • 2 bed • 1 bath • 808 ft²
2 bedroom apartment for sale in Elizabeth Court, Grove Road, East Cliff, Bournemouth, BH1 — £230,000 • 2 bed • 1 bath • 636 ft²
2 bedroom flat for sale in Grove Road, Bournemouth, Dorset, BH1 — £240,000 • 2 bed • 1 bath • 678 ft²
2 bedroom apartment for sale in Grove Road, East Cliff, Bournemouth, BH1 — £250,000 • 2 bed • 1 bath • 432 ft²
2 bedroom apartment for sale in West Cliff Road, Bournemouth, BH2 — £390,000 • 2 bed • 2 bath • 1010 ft²
2 bedroom apartment for sale in Grove Road, Bournemouth, Dorset, BH1 — £230,000 • 2 bed • 1 bath • 632 ft²






































































