Fifth-floor coastal apartment with private balcony, garage and long lease..
- Spectacular sea views to the Isle of Wight from private balcony
- Allocated secure underground garage space and visitor parking
- Award-winning communal gardens with two on-site caretakers
- Long 999-year lease with Share of Freehold
- Service charge approximately £3,100 per annum
- Electric room heaters, EPC rating E — energy improvements likely
- Building dated (1967–75); cavity walls assumed without insulation
- Local area reports very high crime levels despite CCTV
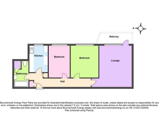
This two-bedroom fifth-floor apartment in Elizabeth Court offers wide sea views across to the Isle of Wight from a private balcony and benefits from a long 999-year lease with a share of freehold. The purpose-built cliff-top development is notable for award-winning communal gardens, on-site caretakers, lift access to all floors, CCTV and an allocated secure underground garage space — practical pluses for coastal living.
Internally the flat is an average-sized 636 sq ft with a practical layout: hallway, kitchen, lounge/diner, two bedrooms and a single bathroom. Heating is by electric room heaters and the property has double glazing, but the EPC is currently rated E and the building dates from the late 1960s/early 1970s, so buyers should factor likely future energy and fabric improvements. Walls are cavity construction with no fitted insulation (assumed).
Running costs include an annual service charge of about £3,100 and council tax at Band D. The building’s communal standards are high, but the immediate area records a very high crime level, which may concern some buyers despite on-site security measures. This property suits someone seeking a low-stairs coastal home or a lock-up-and-leave second home, and it also has rental potential for investors given the nearby amenities and transport links.
Viewings are recommended for buyers who prioritise sea views and communal grounds over a fully modernised internal finish. Any buyer planning major upgrades should budget for energy efficiency works and interior refurbishment to improve comfort and EPC rating.
2 bedroom flat for sale in Grove Road, Bournemouth, BH1 — £235,000 • 2 bed • 1 bath • 808 ft²
2 bedroom apartment for sale in Elizabeth Court, Grove Road, East Cliff , Bournemouth, BH1 — £260,000 • 2 bed • 1 bath • 671 ft²
2 bedroom flat for sale in Grove Road, BOURNEMOUTH, Dorset, BH1 — £200,000 • 2 bed • 1 bath • 674 ft²
3 bedroom apartment for sale in Elizabeth Court, Grove Road, East Cliff, Bournemouth, BH1 — £290,000 • 3 bed • 1 bath • 820 ft²
2 bedroom apartment for sale in Elizabeth Court, Grove Road, East Cliff, Bournemouth, BH1 — £220,000 • 2 bed • 1 bath • 520 ft²
2 bedroom apartment for sale in Elizabeth Court, Grove Road, Bournemouth, Dorset, BH1 3DS, BH1 — £260,000 • 2 bed • 1 bath • 641 ft²


























































