Garden access and resident parking, ideal for professionals or families.
Two double bedrooms, both with good natural light
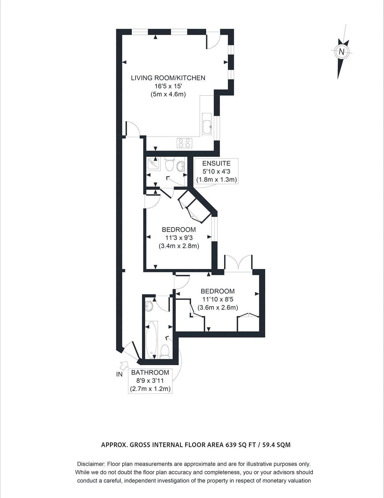
A newly renovated two-bedroom ground-floor apartment combining period character with a contemporary finish. The open-plan kitchen and reception benefits from large windows and dark oak flooring, creating a bright, airy main living space that flows onto well-kept communal gardens.
Both bedrooms are doubles: one with built-in storage and direct garden access, the other with an en-suite. The flat sits in a mid-terrace building constructed before 1900, set in a very affluent area popular with professionals and families. Resident off-street parking and plentiful local amenities add everyday convenience.
Practical positives include a long 172-year lease, no ground rent and modern double glazing. Note the property is leasehold with an average annual service charge of £2,000. The building’s solid brick walls were built without insulation (assumed), which may affect heating costs despite mains gas central heating and an EPC rating of C.
2 bedroom flat for sale in Sheengate Mansions, East Sheen, SW14 — £550,000 • 2 bed • 1 bath • 981 ft²
2 bedroom apartment for sale in Salisbury Road, Richmond, TW9 — £639,950 • 2 bed • 1 bath • 782 ft²
2 bedroom apartment for sale in Carslake Road, London, SW15 — £375,000 • 2 bed • 1 bath • 667 ft²
2 bedroom flat for sale in Upper Richmond Road West, SW14 — £450,000 • 2 bed • 1 bath • 457 ft²
2 bedroom flat for sale in Upper Richmond Road West, East Sheen, SW14 — £475,000 • 2 bed • 1 bath • 419 ft²
2 bedroom flat for sale in Lower Richmond Road, East Sheen, SW14 — £650,000 • 2 bed • 1 bath • 840 ft²






















































