Bright two-bedroom ground-floor home with private outdoor space and strong transport links.
Private ground-floor garden — rare for the area
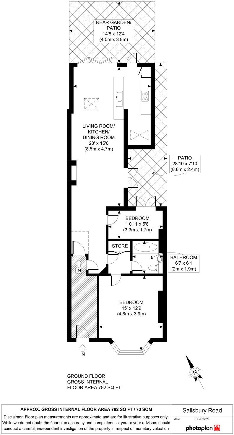
Set on the ground floor of a Victorian terrace, this two-bedroom home combines period character with contemporary living. High ceilings, bay windows and an open-plan living/dining area create airy, light-filled rooms ideal for family life and entertaining. A wood-burning stove and bi-fold doors enhance the reception space and link directly to the private garden — a rare outdoor asset in this part of Richmond.
At about 782 sq ft, the layout is practical for couples or a small family. The property benefits from a long lease (152 years remaining), an EPC rating of C and excellent broadband and mobile coverage. Local amenities, transport links and green spaces such as Richmond Park are all within easy reach, and strong nearby schools add to the family appeal.
Buyers should note this is a leasehold flat in a mid-terrace Victorian building with solid brick walls (assumed uninsulated) — some thermal improvements may be possible to improve comfort and running costs. There is a single bathroom and the accommodation is average-sized for the area, so those wanting more space or an additional bathroom will need to consider reconfiguration or loft/extension options subject to consent.
Overall this is a desirable, well-located property that offers immediate liveability with clear scope to personalise and improve. It suits buyers seeking a comfortable, characterful home with private outdoor space in a highly sought-after central Richmond location.
2 bedroom ground floor flat for sale in Sheen Road, Richmond, TW9 — £875,000 • 2 bed • 1 bath • 852 ft²
2 bedroom apartment for sale in Kings Road, Richmond, TW10 — £700,000 • 2 bed • 1 bath • 1235 ft²
2 bedroom apartment for sale in Onslow Avenue, Richmond, TW10 6, TW10 — £650,000 • 2 bed • 1 bath • 557 ft²
2 bedroom flat for sale in Lower Mortlake Road, TW9 — £500,000 • 2 bed • 1 bath • 446 ft²
2 bedroom apartment for sale in Upper Richmond Road West, London, SW14 — £500,000 • 2 bed • 2 bath • 639 ft²
4 bedroom flat for sale in St. Johns Road,
Richmond, TW9 — £1,250,000 • 4 bed • 2 bath • 1367 ft²














































