Large garden, garage and new kitchen — move-in ready for family life.
Detached four double bedrooms, freshly redecorated throughout
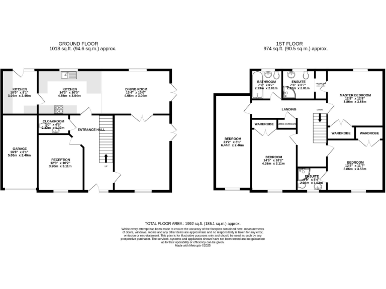
Set in a respected residential pocket just off Newton Road, this detached four-double-bedroom home suits families wanting space, privacy and immediate move-in. The house has been freshly redecorated throughout and features a newly fitted kitchen with integrated appliances, a generous open-plan living/dining/kitchen, separate lounge, study and utility — offering flexible living for work, play and entertaining.
Outside, the property sits on a large plot with a mature, well-screened rear garden, gated side access, a block-paved driveway for three to four cars and an integral single garage. The layout includes an impressive entrance hall and a galleried landing that leads to the bedroom accommodation; the listing notes two bedrooms with en-suites and built-in wardrobes for good storage.
Practical details to note: the tenure is freehold, the EPC is C and the home was constructed c.2007–2011 and double-glazed after 2002. This means modern construction standards and recently upgraded glazing; the vendor is offering immediate vacant possession for a straightforward move.
Important considerations: the property sits within a high flooding-risk area, which may affect insurance and future maintenance. Council tax is described as expensive. These factors are worth reviewing alongside the property's strong presentation, substantial parking and family-friendly layout.
4 bedroom detached house for sale in Battlestead Road, Burton-on-Trent, DE13 — £420,000 • 4 bed • 2 bath • 2477 ft²
6 bedroom semi-detached house for sale in Newton Road, Burton upon Trent, DE15 — £550,000 • 6 bed • 3 bath • 2895 ft²
4 bedroom detached house for sale in Highcroft Drive, Burton-On-Trent, DE14 — £489,000 • 4 bed • 2 bath • 1851 ft²
3 bedroom detached house for sale in Castilla Place, Burton-on-Trent, DE13 — £259,500 • 3 bed • 2 bath • 1204 ft²
4 bedroom detached house for sale in Newton Road, Burton-on-Trent, DE15 — £495,000 • 4 bed • 2 bath
3 bedroom detached house for sale in Perle Road, Burton-On-Trent, DE14 1DN, DE14 — £230,000 • 3 bed • 2 bath • 673 ft²






















































































