Spacious three-bed family home with garage, office and high-spec kitchen..
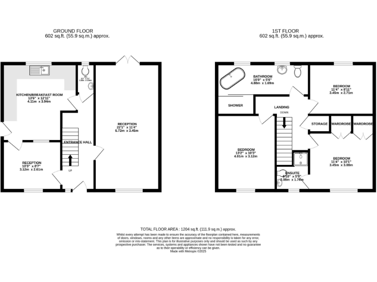
- Three double bedrooms, master with en-suite
- High-spec kitchen with granite worktops, integrated appliances
- Two reception rooms; flexible living and dining space
- Detached garage plus adjoining man-cave / home office
- Driveway parking; decent-sized plot
- EPC C, gas central heating, UPVC double glazing
- Area flagged as deprived; above-average local crime
- Average-sized detached home; may need cosmetic updating
Set on a decent plot in a well-regarded residential pocket of Burton-on-Trent, this three-double-bedroom detached home suits a family seeking space and practical standards. The house is presented to a good standard throughout with a high-spec breakfast kitchen featuring granite worktops, quality bathroom and en-suite fitments, gas central heating and UPVC double glazing. Two reception rooms give flexible living and dining options, while the detached garage plus adjoining man-cave/work-from-home office adds valuable utility and scope for home working or hobby use.
Practical attributes include driveway parking, fast broadband, excellent mobile signal and an EPC rating of C. The property is freehold and laid out in a traditional, easy-to-manage plan across roughly 1,204 sq ft — comfortable for a growing family. Local schools nearby are rated Good to Outstanding, and everyday amenities including shops, pubs and public transport are within easy reach.
Be aware of two material local factors: the area shows above-average crime levels and is flagged as relatively deprived. The house itself appears well maintained but buyers should note the property is average-sized for a detached home and may require some updating to reflect personal tastes. Council tax is moderate. For buyers who prioritise space, an office outbuilding and good connectivity, this property offers solid family accommodation in a convenient location, provided you are comfortable with the broader local context.
3 bedroom detached house for sale in Perle Road, Burton-On-Trent, DE14 1DN, DE14 — £245,000 • 3 bed • 2 bath • 673 ft²
4 bedroom detached house for sale in The Drive, Rolleston Road, Burton-on-Trent, DE13 — £300,000 • 4 bed • 1 bath • 1370 ft²
3 bedroom detached house for sale in Panama Road, Burton-On-Trent, DE13 — £240,000 • 3 bed • 2 bath • 915 ft²
3 bedroom detached house for sale in Wyggeston Street, Burton-On-Trent, DE13 — £230,000 • 3 bed • 2 bath • 1185 ft²
3 bedroom detached house for sale in Waverley Lane, Burton-On-Trent, DE14 — £200,000 • 3 bed • 1 bath • 1000 ft²
4 bedroom semi-detached house for sale in Castilla Place, BURTON-ON-TRENT, DE13 — £280,000 • 4 bed • 2 bath • 1906 ft²


















































































































































