Planning approved for loft conversion and detached garden annex, excellent for growing families.
Newly refurbished throughout to a high specification
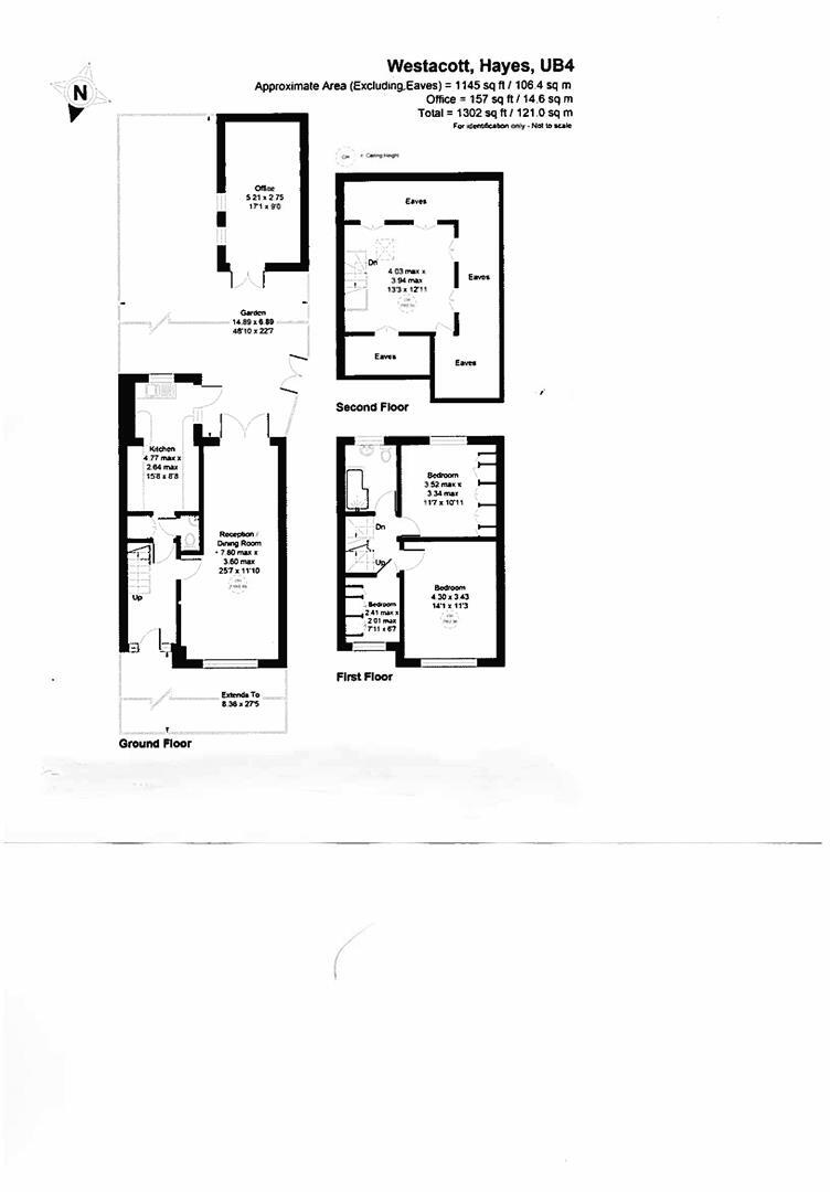
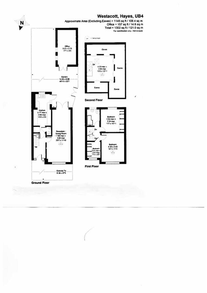
A recently renovated three-bedroom semi-detached house arranged over multiple floors, offering immediate move-in condition and practical scope for extra space. The property benefits from a luxury extended kitchen with underfloor heating, a large lounge/dining room, and a loft bonus room reached by a built-in staircase. Double glazing and gas central heating are in place; the house sits on a small plot with a paved drive providing off-street parking for two cars.
Significant planning permissions are already in place: a full loft conversion to create a large bedroom with ensuite and a substantial detached garden annex. A separate application is pending for a 6m single-storey rear extension, giving clear potential to increase living space (subject to final approval). These permissions make the house attractive to families needing extra bedrooms or buyers looking to add value.
Practical points to note: the property has one main bathroom, so an additional bathroom would be created only once loft works are completed or via the annex/extension. The home was built c.1976–82 with solid brick walls and partial insulation; some thermal performance improvements may be beneficial. Existing double glazing predates 2002. The plot is small, and garden space is mainly arranged for low-maintenance outdoor living, including an artificial lawn and a gazebo entertainment area.
Located in Westacott, Hayes (UB4), the house is a short walk from Uxbridge Road with bus links to Uxbridge, Southall, Ealing, Heathrow and Hayes & Harlington (Elizabeth line). Several local primary and secondary schools rated Good are nearby, making the location practical for families. Crime is low and local broadband and mobile signals are strong.
4 bedroom semi-detached house for sale in Derwent Drive, Hayes, UB4 — £685,000 • 4 bed • 2 bath • 974 ft²
4 bedroom semi-detached house for sale in Frogmore Gardens, North Hayes, UB4 — £750,000 • 4 bed • 3 bath • 1529 ft²
4 bedroom semi-detached house for sale in Forris Avenue, Hayes, UB3 2AS, UB3 — £673,950 • 4 bed • 3 bath • 1363 ft²
3 bedroom semi-detached house for sale in Hurstfield Crescent, Hayes, UB4 — £620,000 • 3 bed • 2 bath • 1464 ft²
4 bedroom semi-detached house for sale in Adelphi Crescent, Hayes, UB4 — £649,950 • 4 bed • 2 bath • 1357 ft²
5 bedroom semi-detached house for sale in Hayes End Drive, Hayes, UB4 — £625,000 • 5 bed • 3 bath • 1171 ft²














































































