Chain-free semi with garden, garage and extension potential.
Five bedrooms including two loft-conversion rooms
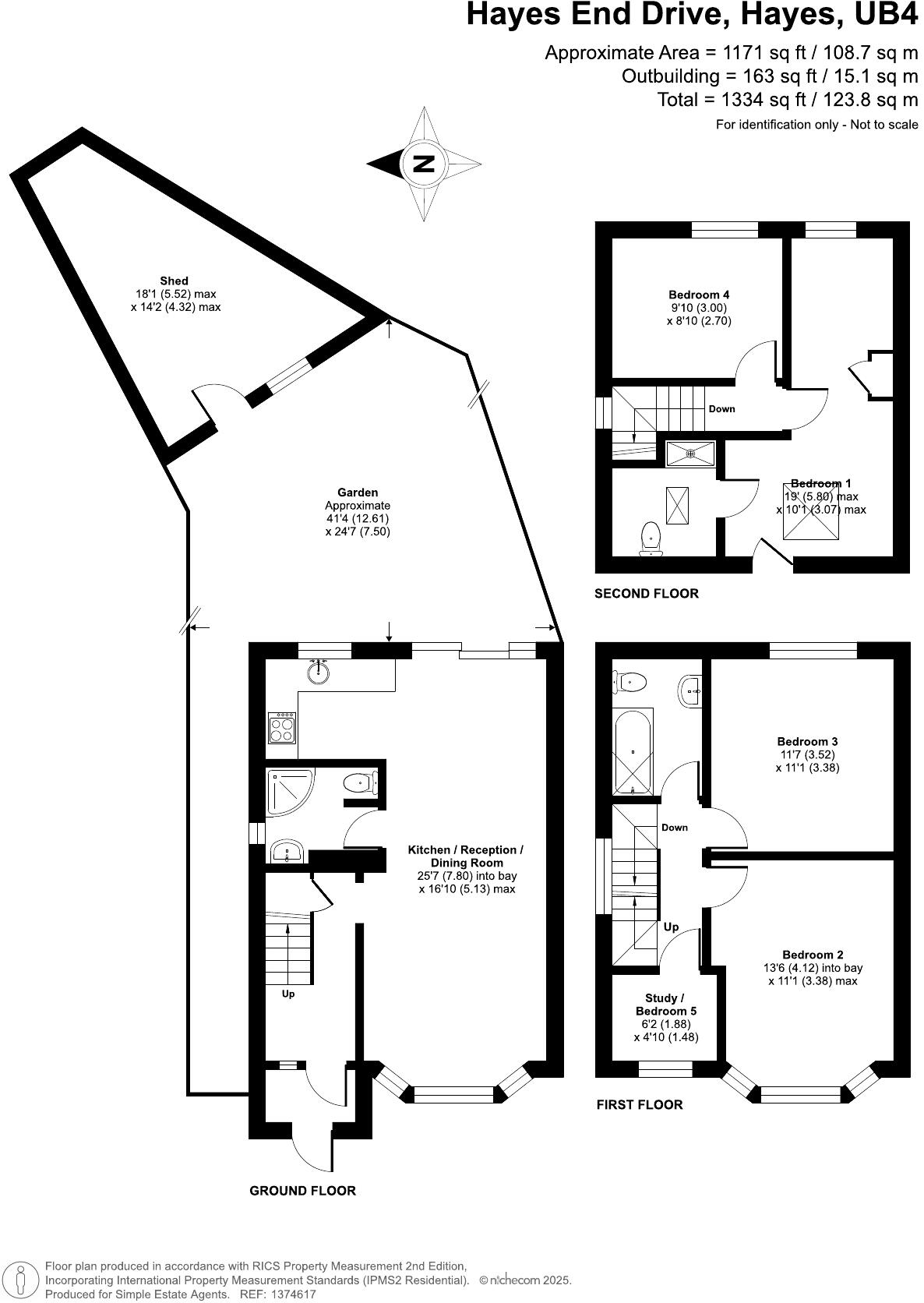
Spacious five-bedroom semi-detached house arranged over three storeys, offering a flexible layout that includes a loft conversion with two additional bedrooms, one en‑suite. The through lounge/diner and open-plan kitchen open onto a rear garden with patio and lawn; a detached storage annexe and a garage add useful outside space. Driveway parking for several vehicles provides practical convenience in this established residential street.
The property is chain free and has good rental potential (estimated £3,000 pcm), making it suitable for family occupation or as an investment. Local amenities, several good primary schools, and transport links are close by.
The house requires internal redecoration and broader renovation in places. Walls are original solid brick with no confirmed insulation, and some mechanical or electrical updates may be needed given the build age (1930–1949). There is scope to extend further (STPP) to increase living space or value.
Overall, this is a roomy, well-located home with immediate usability, clear potential to add value through renovation or extension, and practical parking and outbuildings. Buyers should budget for refurbishment work to modernise finishes and services.
4 bedroom semi-detached house for sale in Derwent Drive, Hayes, UB4 — £685,000 • 4 bed • 2 bath • 974 ft²
3 bedroom semi-detached house for sale in Hayes End Road, Hayes, UB4 — £540,000 • 3 bed • 1 bath • 813 ft²
4 bedroom detached house for sale in Evergreen Way, Hayes, UB3 — £650,000 • 4 bed • 2 bath • 1503 ft²
4 bedroom semi-detached house for sale in Regents Close, Hayes, UB4 — £650,000 • 4 bed • 2 bath • 1491 ft²
3 bedroom semi-detached house for sale in Grosvenor Avenue, Hayes, UB4 — £585,000 • 3 bed • 1 bath • 1085 ft²
5 bedroom link detached house for sale in Paddington Close, Hayes, Greater London, UB4 — £680,000 • 5 bed • 3 bath • 1474 ft²














































































